|
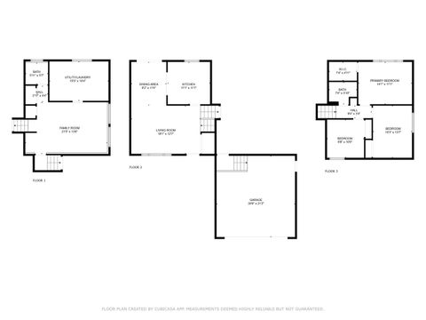
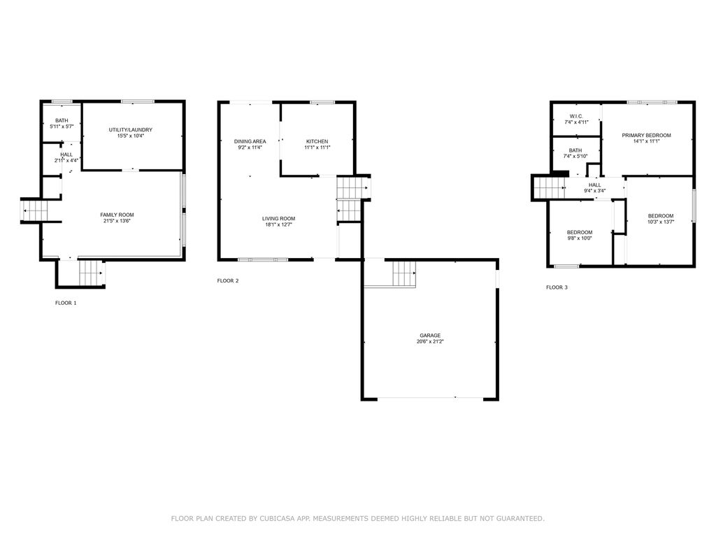
Welcome to Your Next Home in Lombard! Step into this beautifully updated 3-bedroom, 1.5-bath home that blends modern comfort with everyday functionality. From the moment you arrive, you'll notice thoughtful updates throughout. The stairs and all upstairs bedroom floors were refinished in 2022, creating a sleek and polished feel. Recent upgrades provide peace of mind for years to come a brand-new water heater (2024) and furnace (2024) with a 5-year warranty to ensure comfort and efficiency. The spacious layout includes a bright living area, a well-designed kitchen ready for your personal touch, and a dining space perfect for hosting. Dishwasher to be conveyed as-is, offering the next owner the opportunity to update to their preference. Enjoy the outdoors with a huge backyard, offering endless possibilities for entertaining or relaxation. A 2-car garage completes the package, providing both convenience and storage. With its modern updates and desirable Lombard location, this home is move-in ready and waiting for you.
DAYS ON MARKET | 45 | LAST UPDATED | 9/11/2025 |
---|---|---|---|
YEAR BUILT | 1973 | COMMUNITY | Lombard |
GARAGE SPACES | 2.0 | COUNTY | DuPage |
STATUS | Active | PROPERTY TYPE(S) | Single Family |
School District | Willowbrook High School |
---|---|
Elementary School | Schafer Elementary School |
Jr. High School | Jefferson Middle School |
High School | Willowbrook High School |
PRICE HISTORY | |
Prior to Sep 7, '25 | $435,000 |
---|---|
Sep 7, '25 - Sep 11, '25 | $420,000 |
Sep 11, '25 - Today | $415,000 |
ADDITIONAL DETAILS | |
AIR | Central Air |
---|---|
AIR CONDITIONING | Yes |
AREA | Lombard |
BASEMENT | Finished, Full, Yes |
CONSTRUCTION | Brick, Vinyl Siding |
GARAGE | Yes |
HEAT | Electric |
INTERIOR | Walk-In Closet(s) |
LOT | 0 |
LOT DIMENSIONS | 56X133 |
PARKING | Concrete, Garage Door Opener, On Site, Attached, Garage |
TAXES | 7296 |
MORTGAGE CALCULATOR
TOTAL MONTHLY PAYMENT
0
P
I
*Estimate only
SATELLITE VIEW |
/ | |
We respect your online privacy and will never spam you. By submitting this form with your telephone number
you are consenting for Humderto
Garcia to contact you even if your name is on a Federal or State
"Do not call List".
Listed with HomeSmart Realty Group
The data relating to real estate for sale on this web site comes in part from the Broker ReciprocitySM Program of MRED. All real estate listings are marked with the Broker ReciprocitySM logo or the MRED Broker ReciprocitySM thumbnail logo (a little black house) and detailed information about them includes the name of the listing brokers.
The broker providing these data believes them to be correct, but advises interested parties to confirm them before relying on them in a purchase decision.
Copyright 2025 MRED. All rights reserved.

The broker providing these data believes them to be correct, but advises interested parties to confirm them before relying on them in a purchase decision.
Copyright 2025 MRED. All rights reserved.

This IDX solution is (c) Diverse Solutions 2025.