|
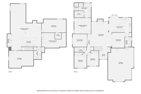
PRICE IMPROVEMENT! The home you've been looking for! All custom brick ranch home in cul-de-sac with look out basement and 3-car garage in sought after McKinley Oaks (NO HOA)! Main floor features large eat-in kitchen with island, pantry, and fabulous views of the rear yard . Large great room with wood burning/gas start fireplace and separate dining room for formal entertaining. Main floor laundry/mudroom. Master bedroom with private en-suite. Two additional bedrooms share hall bath. Plus a main floor office - all on the main level. Finished basement with bright recreation room and beautiful bar for entertaining. 4th bedroom in basement with full bath and tons of storage space! Generac generator. Oversized and heated 3-car side load garage. Back yard is awesome... lovely gazebo fabulous deck, plenty of shade and no rear neighbors!
DAYS ON MARKET | 42 | LAST UPDATED | 9/12/2025 |
---|---|---|---|
TRACT | Mckinley Oaks | YEAR BUILT | 2003 |
COMMUNITY | Channahon | GARAGE SPACES | 3.0 |
COUNTY | Will | STATUS | Active |
PROPERTY TYPE(S) | Single Family |
School District | Minooka Community High School |
---|---|
High School | Minooka Community High School |
PRICE HISTORY | |
Prior to Sep 5, '25 | $525,000 |
---|---|
Sep 5, '25 - Today | $500,000 |
ADDITIONAL DETAILS | |
AIR | Central Air |
---|---|
AIR CONDITIONING | Yes |
APPLIANCES | Dishwasher, Disposal, Dryer, Microwave, Range, Refrigerator, Stainless Steel Appliance(s), Washer |
AREA | Channahon |
BASEMENT | Daylight, Finished, Full, Partially Finished, Sump Pump, Yes |
CONSTRUCTION | Brick |
FIREPLACE | Yes |
GARAGE | Yes |
HEAT | Natural Gas |
INTERIOR | Cathedral Ceiling(s), High Ceilings, Open Floorplan, Wet Bar |
LOT | 0 |
LOT DESCRIPTION | Cul-de-sac, Irregular Lot, Pie Shaped Lot |
LOT DIMENSIONS | 71x168x121x150 |
PARKING | Concrete, Garage Door Opener, Heated Garage, On Site, Attached, Garage |
SEWER | Public Sewer |
STYLE | Ranch |
SUBDIVISION | Mckinley Oaks |
TAXES | 11235 |
WATER | Public |
MORTGAGE CALCULATOR
TOTAL MONTHLY PAYMENT
0
P
I
*Estimate only
SATELLITE VIEW |
/ | |
We respect your online privacy and will never spam you. By submitting this form with your telephone number
you are consenting for Humderto
Garcia to contact you even if your name is on a Federal or State
"Do not call List".
Listed with Next Home Crossroads
The data relating to real estate for sale on this web site comes in part from the Broker ReciprocitySM Program of MRED. All real estate listings are marked with the Broker ReciprocitySM logo or the MRED Broker ReciprocitySM thumbnail logo (a little black house) and detailed information about them includes the name of the listing brokers.
The broker providing these data believes them to be correct, but advises interested parties to confirm them before relying on them in a purchase decision.
Copyright 2025 MRED. All rights reserved.

The broker providing these data believes them to be correct, but advises interested parties to confirm them before relying on them in a purchase decision.
Copyright 2025 MRED. All rights reserved.

This IDX solution is (c) Diverse Solutions 2025.