| 
 | 
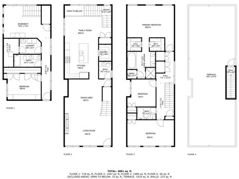
Meticulously maintained and built in 2008, this stunning Andersonville residence blends luxury, space, and an unbeatable location. Inside, you'll find walnut floors throughout, a chef's kitchen with rich walnut cabinetry, stainless steel appliances, honed granite countertops, a spacious island, and an oversized walk-in pantry-perfect for entertaining or everyday living. The sun-drenched interior features soaring ceilings and oversized windows on every level. The second floor offers three generously sized bedrooms, including a luxurious primary suite with a spa-like marble bath featuring a steam shower, rain shower head, whirlpool tub, and custom-built closets. A second-floor laundry room adds everyday convenience. The lower level expands your living space with an additional bedroom and full bath featuring double sinks and a tub-ideal for guests or extended family. There's also a spacious bonus room complete with a dry bar and beverage center, plus radiant heated floors and a second laundry area. Modern comforts abound: dual-zoned HVAC, gas fireplace, surround sound wiring, and recent updates including new roof, tuckpointing, and parapet (2024), chimney recapped and sealed (2024), and newer furnaces (2023). Outdoor living is just as impressive with a private roof deck featuring composite decking, a landscaped backyard with newer paver patio, and an attached 2-car garage with a radiant heated driveway. All of this in a prime Andersonville location, just half a block from Clark Street's vibrant shops and restaurants, close to the CTA, El, Metra, Mariano's, parks, and only 3/4 mile to the lake.
| DAYS ON MARKET | 44 | LAST UPDATED | 10/13/2025 | 
|---|---|---|---|
| YEAR BUILT | 2008 | COMMUNITY | CHI - Uptown | 
| GARAGE SPACES | 2.0 | COUNTY | Cook | 
| STATUS | Active | PROPERTY TYPE(S) | Single Family | 
| PRICE HISTORY | |
| Prior to Oct 13, '25 | $1,565,000 | 
|---|---|
| Oct 13, '25 - Today | $1,499,950 | 
| ADDITIONAL DETAILS | |
| AIR | Ceiling Fan(s), Central Air, Zoned | 
|---|---|
| AIR CONDITIONING | Yes | 
| APPLIANCES | Dishwasher, Disposal, Dryer, Humidifier, Microwave, Range, Refrigerator, Washer | 
| AREA | CHI - Uptown | 
| BASEMENT | Finished, Full, Sump Pump, Walk-Out Access, Yes | 
| CONSTRUCTION | Brick | 
| FIREPLACE | Yes | 
| GARAGE | Yes | 
| HEAT | Forced Air, Natural Gas, Zoned | 
| INTERIOR | Wet Bar | 
| LOT | 0 | 
| LOT DIMENSIONS | 25 X 115 | 
| PARKING | Concrete, On Site, Attached, Garage, Driveway | 
| SEWER | Public Sewer | 
| TAXES | 16154.39 | 
| WATER | Public | 
            MORTGAGE CALCULATOR
        
        TOTAL MONTHLY PAYMENT
0
                    P
                        I 
                    
            *Estimate only
        
    | SATELLITE VIEW | 
| / | |
	We respect your online privacy and will never spam you. By submitting this form with your telephone number
	you are consenting for Humderto
	Garcia to contact you even if your name is on a Federal or State
	"Do not call List".
	
    Listed with Baird & Warner
	The data relating to real estate for sale on this web site comes in part from the Broker ReciprocitySM Program of MRED. All real estate listings are marked with the Broker ReciprocitySM logo or the MRED Broker ReciprocitySM thumbnail logo (a little black house) and detailed information about them includes the name of the listing brokers.
The broker providing these data believes them to be correct, but advises interested parties to confirm them before relying on them in a purchase decision.
Copyright 2025 MRED. All rights reserved.

	
	
	
    
The broker providing these data believes them to be correct, but advises interested parties to confirm them before relying on them in a purchase decision.
Copyright 2025 MRED. All rights reserved.

This IDX solution is (c) Diverse Solutions 2025.
 
				 Twitter
									        Twitter Facebook
									        Facebook Email
									        Email 
									 
									 
									 
									 
									 
									 
									 
									 
									 
									 
									 
									 
									 
									 
									 
									 
									 
									 
									 
									 
									 
									 
									 
									 
									 
									 
									 
									 
									 
									 
									 
									 
									 
									 
									 
									 
									 
									 
									 
									 
									 
									 
									 
									 
									 
									