|
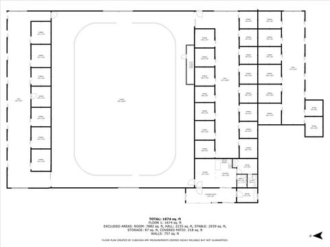
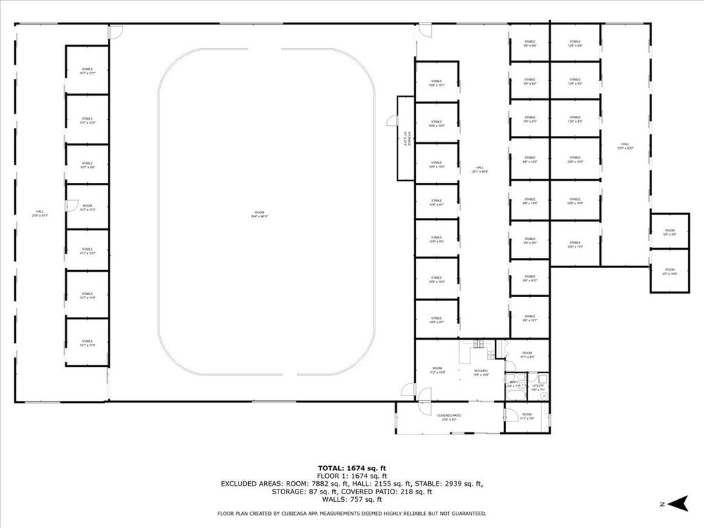
Working Equestrian Facility - 57 Acres - Maple Park, IL. Located just off County Line Road in Maple Park, this property offers an ideal location-close to major show venues and only minutes from DeKalb, St. Charles, Geneva, and the greater Fox Valley area. The farm sits on 57 acres, with 33+ acres currently leased to a local farmer and 11 acres in hay to help supply forage for the horses. The barn is set up for efficient operation and includes: 46 matted stalls (11' x 12') with pull-down doors - fully occupied. Concrete aisles for easy feeding and stall maintenance, Multiple tack rooms plus portable washrooms for staff and boarders, Electric to every stall, 100' x 80' indoor arena with sand footing and a small outdoor arena. Additional improvements include a caretaker's building with one bedroom and full bath. This property is functional, well-located, and ready to support a serious equine program. Call to schedule a showing-this barn is set up and working.
DAYS ON MARKET | 42 | LAST UPDATED | 8/25/2025 |
---|---|---|---|
YEAR BUILT | 0 | COMMUNITY | Lily Lake / Maple Park |
COUNTY | Kane | STATUS | Active |
PROPERTY TYPE(S) | Single Family |
School District | Kaneland High School |
---|---|
Elementary School | Kaneland Middle School |
Jr. High School | Kaneland Middle School |
High School | Kaneland High School |
ADDITIONAL DETAILS | |
AIR | Window Unit(s) |
---|---|
AIR CONDITIONING | Yes |
AREA | Lily Lake / Maple Park |
BARN/EQUESTRIAN | Yes |
BASEMENT | None |
CONSTRUCTION | Steel Siding |
HEAT | Electric, Natural Gas |
LOT | 58 acre(s) |
LOT DESCRIPTION | Pasture |
LOT DIMENSIONS | 58 |
PARKING | Gravel, On Site |
SEWER | Septic Tank |
TAXES | 8322.24 |
WATER | Well |
MORTGAGE CALCULATOR
TOTAL MONTHLY PAYMENT
0
P
I
*Estimate only
SATELLITE VIEW |
/ | |
We respect your online privacy and will never spam you. By submitting this form with your telephone number
you are consenting for Humderto
Garcia to contact you even if your name is on a Federal or State
"Do not call List".
Listed with Keller Williams Inspire - Geneva
The data relating to real estate for sale on this web site comes in part from the Broker ReciprocitySM Program of MRED. All real estate listings are marked with the Broker ReciprocitySM logo or the MRED Broker ReciprocitySM thumbnail logo (a little black house) and detailed information about them includes the name of the listing brokers.
The broker providing these data believes them to be correct, but advises interested parties to confirm them before relying on them in a purchase decision.
Copyright 2025 MRED. All rights reserved.

The broker providing these data believes them to be correct, but advises interested parties to confirm them before relying on them in a purchase decision.
Copyright 2025 MRED. All rights reserved.

This IDX solution is (c) Diverse Solutions 2025.