|
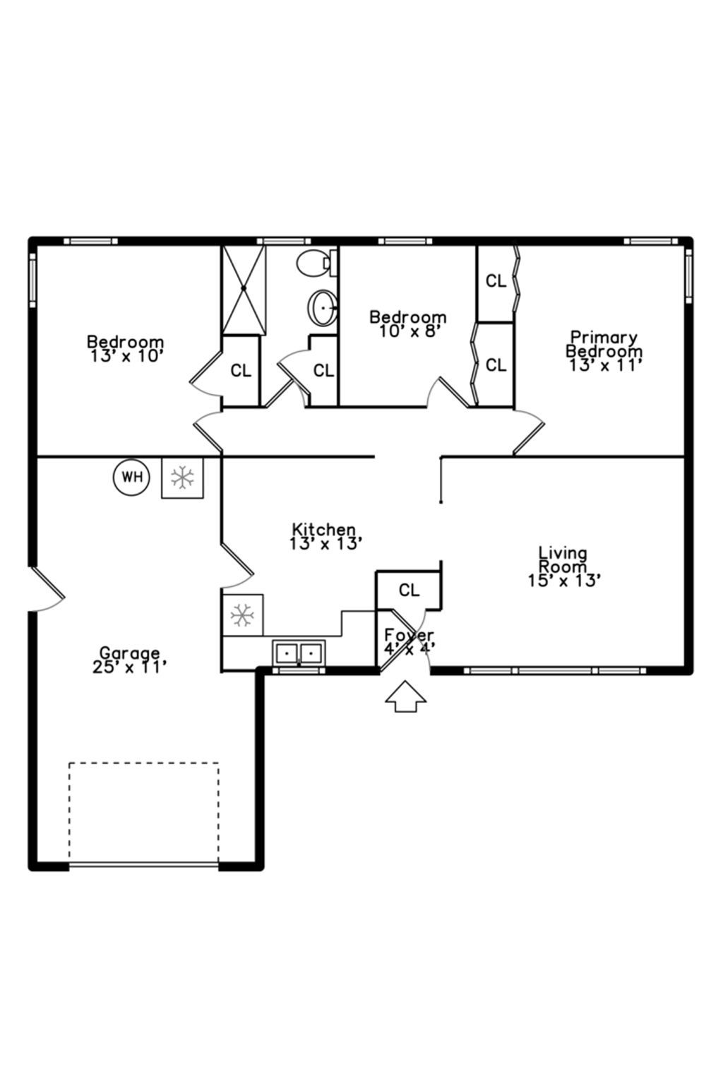
Investors and home buyers looking for a fixer-upper, don't miss this solid brick ranch with endless potential. Create curb appeal in your wide front yard and welcoming porch. Step into a bright living room where large windows fill the space with natural light, just add new flooring and fresh paint. The kitchen features granite counters and plenty of cabinet storage, it'll be the heart of your home. Three bedrooms offer good closet space and sunlight. The bathroom showcases updated tile work, just add a tub to complete the space. Outside, the spacious backyard is perfect for gatherings, gardening, or pets. The attached two-car garage with laundry hookups adds everyday convenience. Located near schools, shopping, and major highways, this home is both practical and full of promise-schedule your showing today before it's gone!
| DAYS ON MARKET | 123 | LAST UPDATED | 12/16/2025 |
|---|---|---|---|
| YEAR BUILT | 1964 | COMMUNITY | Chicago Heights |
| GARAGE SPACES | 1.0 | COUNTY | Cook |
| STATUS | Conditional | PROPERTY TYPE(S) | Single Family |
| PRICE HISTORY | |
| Prior to Nov 4, '25 | $140,000 |
|---|---|
| Nov 4, '25 - Dec 3, '25 | $120,000 |
| Dec 3, '25 - Today | $110,000 |
| ADDITIONAL DETAILS | |
| AIR | Ceiling Fan(s), Central Air |
|---|---|
| AIR CONDITIONING | Yes |
| AREA | Chicago Heights |
| BASEMENT | Crawl Space |
| CONSTRUCTION | Brick |
| GARAGE | Attached Garage, Yes |
| HEAT | Forced Air, Natural Gas |
| LOT | 0 |
| LOT DIMENSIONS | 5390 |
| PARKING | Attached, Garage |
| SEWER | Public Sewer |
| STYLE | Ranch |
| TAXES | 4241 |
| WATER | Public |
MORTGAGE CALCULATOR
TOTAL MONTHLY PAYMENT
0
P
I
*Estimate only
| SATELLITE VIEW |
| / | |
We respect your online privacy and will never spam you. By submitting this form with your telephone number
you are consenting for Humderto
Garcia to contact you even if your name is on a Federal or State
"Do not call List".
Listed with Compass
The data relating to real estate for sale on this web site comes in part from the Broker ReciprocitySM Program of MRED. All real estate listings are marked with the Broker ReciprocitySM logo or the MRED Broker ReciprocitySM thumbnail logo (a little black house) and detailed information about them includes the name of the listing brokers.
The broker providing these data believes them to be correct, but advises interested parties to confirm them before relying on them in a purchase decision.
Copyright 2025 MRED. All rights reserved.

The broker providing these data believes them to be correct, but advises interested parties to confirm them before relying on them in a purchase decision.
Copyright 2025 MRED. All rights reserved.
This IDX solution is (c) Diverse Solutions 2025.