|
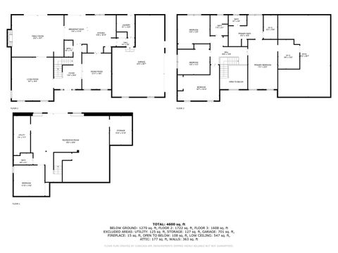
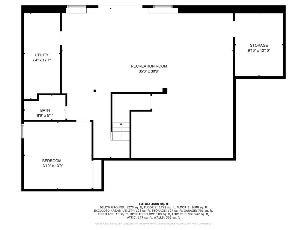
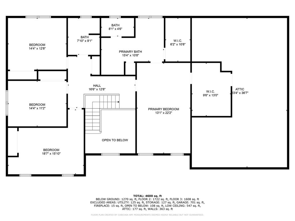
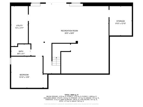
A large, wonderfully maintained home with a walk out basement on a 1.25 acre private wooded lot makes this home a must see! Recent improvements include a new roof, chimney renovation, fresh paint, refinished wood floors, new carpet in the primary bedroom, hallway, and family room, as well as updated light fixtures. Additional upgrades feature a new and expanded driveway, epoxy-coated garage floor. New stovetop, granite countertops (2016) and replaced the sliding glass door in the basement. Landscaping and a newer deck complete the exterior enhancements. Inside, the spacious floor plan offers a large cook's kitchen with granite counters, eating area, built-in desk, and views of the beautiful backyard. The family room boasts a wood-burning fireplace, wet bar, and access to the expansive deck, which is also connected to the kitchen. The finished walkout basement adds an additional 1574 sq ft of space and includes a 5th bedroom, full bath, recreation room, and additional storage. The primary suite is a true retreat with tray ceilings, custom walk-in closets, and a luxurious private bath. Convenient location that is close to Metra, shopping and dining. With a blend of modern updates and timeless charm, this home is move-in ready and perfect for both everyday living and entertaining.
DAYS ON MARKET | 44 | LAST UPDATED | 9/30/2025 |
---|---|---|---|
TRACT | Wyndwood | YEAR BUILT | 1988 |
COMMUNITY | Crystal Lake / Lakewood / Prairie Grove | GARAGE SPACES | 3.0 |
COUNTY | McHenry | STATUS | Conditional |
PROPERTY TYPE(S) | Single Family |
School District | Prairie Ridge High School |
---|---|
Elementary School | Coventry Elementary School |
Jr. High School | Hannah Beardsley Middle School |
High School | Prairie Ridge High School |
ADDITIONAL DETAILS | |
AIR | Ceiling Fan(s), Central Air |
---|---|
AIR CONDITIONING | Yes |
APPLIANCES | Cooktop, Dishwasher, Disposal, Dryer, Microwave, Refrigerator, Trash Compactor, Washer, Water Softener, Water Softener Rented |
AREA | Crystal Lake / Lakewood / Prairie Grove |
BASEMENT | Exterior Entry, Finished, Full, Walk-Out Access, Yes |
CONSTRUCTION | Cedar |
FIREPLACE | Yes |
GARAGE | Yes |
HEAT | Forced Air, Natural Gas |
INTERIOR | Entrance Foyer, In-Law Floorplan, Walk-In Closet(s), Wet Bar |
LOT | 1.273 acre(s) |
LOT DESCRIPTION | Wooded |
LOT DIMENSIONS | 299 X 236 X 220 X 93 X 105 |
PARKING | Asphalt, Garage Door Opener, On Site, Attached, Garage |
SEWER | Septic Tank |
SUBDIVISION | Wyndwood |
TAXES | 12418 |
WATER | Well |
MORTGAGE CALCULATOR
TOTAL MONTHLY PAYMENT
0
P
I
*Estimate only
SATELLITE VIEW |
/ | |
We respect your online privacy and will never spam you. By submitting this form with your telephone number
you are consenting for Humderto
Garcia to contact you even if your name is on a Federal or State
"Do not call List".
Listed with Keller Williams Success Realty
The data relating to real estate for sale on this web site comes in part from the Broker ReciprocitySM Program of MRED. All real estate listings are marked with the Broker ReciprocitySM logo or the MRED Broker ReciprocitySM thumbnail logo (a little black house) and detailed information about them includes the name of the listing brokers.
The broker providing these data believes them to be correct, but advises interested parties to confirm them before relying on them in a purchase decision.
Copyright 2025 MRED. All rights reserved.

The broker providing these data believes them to be correct, but advises interested parties to confirm them before relying on them in a purchase decision.
Copyright 2025 MRED. All rights reserved.

This IDX solution is (c) Diverse Solutions 2025.