|
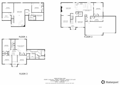
Stunning Brick Two-Story Home in the Prestigious Trails of Olympia Fields Subdivision. Welcome to this exceptional 6-bedroom, 3.5-bath residence boasting over 4,000 sq ft of finished living space and a spacious 3-car garage. Perfectly situated in a highly sought-after neighborhood, this move-in ready home has been beautifully maintained and thoughtfully upgraded throughout. Step inside to find recently refinished hardwood floors and custom recessed lighting enhancing every room. The formal living and dining rooms feature elegant 9-foot tray ceilings, perfect for entertaining. The expansive eat-in kitchen is a chef's dream with granite countertops, custom tile backsplash, vaulted ceilings, built-in pantry, and plenty of room for gatherings. Just off the kitchen, you'll find a true 5th bedroom, a stylish half bath, and a spacious laundry room. The cozy family room features a modern fire glass fireplace, creating the perfect ambiance for relaxing evenings. Upstairs, there are 4 generously sized bedrooms, including one with a private loft nook-ideal for reading or a study area. The luxurious primary suite is a retreat in itself with two walk-in closets and an additional bonus closet, a smokeless fireplace, and a hidden safe behind a wall mirror. The en-suite bathroom includes a jetted tub, steam shower with rainfall and multiple heads, and premium finishes throughout. The full finished basement offers endless possibilities with a rec room with wet bar and surround sound, a dedicated theater room (equipment included), a true 6th bedroom, private office, gym area, and a large storage room. Outside, enjoy the spacious backyard with an oversized concrete patio, new privacy fence (with transferable lifetime warranty), and a negotiable hot tub for year-round enjoyment. New roof installed in 2018. Ideally located near Olympia Fields Country Club, health food stores, grocery shopping, restaurants, and just a 4-minute walk to the Metra. Easy access to I-57, I-80, and I-294 makes commuting a breeze. This one checks all the boxes-space, luxury, location, and value. Schedule your private tour today; this one won't last long!
| DAYS ON MARKET | 69 | LAST UPDATED | 10/17/2025 |
|---|---|---|---|
| YEAR BUILT | 1995 | COMMUNITY | Olympia Fields |
| GARAGE SPACES | 3.0 | COUNTY | Cook |
| STATUS | Conditional | PROPERTY TYPE(S) | Single Family |
| School District | Fine Arts And Communications Cam |
|---|---|
| Elementary School | Arcadia Elementary School |
| Jr. High School | O W Huth Middle School |
| High School | Fine Arts And Communications Cam |
| ADDITIONAL DETAILS | |
| AIR | Ceiling Fan(s), Central Air |
|---|---|
| AIR CONDITIONING | Yes |
| APPLIANCES | Dishwasher, Disposal, Microwave, Range, Refrigerator, Stainless Steel Appliance(s) |
| AREA | Olympia Fields |
| BASEMENT | Finished, Full, Sump Pump, Yes |
| CONSTRUCTION | Brick, Vinyl Siding |
| FIREPLACE | Yes |
| GARAGE | Yes |
| HEAT | Forced Air, Natural Gas |
| HOA DUES | 150 |
| INTERIOR | Vaulted Ceiling(s), Walk-In Closet(s), Wet Bar |
| LOT | 0.357 acre(s) |
| LOT DIMENSIONS | 0.357 |
| PARKING | Garage Door Opener, On Site, Attached, Garage |
| SEWER | Public Sewer |
| TAXES | 15528 |
| WATER | Public |
MORTGAGE CALCULATOR
TOTAL MONTHLY PAYMENT
0
P
I
*Estimate only
| SATELLITE VIEW |
| / | |
We respect your online privacy and will never spam you. By submitting this form with your telephone number
you are consenting for Humderto
Garcia to contact you even if your name is on a Federal or State
"Do not call List".
Listed with Redfin Corporation
The data relating to real estate for sale on this web site comes in part from the Broker ReciprocitySM Program of MRED. All real estate listings are marked with the Broker ReciprocitySM logo or the MRED Broker ReciprocitySM thumbnail logo (a little black house) and detailed information about them includes the name of the listing brokers.
The broker providing these data believes them to be correct, but advises interested parties to confirm them before relying on them in a purchase decision.
Copyright 2025 MRED. All rights reserved.

The broker providing these data believes them to be correct, but advises interested parties to confirm them before relying on them in a purchase decision.
Copyright 2025 MRED. All rights reserved.
This IDX solution is (c) Diverse Solutions 2025.