|
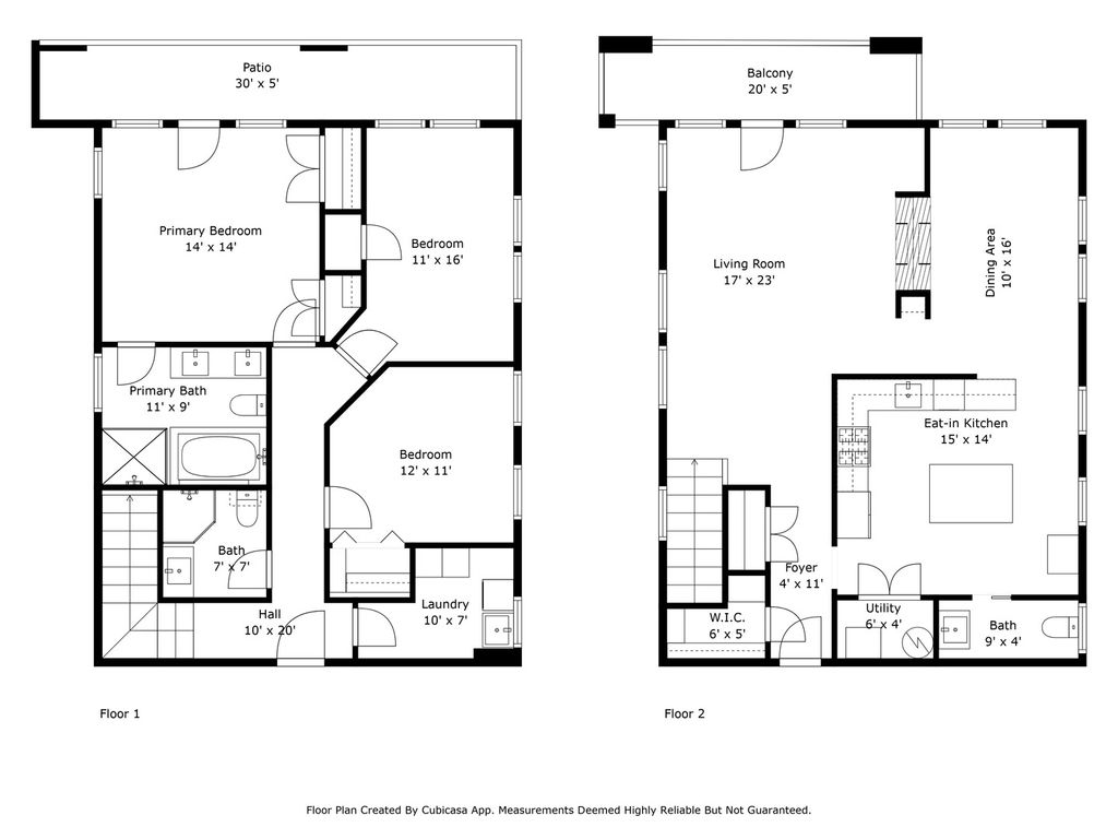
Welcome to this extra-wide Andersonville 3-bedroom, 2.5-bath duplex down, set in an intimate 4-unit building. It sits on a quiet street in beautiful Andersonville. With soaring 10-foot ceilings, graceful archways, and windows on three sides, the home is flooded with natural light across both levels and offers the feel of a single-family residence. The showstopper kitchen has been completely remodeled, featuring brand-new stainless steel appliances, modern cabinetry, stylish backsplash, quartz countertops, and an oversized island perfect for entertaining. A separate formal dining room and living room are connected by a striking two-sided fireplace, while hardwood floors throughout the main level add warmth and elegance. Downstairs, the newly designed primary suite boasts a spa-caliber bathroom with a steam shower, soaking tub, and dual vanity. Both the second full bath and half bath have been fully updated, as has the spacious laundry room, now complete with full-size front-load machines and a utility sink. All three bedrooms are thoughtfully situated on the same level. Two private outdoor spaces extend the living area, and garage parking is included. Perfectly located neat the lakefront, CTA buses and trains, Carmen play lot, and all of Andersonville's beloved shops and restaurants, this home truly blends modern comfort with neighborhood charm.
| DAYS ON MARKET | 65 | LAST UPDATED | 9/30/2025 |
|---|---|---|---|
| YEAR BUILT | 2000 | COMMUNITY | CHI - Uptown |
| GARAGE SPACES | 1.0 | COUNTY | Cook |
| STATUS | Conditional | PROPERTY TYPE(S) | Condo/Townhouse/Co-Op |
| School District | Senn High School |
|---|---|
| Elementary School | Mccutcheon Elementary School |
| High School | Senn High School |
| PRICE HISTORY | |
| Prior to Sep 15, '25 | $725,000 |
|---|---|
| Sep 15, '25 - Today | $699,000 |
| ADDITIONAL DETAILS | |
| AIR | Ceiling Fan(s), Central Air |
|---|---|
| AIR CONDITIONING | Yes |
| AMENITIES | Insurance, Snow Removal, Water |
| APPLIANCES | Dishwasher, Disposal, Dryer, Freezer, Humidifier, Microwave, Range, Refrigerator, Stainless Steel Appliance(s), Washer |
| AREA | CHI - Uptown |
| BASEMENT | None, Sump Pump, Yes |
| CONSTRUCTION | Block, Brick |
| EXTERIOR | Balcony |
| FIREPLACE | Yes |
| GARAGE | Yes |
| HEAT | Forced Air, Natural Gas, Radiant Floor |
| HOA DUES | 350 |
| INTERIOR | Bookcases, Entrance Foyer, High Ceilings, Storage, Walk-In Closet(s) |
| LOT | 0 |
| LOT DIMENSIONS | COMMON |
| PARKING | On Site, Detached, Garage |
| SEWER | Public Sewer |
| STORIES | 2 |
| TAXES | 7531 |
| UTILITIES | Cable Available |
MORTGAGE CALCULATOR
TOTAL MONTHLY PAYMENT
0
P
I
*Estimate only
| SATELLITE VIEW |
| / | |
We respect your online privacy and will never spam you. By submitting this form with your telephone number
you are consenting for Humderto
Garcia to contact you even if your name is on a Federal or State
"Do not call List".
Listed with @properties Christie's International Real Estate
The data relating to real estate for sale on this web site comes in part from the Broker ReciprocitySM Program of MRED. All real estate listings are marked with the Broker ReciprocitySM logo or the MRED Broker ReciprocitySM thumbnail logo (a little black house) and detailed information about them includes the name of the listing brokers.
The broker providing these data believes them to be correct, but advises interested parties to confirm them before relying on them in a purchase decision.
Copyright 2025 MRED. All rights reserved.

The broker providing these data believes them to be correct, but advises interested parties to confirm them before relying on them in a purchase decision.
Copyright 2025 MRED. All rights reserved.
This IDX solution is (c) Diverse Solutions 2025.