| 
 | 
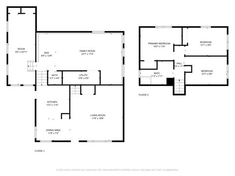
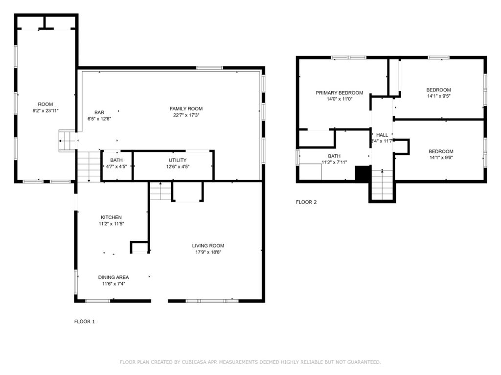
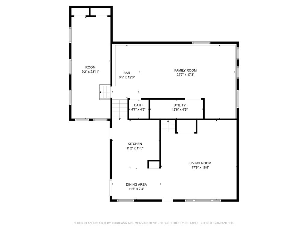
Welcome to this beautiful well maintained house that has been well taken care. Family have lived there for 25 years. The house has an extra room that was converted from an attached garage everything about it has been approved up to village code and permits. It boasts with a family room down in the basement with a bar. They have added an half bathroom as well. Bathroom upstairs has been remodeled. They built a detached garage with a custom garage door to it. The garage door system including sensors have been replaced in December of 2024. Not to say, the garage is also insulated! The house boasts with a long driveway that you can park more than one vehicle! Also the house has a fence in yard. Quiet neighborhood. Close distance to Rolling Meadows High School, Woodfield Mall and to the Interstate Highway. Stores and entertainment close driving distance from the house! The house is ready to make it yours! SOLD AS-IS
| DAYS ON MARKET | 62 | LAST UPDATED | 8/30/2025 | 
|---|---|---|---|
| YEAR BUILT | 1965 | COMMUNITY | Rolling Meadows | 
| GARAGE SPACES | 2.0 | COUNTY | Cook | 
| STATUS | Active | PROPERTY TYPE(S) | Single Family | 
| ADDITIONAL DETAILS | |
| AIR | Ceiling Fan(s), Central Air, Whole House Fan | 
|---|---|
| AIR CONDITIONING | Yes | 
| APPLIANCES | Dishwasher, Dryer, Freezer, Microwave, Range, Refrigerator, Washer | 
| AREA | Rolling Meadows | 
| BASEMENT | Finished, Full, Yes | 
| CONSTRUCTION | Aluminum Siding, Brick, Steel Siding, Vinyl Siding | 
| GARAGE | Yes | 
| HEAT | Forced Air, Natural Gas | 
| LOT | 0 | 
| LOT DIMENSIONS | 60 X 158 | 
| PARKING | Asphalt, Garage Door Opener, On Site, Detached, Garage | 
| SEWER | Public Sewer | 
| TAXES | 8485 | 
| UTILITIES | Cable Available | 
            MORTGAGE CALCULATOR
        
        TOTAL MONTHLY PAYMENT
0
                    P
                        I 
                    
            *Estimate only
        
    | SATELLITE VIEW | 
| / | |
	We respect your online privacy and will never spam you. By submitting this form with your telephone number
	you are consenting for Humderto
	Garcia to contact you even if your name is on a Federal or State
	"Do not call List".
	
    Listed with Century 21 Circle
	The data relating to real estate for sale on this web site comes in part from the Broker ReciprocitySM Program of MRED. All real estate listings are marked with the Broker ReciprocitySM logo or the MRED Broker ReciprocitySM thumbnail logo (a little black house) and detailed information about them includes the name of the listing brokers.
The broker providing these data believes them to be correct, but advises interested parties to confirm them before relying on them in a purchase decision.
Copyright 2025 MRED. All rights reserved.

	
	
	
    
The broker providing these data believes them to be correct, but advises interested parties to confirm them before relying on them in a purchase decision.
Copyright 2025 MRED. All rights reserved.

This IDX solution is (c) Diverse Solutions 2025.
 
				 Twitter
									        Twitter Facebook
									        Facebook Email
									        Email 
									 
									 
									 
									 
									 
									 
									 
									 
									 
									 
									 
									 
									 
									 
									 
									 
									 
									 
									 
									 
									 
									 
									 
									 
									 
									 
									 
									 
									 
									 
									 
									 
									 
									 
									 
									 
									 
									 
									 
									 
									 
									 
									 
									 
									 
									