|
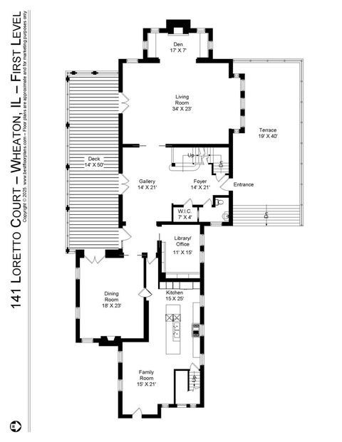
Built in 1897 by renowned architect Jarvis Hunt, the House of Seven Gables stands as one of Wheaton's most iconic residences. Commissioned as a wedding gift by Chicago steel magnate Jay Morse, the home was part of an exclusive enclave of summer estates near the Chicago Golf Club. With its grand Tudor facade, hand-carved woodwork, and seven distinctive gables, the home embodies the craftsmanship and elegance of the Gilded Age. Later known as the Loretto Convent, the mansion became a treasured local landmark. When its future was threatened by redevelopment, preservationists rallied to save it. In 2017, the entire 10,000-square-foot, 730-ton structure was skillfully relocated 500 feet and placed on a new foundation -- an engineering feat that captured regional attention and ensured the home's next chapter. Today, the House of Seven Gables offers a remarkable opportunity. The heavy lifting is complete, with structural work, modern infrastructure, all-new mechanicals, including zoned central heating and air conditioning, and public utilities. A newly built, attached three-car garage offers modern convenience, while the unfinished lower level, with 10-foot ceilings, provides endless potential for a recreation area, home gym, theater, wine cellar, or anything you envision. Set on a generous lot that backs up to Seven Gables Park, a 66.5-acre recreational destination, the property offers multiple outdoor spaces for relaxation and entertaining. Enjoy direct access to sports fields, tennis courts, an ice rink, and scenic walking trails-perfect for those who value an active, outdoor lifestyle. Located in the sought-after Whittier School district, part of Wheaton District 200, this home offers not only historic significance but everyday livability in a vibrant community. The foundation is laid, both literally and figuratively, for the next chapter. This architectural treasure is ready for its new steward to complete the vision and make it truly their own.
| DAYS ON MARKET | 202 | LAST UPDATED | 9/2/2025 |
|---|---|---|---|
| TRACT | Loretto Club | YEAR BUILT | 1897 |
| COMMUNITY | Wheaton | GARAGE SPACES | 3.0 |
| COUNTY | DuPage | STATUS | Active |
| PROPERTY TYPE(S) | Single Family |
| School District | Wheaton Warrenville South H S |
|---|---|
| Elementary School | Whittier Elementary School |
| Jr. High School | Edison Middle School |
| High School | Wheaton Warrenville South H S |
| ADDITIONAL DETAILS | |
| AIR | Central Air, Zoned |
|---|---|
| AIR CONDITIONING | Yes |
| APPLIANCES | Humidifier |
| AREA | Wheaton |
| BASEMENT | Exterior Entry, Full, Unfinished, Yes |
| CONSTRUCTION | Brick |
| FIREPLACE | Yes |
| GARAGE | Attached Garage, Yes |
| HEAT | Forced Air, Natural Gas, Zoned |
| HOA DUES | 95 |
| INTERIOR | Beamed Ceilings, Coffered Ceiling(s), High Ceilings, Walk-In Closet(s) |
| LOT | 0.48 acre(s) |
| LOT DESCRIPTION | Cul-de-sac |
| LOT DIMENSIONS | 20893 |
| PARKING | Attached, Garage |
| SEWER | Public Sewer |
| SUBDIVISION | Loretto Club |
| TAXES | 13912 |
| WATER | Public |
MORTGAGE CALCULATOR
TOTAL MONTHLY PAYMENT
0
P
I
*Estimate only
| SATELLITE VIEW |
| / | |
We respect your online privacy and will never spam you. By submitting this form with your telephone number
you are consenting for Humderto
Garcia to contact you even if your name is on a Federal or State
"Do not call List".
Listed with Engel & Voelkers Chicago
The data relating to real estate for sale on this web site comes in part from the Broker ReciprocitySM Program of MRED. All real estate listings are marked with the Broker ReciprocitySM logo or the MRED Broker ReciprocitySM thumbnail logo (a little black house) and detailed information about them includes the name of the listing brokers.
The broker providing these data believes them to be correct, but advises interested parties to confirm them before relying on them in a purchase decision.
Copyright 2026 MRED. All rights reserved.

The broker providing these data believes them to be correct, but advises interested parties to confirm them before relying on them in a purchase decision.
Copyright 2026 MRED. All rights reserved.
This IDX solution is (c) Diverse Solutions 2026.