|
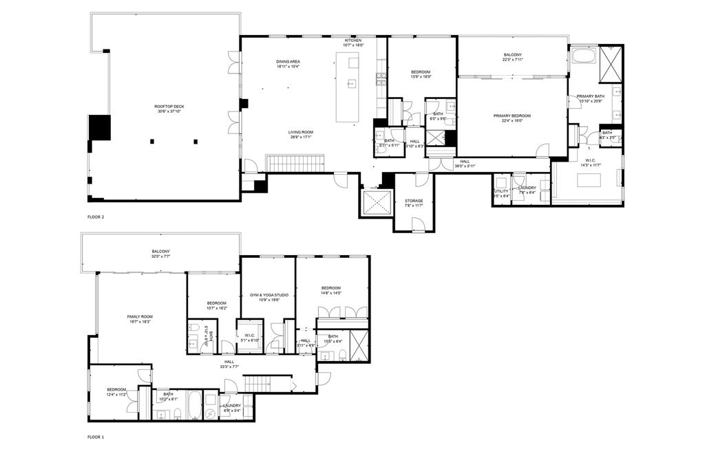
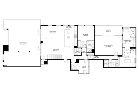
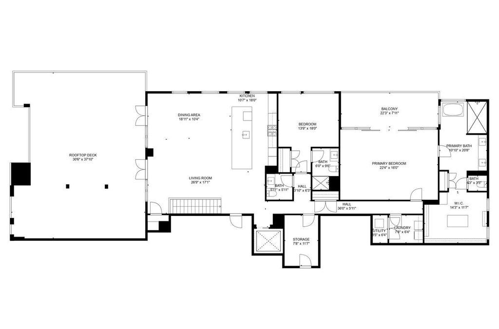
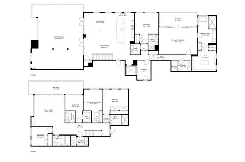
One of a kind light-filled Lincoln Park duplex penthouse. Private elevator entrance brings you to this top floor hidden gem featuring 6 bedrooms, 6 bathrooms and 3 outdoor spaces including an expansive 1200 square foot deck with magnificent City & Sunset views. This boutique building in the most exclusive section of Lincoln Park is minutes from everything you'd want in Chicago, designed by Pappageorge Haymes with Catherine Andrews custom interiors. Light abounds in this home, and the primary interior space flows naturally through floor to ceiling retractable doors, creating an expansive indoor/outdoor oasis where multiple seating areas and abundant space allow you to create the perfect outdoor urban refuge. The chef's kitchen is equipped with a Wolf 6-burner range + griddle, Italian cabinetry, Sub-zero family size refrigerator, 2 wine coolers & the Miele trifecta of speed oven, coffee machine and dishwasher. It's perfect for either entertaining or for functional everyday living. The main floor showcases a 36 foot gallery hallway leading to a true sanctuary of a primary bedroom, featuring custom cabinetry and a private balcony secluded in the treetops. The spa quality bathroom includes a distinctive soaking tub, walk-in steam shower and a robust walk-in closet featuring a central island, dressing benches, a handbag wall, dedicated shoe system, and abundant storage. An additional ensuite bedroom is also on this floor. The lower level (3rd Floor) features an oversized family/media room with custom white oak cabinetry, Maya Romanoff wallcoverings and features its own balcony nestled over the quiet dead end street. This level also includes four generously sized bedrooms and 2.5 bathrooms. The bedrooms are arranged so that walls could easily be opened to accommodate an expansive library, home gym, or a virtual corporate office. Both floors feature their own dedicated laundry rooms & separate HVAC systems for maximum comfort. The home is also complete with a Savant whole home smart system allowing for control of the custom automated window shades as well as music & televisions. Private two car garage with easy in-out access. Just steps from top restaurants (Alinea), top theater (Steppenwolf), and top shopping (North Clybourn or Armitage districts). Daily living is made easy with this prime location which is walking distance to the city's largest Whole Foods, train, and the lakefront. THIS is the reason Lincoln Park remains the city's most sought after neighborhood.
DAYS ON MARKET | 35 | LAST UPDATED | 9/3/2025 |
---|---|---|---|
YEAR BUILT | 2017 | COMMUNITY | CHI - Lincoln Park |
GARAGE SPACES | 2.0 | COUNTY | Cook |
STATUS | Active | PROPERTY TYPE(S) | Condo/Townhouse/Co-Op |
School District | Lincoln Park High School |
---|---|
Elementary School | Oscar Mayer Elementary School |
Jr. High School | Oscar Mayer Elementary School |
High School | Lincoln Park High School |
ADDITIONAL DETAILS | |
AIR | Central Air |
---|---|
AIR CONDITIONING | Yes |
AMENITIES | Insurance, Snow Removal, Water |
APPLIANCES | Cooktop, Dishwasher, Disposal, Dryer, Microwave, Oven, Range Hood, Stainless Steel Appliance(s), Washer, Water Purifier, Wine Refrigerator |
AREA | CHI - Lincoln Park |
BASEMENT | None |
CONSTRUCTION | Block, Brick |
EXTERIOR | Balcony, Barbecue, Outdoor Grill |
GARAGE | Yes |
HEAT | Natural Gas |
HOA DUES | 1863 |
INTERIOR | Built-in Features, Elevator, High Ceilings, Storage, Walk-In Closet(s) |
LOT | 0 |
LOT DIMENSIONS | COMMON |
PARKING | Garage Door Opener, Heated Garage, On Site, Attached, Garage |
SEWER | Public Sewer |
STORIES | 4 |
TAXES | 29471.52 |
WATER | Public |
MORTGAGE CALCULATOR
TOTAL MONTHLY PAYMENT
0
P
I
*Estimate only
SATELLITE VIEW |
/ | |
We respect your online privacy and will never spam you. By submitting this form with your telephone number
you are consenting for Humderto
Garcia to contact you even if your name is on a Federal or State
"Do not call List".
Listed with Captain Realty LLC
The data relating to real estate for sale on this web site comes in part from the Broker ReciprocitySM Program of MRED. All real estate listings are marked with the Broker ReciprocitySM logo or the MRED Broker ReciprocitySM thumbnail logo (a little black house) and detailed information about them includes the name of the listing brokers.
The broker providing these data believes them to be correct, but advises interested parties to confirm them before relying on them in a purchase decision.
Copyright 2025 MRED. All rights reserved.

The broker providing these data believes them to be correct, but advises interested parties to confirm them before relying on them in a purchase decision.
Copyright 2025 MRED. All rights reserved.

This IDX solution is (c) Diverse Solutions 2025.