|
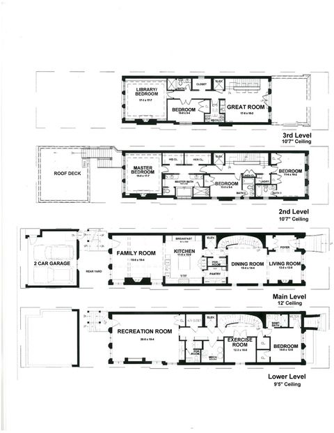
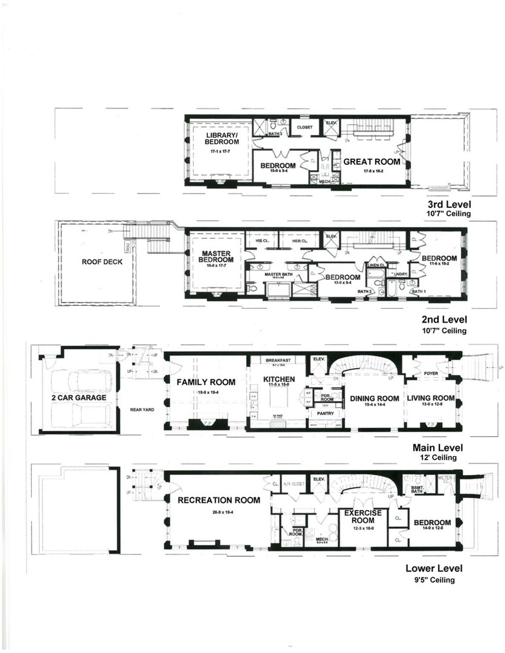
1720 N. Mohawk is a showpiece residence situated on one of East Lincoln Park's most coveted streets. Conceived by award-winning LG Development and masterfully designed by Dan Rak, known for his classically contemporary interiors that are precisely tailored and seamlessly executed. This remarkable 6,000 square foot home with six bedrooms achieves the perfect balance of classical architecture, modern comfort, and high design. From the moment you enter, the soaring 12-foot ceilings and grand custom staircase set the tone. The second and third floors feature impressive 10'6" ceilings, while even the lower level offers over 9 feet of ceiling height, ensuring volume and light throughout every level of the home. Every element speaks to exceptional craftsmanship, exquisite trim and millwork, custom built-ins, rift- and quarter-sawn hardwood flooring, elegant hardware, and dramatic fireplaces. Expansive windows frame tree-lined east views, while a proper entry gallery leads to a paneled living room and adjoining dining room anchored by a statement linear chandelier, creating a refined atmosphere for both everyday living and formal entertaining. At the heart of the home is a chef's kitchen designed for both beauty and performance: top-of-the-line cabinetry, professional-grade appliances, an oversized island, and a butler's pantry. The kitchen opens seamlessly to a large eat-in area and a sun-filled family room with coffered ceiling, fireplace, and direct access to private outdoor spaces, including a roof deck with pergola over the 2.5 car garage. The second-floor hosts two ensuite bedrooms and the primary suite, a serene retreat with dual walk-in closets, fireplace with custom built-ins, and a spa bath clad in marble. This sanctuary includes radiant heated floors, polished nickel fixtures, a double vanity, steam shower, and soaking tub. Multiple laundry rooms provide convenience on multiple levels. A skylit staircase brings you to the top level, where a flexible great room with a wet bar opens to a large roof deck with private tree top views. Additional rooms include a private office, extra bedroom, and bath. The oversized windows throughout the home allow an abundance of sunlight. The lower level offers an extraordinary mix of style and function, with a media room with bar, a gym, and a sixth ensuite bedroom. The home was intelligently designed elevator-ready, with stacked closet space available for future installation if desired. The exterior is secured with a 6-foot wrought iron fence, snow melt system, Doorbird video doorbell, irrigation & custom planter boxes. This location cannot be beat, and no detail has been overlooked at 1720 Mohawk-this residence is the epitome of refined Chicago luxury, designed for grand entertaining as well as intimate daily living.
DAYS ON MARKET | 21 | LAST UPDATED | 9/17/2025 |
---|---|---|---|
YEAR BUILT | 2015 | COMMUNITY | CHI - Lincoln Park |
GARAGE SPACES | 2.5 | COUNTY | Cook |
STATUS | Active | PROPERTY TYPE(S) | Single Family |
School District | Lincoln Park High School |
---|---|
Elementary School | Lincoln Elementary School |
Jr. High School | Lincoln Elementary School |
High School | Lincoln Park High School |
ADDITIONAL DETAILS | |
AIR | Ceiling Fan(s), Central Air, Zoned |
---|---|
AIR CONDITIONING | Yes |
APPLIANCES | Dishwasher, Disposal, Dryer, Humidifier, Range, Refrigerator, Washer |
AREA | CHI - Lincoln Park |
BASEMENT | Daylight, Full, Other, Sump Pump, Yes |
CONSTRUCTION | Brick |
EXTERIOR | Balcony |
FIREPLACE | Yes |
GARAGE | Yes |
HEAT | Forced Air, Natural Gas, Radiant, Zoned |
LOT | 2927 sq ft |
LOT DIMENSIONS | 24 X 125 |
PARKING | Concrete, Garage Door Opener, On Site, Detached, Garage |
SEWER | Public Sewer |
STYLE | Other |
TAXES | 57758.55 |
WATER | Public |
MORTGAGE CALCULATOR
TOTAL MONTHLY PAYMENT
0
P
I
*Estimate only
SATELLITE VIEW |
/ | |
We respect your online privacy and will never spam you. By submitting this form with your telephone number
you are consenting for Humderto
Garcia to contact you even if your name is on a Federal or State
"Do not call List".
Listed with @properties Christie's International Real Estate
The data relating to real estate for sale on this web site comes in part from the Broker ReciprocitySM Program of MRED. All real estate listings are marked with the Broker ReciprocitySM logo or the MRED Broker ReciprocitySM thumbnail logo (a little black house) and detailed information about them includes the name of the listing brokers.
The broker providing these data believes them to be correct, but advises interested parties to confirm them before relying on them in a purchase decision.
Copyright 2025 MRED. All rights reserved.

The broker providing these data believes them to be correct, but advises interested parties to confirm them before relying on them in a purchase decision.
Copyright 2025 MRED. All rights reserved.

This IDX solution is (c) Diverse Solutions 2025.