|
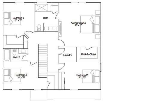
SPECIAL FINANCING AVAILABLE!! READY FOR JANUARY DELIVERY!! Homesite #0172 Unveil the Starling, an expertly constructed home where exceptional design blends effortlessly with everyday comfort. This airy design offers four bedrooms, two bathrooms, a powder room, and a versatile flex room, perfect for adapting to your lifestyle. Luxury vinyl plank flooring flows throughout the main living space, creating a warm and inviting atmosphere in the open-concept family room, dining area, and kitchen. The chef-inspired kitchen features stainless steel appliances, sleek 42" cabinetry, elegant quartz countertops, and a large island that serves as both a focal point and a functional workspace. A built-in pantry adds extra convenience and storage. The owner's suite, situated on the upper level, is an oasis with a generous walk-in closet and a spa-like en-suite bathroom. The bathroom includes double sinks and a deluxe shower, creating a luxurious space for relaxation. Three additional bedrooms share a full bathroom, and the convenience of a second-floor laundry room makes everyday tasks easier. The first floor features a flexible space that can be customized to fit your needs-whether it's a home office, dining room, or entertainment area, the possibilities are endless. Additionally, a standard two-car garage provides ample parking and storage Exterior will be Aspen White colored vinyl siding with Manor House brick. (pic for reference ONLY) *Photos are not this actual home* Discover Heritage Hill Estates - Spacious Living in Scenic Maple Park. Heritage Hill Estates offers a collection of new, spacious single-family homes in the charming village of Maple Park. Perfectly positioned near major routes, this inviting community provides easy access to both everyday conveniences and peaceful natural surroundings. Residents enjoy close proximity to beloved local attractions such as the historic Ellwood House Museum and a variety of parks perfect for outdoor fun and recreation. Just steps from home, Memorial Park-located on the north end of the community-offers walking trails, serene pond views, and quiet benches for relaxation. With the perfect blend of small-town charm, green space, and accessibility, Heritage Hill Estates is a place where families can truly feel at home.
DAYS ON MARKET | 33 | LAST UPDATED | 9/16/2025 |
---|---|---|---|
TRACT | Heritage Hill Estates | YEAR BUILT | 2025 |
COMMUNITY | Lily Lake / Maple Park | GARAGE SPACES | 2.0 |
COUNTY | DeKalb | STATUS | Active |
PROPERTY TYPE(S) | Single Family |
School District | Kaneland Senior High School |
---|---|
Elementary School | John Stewart Elementary |
Jr. High School | Harter Middle School |
High School | Kaneland Senior High School |
PRICE HISTORY | |
Prior to Sep 9, '25 | $406,990 |
---|---|
Sep 9, '25 - Sep 16, '25 | $401,040 |
Sep 16, '25 - Today | $403,940 |
ADDITIONAL DETAILS | |
AIR | Central Air |
---|---|
AIR CONDITIONING | Yes |
APPLIANCES | Dishwasher, Disposal, Microwave, Range, Stainless Steel Appliance(s) |
AREA | Lily Lake / Maple Park |
BASEMENT | Full, Unfinished, Yes |
CONSTRUCTION | Brick, Vinyl Siding |
GARAGE | Yes |
HEAT | Forced Air, Natural Gas |
LOT | 0 |
LOT DIMENSIONS | 10512 |
PARKING | Asphalt, Garage Door Opener, On Site, Attached, Garage |
SEWER | Public Sewer |
SUBDIVISION | Heritage Hill Estates |
WATER | Public |
MORTGAGE CALCULATOR
TOTAL MONTHLY PAYMENT
0
P
I
*Estimate only
SATELLITE VIEW |
/ | |
We respect your online privacy and will never spam you. By submitting this form with your telephone number
you are consenting for Humderto
Garcia to contact you even if your name is on a Federal or State
"Do not call List".
Listed with HomeSmart Connect LLC
The data relating to real estate for sale on this web site comes in part from the Broker ReciprocitySM Program of MRED. All real estate listings are marked with the Broker ReciprocitySM logo or the MRED Broker ReciprocitySM thumbnail logo (a little black house) and detailed information about them includes the name of the listing brokers.
The broker providing these data believes them to be correct, but advises interested parties to confirm them before relying on them in a purchase decision.
Copyright 2025 MRED. All rights reserved.

The broker providing these data believes them to be correct, but advises interested parties to confirm them before relying on them in a purchase decision.
Copyright 2025 MRED. All rights reserved.

This IDX solution is (c) Diverse Solutions 2025.