|
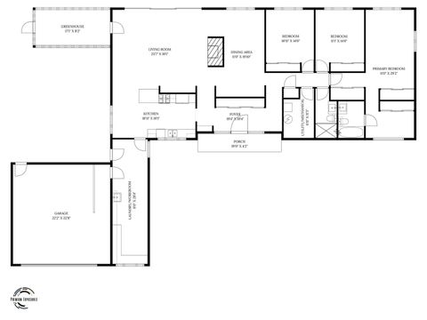
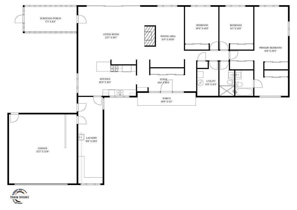
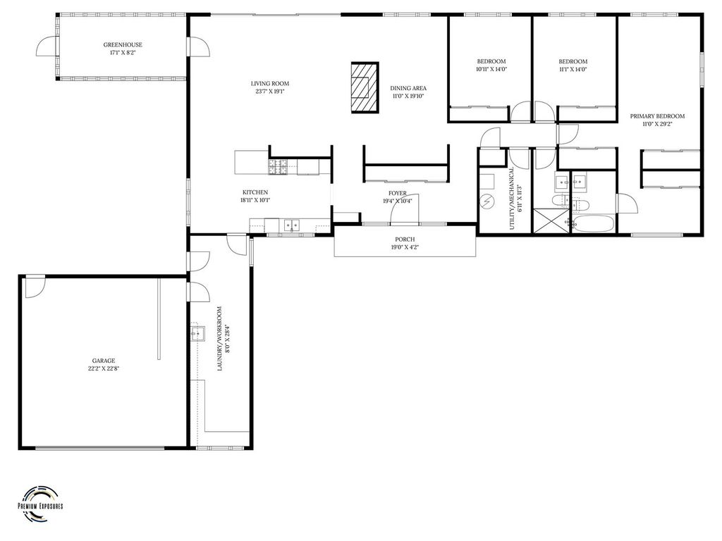
Homes on the Urbana Country Club golf course do not come along often, and this one truly stands out. With 3 bedrooms, 2 baths, and 1,996 sq. ft., 301 G H Baker Drive pairs modern updates with a setting that feels peaceful the second you step inside. The entry is bright and welcoming, with picture windows that bring in beautiful natural light and immediately draw you toward the views out back. The updated kitchen overlooks the open living space, so whether you're cooking dinner or hosting friends, you're always connected. The double sided fireplace between the living and dining rooms is the kind of feature that makes the home feel warm and inviting, perfect for cozy evenings or gathering everyone together during the holidays. You also get two dining spaces that fit real life, a formal dining room for celebrations, plus an eat in kitchen area that stays open to the main living room so conversations keep going. The primary suite feels like a retreat, with oversized closets that create a natural separation between the sleeping area and a true dressing space, keeping things organized and giving the room a more private feel. One of the most unique spaces is the attached greenhouse, accessible from inside and out, ideal for year round plants, hobbies, or a sunny spot to unwind. Add in the spacious laundry and workroom off the garage with a deep sink, great counter space, and plenty of shelving, and it's easy to see how thoughtfully this home is set up for everyday living. With sweeping course views, standout features, and updates throughout, this is a rare opportunity to live right on the fairway and love coming home every day.
| DAYS ON MARKET | 194 | LAST UPDATED | 3/4/2026 |
|---|---|---|---|
| YEAR BUILT | 1960 | COMMUNITY | Urbana |
| GARAGE SPACES | 2.0 | COUNTY | Champaign |
| STATUS | Active | PROPERTY TYPE(S) | Single Family |
| School District | Urbana High School |
|---|---|
| Elementary School | Wiley Elementary School |
| Jr. High School | Urbana Middle School |
| High School | Urbana High School |
| PRICE HISTORY | |
| Prior to Jan 29, '26 | $500,000 |
|---|---|
| Jan 29, '26 - Mar 4, '26 | $490,000 |
| Mar 4, '26 - Today | $485,000 |
| ADDITIONAL DETAILS | |
| AIR | Central Air |
|---|---|
| AIR CONDITIONING | Yes |
| APPLIANCES | Dishwasher, Range, Range Hood, Refrigerator, Stainless Steel Appliance(s) |
| AREA | Urbana |
| BASEMENT | Crawl Space |
| CONSTRUCTION | Brick, Vinyl Siding |
| FIREPLACE | Yes |
| GARAGE | Attached Garage, Yes |
| HEAT | Forced Air, Natural Gas |
| INTERIOR | Entrance Foyer |
| LOT | 0 |
| LOT DESCRIPTION | On Golf Course |
| LOT DIMENSIONS | 110 x 150 |
| PARKING | Garage Door Opener, Attached, Garage |
| SEWER | Public Sewer |
| STYLE | Ranch |
| TAXES | 7302 |
| WATER | Public |
MORTGAGE CALCULATOR
TOTAL MONTHLY PAYMENT
0
P
I
*Estimate only
| SATELLITE VIEW |
| / | |
We respect your online privacy and will never spam you. By submitting this form with your telephone number
you are consenting for Humderto
Garcia to contact you even if your name is on a Federal or State
"Do not call List".
Listed with Realty Select One
The data relating to real estate for sale on this web site comes in part from the Broker ReciprocitySM Program of MRED. All real estate listings are marked with the Broker ReciprocitySM logo or the MRED Broker ReciprocitySM thumbnail logo (a little black house) and detailed information about them includes the name of the listing brokers.
The broker providing these data believes them to be correct, but advises interested parties to confirm them before relying on them in a purchase decision.
Copyright 2026 MRED. All rights reserved.

The broker providing these data believes them to be correct, but advises interested parties to confirm them before relying on them in a purchase decision.
Copyright 2026 MRED. All rights reserved.
This IDX solution is (c) Diverse Solutions 2026.