|
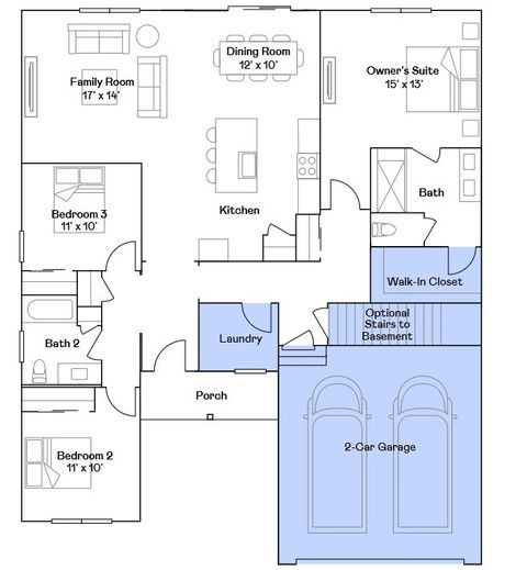
SPECIAL FINANCING OFFERS AVAILABLE!! READY FOR NOVEMBER DELIVERY!!!! Homesite# 0027 Welcome to the Rutherford - a beautifully crafted single-story home that perfectly blends modern design with everyday functionality. Thoughtfully laid out with three spacious bedrooms and two full bathrooms, this open-concept floor plan is designed to promote effortless flow and comfortable living. At the heart of the home, the stylish kitchen impresses with a large center island, Quartz countertops, sleek stainless steel appliances, and ample cabinetry-ideal for everything from casual weeknight meals to lively weekend gatherings. The private owner's suite serves as a serene retreat, featuring a generous walk-in closet and a spa-inspired en-suite bath with premium fixtures and finishes for a truly relaxing experience. Two additional bedrooms are conveniently located near a shared full bathroom, making them perfect for family, guests, or a dedicated home office. Designed with both comfort and style in mind, the Rutherford includes 9-foot ceilings, luxury vinyl plank flooring, plush carpeting in bedrooms, Deluxe shower upgrades, smart-height water-saving commodes, and many more premium features that enhance modern living. Whether you're downsizing or seeking a more streamlined lifestyle, the Rutherford is a smart and sophisticated choice for today's homeowner. Exterior will be Clay color vinyl siding with Manor House color brick. (pic for reference ONLY) *Photos are not this actual home* Experience the perfect blend of comfort, convenience, and outdoor living at Prairie Meadows, a charming new community offering low-maintenance ranch-style homes in the vibrant suburbs of Aurora, Illinois. Thoughtfully designed for effortless living and a love of nature, Prairie Meadows delivers a lifestyle centered on relaxation, recreation, and meaningful community connection. This thoughtfully planned neighborhood will feature a scenic park and playground, modern pickleball courts, a welcoming picnic shelter, fire pit, and comfortable seating areas, along with approximately 15 acres of open space to enjoy fresh air and the natural surroundings. Living at Prairie Meadows means you're just minutes from some of Aurora's most popular attractions. Downtown's RiverEdge Park offers outdoor festivals, an amphitheater, and scenic trails along the Fox River, making it a go-to destination for entertainment and relaxation. For shopping enthusiasts, the Chicago Premium Outlets is a premier open-air retail center featuring more than 170 designer brands, seasonal events, and unbeatable deals. Golfers will love the nearby Orchard Valley Golf Course, a beautifully maintained 18-hole championship course perfect for both casual and competitive play, complete with a welcoming clubhouse for dining and socializing. Whether you're enjoying a quiet walk through green space or spending the day exploring downtown Aurora, Prairie Meadows is where peaceful suburban living meets a vibrant, active lifestyle.
| DAYS ON MARKET | 54 | LAST UPDATED | 9/3/2025 |
|---|---|---|---|
| TRACT | Prairie Meadows | YEAR BUILT | 2025 |
| COMMUNITY | Aurora / Eola | GARAGE SPACES | 2.0 |
| COUNTY | Kane | STATUS | Active |
| PROPERTY TYPE(S) | Single Family |
| School District | West Aurora High School |
|---|---|
| Elementary School | Freeman Elementary School |
| Jr. High School | Washington Middle School |
| High School | West Aurora High School |
| ADDITIONAL DETAILS | |
| AIR | Central Air |
|---|---|
| AIR CONDITIONING | Yes |
| AMENITIES | Insurance, Snow Removal |
| APPLIANCES | Dishwasher, Disposal, Microwave, Range, Stainless Steel Appliance(s) |
| AREA | Aurora / Eola |
| BASEMENT | Full, Unfinished, Yes |
| CONSTRUCTION | Brick, Vinyl Siding |
| GARAGE | Yes |
| HEAT | Forced Air, Natural Gas |
| HOA DUES | 250 |
| LOT | 0 |
| LOT DIMENSIONS | 8001 |
| PARKING | Asphalt, Garage Door Opener, On Site, Attached, Garage |
| SEWER | Public Sewer |
| SUBDIVISION | Prairie Meadows |
| WATER | Public |
MORTGAGE CALCULATOR
TOTAL MONTHLY PAYMENT
0
P
I
*Estimate only
| SATELLITE VIEW |
| / | |
We respect your online privacy and will never spam you. By submitting this form with your telephone number
you are consenting for Humderto
Garcia to contact you even if your name is on a Federal or State
"Do not call List".
Listed with HomeSmart Connect LLC
The data relating to real estate for sale on this web site comes in part from the Broker ReciprocitySM Program of MRED. All real estate listings are marked with the Broker ReciprocitySM logo or the MRED Broker ReciprocitySM thumbnail logo (a little black house) and detailed information about them includes the name of the listing brokers.
The broker providing these data believes them to be correct, but advises interested parties to confirm them before relying on them in a purchase decision.
Copyright 2025 MRED. All rights reserved.

The broker providing these data believes them to be correct, but advises interested parties to confirm them before relying on them in a purchase decision.
Copyright 2025 MRED. All rights reserved.
This IDX solution is (c) Diverse Solutions 2025.