|
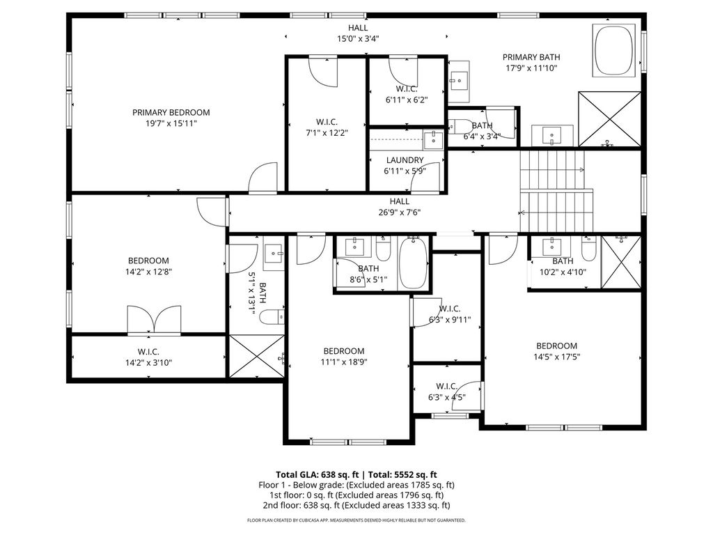
Welcome to your future dream home in Naperville's highly sought-after West Highlands neighborhood! Currently under construction, this stunning residence will offer over 6,000 square feet of luxury living on a quiet, tree-lined street surrounded by other elegant homes. Designed with both comfort and sophistication in mind, the home features 6 spacious bedrooms including a first-floor ensuite (perfect for guests, multigenerational living, or a home office), soaring 10-foot ceilings, 8-foot doors, a massive chef's kitchen with oversized island and Thermador appliances, cozy breakfast room, sitting area, laundry/mudroom, and a welcoming 22x8 front porch. Upstairs you'll find 4 bedrooms with walk-in closets and ensuite baths, along with a lavish primary suite offering dual sinks, walk-in shower, soaking tub, and private water closet, while the finished basement extends your living space with 9-foot ceilings, a 6th bedroom, full bath, wet bar, exercise or game room, carpeting, and a sprawling entertainment area with storage. This luxury home showcases top-quality details including 400 Amp service, 16x20 paver patio, brick exterior with LP Smart Trim and James Hardie siding, dual 95% efficient American Standard HVAC systems, 75-gallon A.O. Smith water heater, interior and exterior drain tiles with Watchdog battery backup sump pump, Pella wood-clad casement windows, architectural roof shingles with metal accents, plumbing fixtures by Delta, Kohler, and Grohe, red oak hardwood floors with a tan/white finish throughout the 1st and 2nd floors, and porcelain tile bathrooms. Ideally located just blocks from Downtown Naperville, the Riverwalk, shops, and restaurants, this rare opportunity won't last-there's still time to pick your final finishes, so call today for details! Taxes are from previous home- was a tear down. MORE ABOUT THE BUILDER....MD Pro Builders, led by owner and builder Marcin, brings over a decade of luxury homebuilding experience to Naperville. Marcin began his career in 2015 as co-founder of North Prime Homes on the North Shore, later branching out to establish MD Pro Builders independently. After relocating to Naperville with his family to take advantage of the area's excellent schools, he is now focused on creating exceptional custom residences throughout the western suburbs. His craftsmanship and attention to detail are second to none, delivering homes of outstanding quality and design.
DAYS ON MARKET | 22 | LAST UPDATED | 9/11/2025 |
---|---|---|---|
TRACT | West Highlands | YEAR BUILT | 2025 |
COMMUNITY | Naperville | GARAGE SPACES | 3.0 |
COUNTY | DuPage | STATUS | Active |
PROPERTY TYPE(S) | Single Family |
School District | Naperville Central High School |
---|---|
Elementary School | Elmwood Elementary School |
Jr. High School | Lincoln Junior High School |
High School | Naperville Central High School |
ADDITIONAL DETAILS | |
AIR | Ceiling Fan(s), Central Air |
---|---|
AIR CONDITIONING | Yes |
APPLIANCES | Dishwasher, Disposal, Double Oven, Gas Cooktop, Microwave, Refrigerator, Stainless Steel Appliance(s) |
AREA | Naperville |
BASEMENT | Finished, Full, Yes |
CONSTRUCTION | Fiber Cement, Wood Siding |
FIREPLACE | Yes |
GARAGE | Yes |
HEAT | Forced Air, Natural Gas |
INTERIOR | Cathedral Ceiling(s), Entrance Foyer, High Ceilings, In-Law Floorplan, Open Floorplan, Pantry, Walk-In Closet(s) |
LOT | 0 |
LOT DIMENSIONS | 69X35X129X60X135 |
PARKING | Asphalt, Garage Door Opener, On Site, Attached, Garage |
SEWER | Public Sewer |
STYLE | Contemporary, Traditional |
SUBDIVISION | West Highlands |
TAXES | 7645 |
MORTGAGE CALCULATOR
TOTAL MONTHLY PAYMENT
0
P
I
*Estimate only
SATELLITE VIEW |
/ | |
We respect your online privacy and will never spam you. By submitting this form with your telephone number
you are consenting for Humderto
Garcia to contact you even if your name is on a Federal or State
"Do not call List".
Listed with Coldwell Banker Real Estate Group
The data relating to real estate for sale on this web site comes in part from the Broker ReciprocitySM Program of MRED. All real estate listings are marked with the Broker ReciprocitySM logo or the MRED Broker ReciprocitySM thumbnail logo (a little black house) and detailed information about them includes the name of the listing brokers.
The broker providing these data believes them to be correct, but advises interested parties to confirm them before relying on them in a purchase decision.
Copyright 2025 MRED. All rights reserved.

The broker providing these data believes them to be correct, but advises interested parties to confirm them before relying on them in a purchase decision.
Copyright 2025 MRED. All rights reserved.

This IDX solution is (c) Diverse Solutions 2025.