|
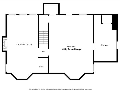
**FHA financing welcome! PASSED village code inspection!**NEW ROOF & NEW HVAC!**HISTORIC 1937 GEORGIAN two story home in the highly desirable historic district of Chicago Heights! Lovingly maintained by long time owners, this 3 bedroom 2.5 bath solid brick home with partially finished basement boasts over 2,900 finished sq ft; including 2 wood burning fireplaces, 2 enclosed porches & 2 rooftop decks! Oversized FENCED IN YARD with mature trees & privacy shows like a park; (over half an acre). Impressive foyer with original staircase, HARDWOOD FLOORS, arched doorways, crown molding, 2 full "retro" baths plus a main floor powder room. Plenty of space for entertaining, with a main floor LR w/ fireplace, formal DR & main floor family room, enclosed screen porch, knotty-pine breakfast nook PLUS another enclosed porch/breezeway leading to 16x24 patio & 2 car garage! Spacious primary suite with roof-top deck & private bath boasts FOUR closets, including a dedicated "shoe closet!" BASEMENT features a FINISHED Rec room with knotty pine walls, cozy wood burning fireplace & BAR. Large utility/laundry room with plenty of storage. NEW FURNACE just 2 years old, BRAND NEW 5 ton AC in August (built in wall units upstairs are supplementary only). NEW $35k ROOF just 3 yrs old with new gutters/downspouts. ALREADY PASSED VILLAGE CODE INSPECTION! Seller will address reasonable lender requirements, but otherwise selling "AS IS." MINT condition historical home, unlike anything on the market, is ready for its next chapter!
| DAYS ON MARKET | 104 | LAST UPDATED | 11/7/2025 |
|---|---|---|---|
| YEAR BUILT | 1937 | COMMUNITY | Chicago Heights |
| GARAGE SPACES | 2.0 | COUNTY | Cook |
| STATUS | Active | PROPERTY TYPE(S) | Single Family |
| PRICE HISTORY | |
| Prior to Oct 3, '25 | $349,900 |
|---|---|
| Oct 3, '25 - Nov 7, '25 | $335,000 |
| Nov 7, '25 - Today | $325,000 |
| ADDITIONAL DETAILS | |
| AIR | Ceiling Fan(s), Central Air, Wall Unit(s) |
|---|---|
| AIR CONDITIONING | Yes |
| APPLIANCES | Cooktop, Dishwasher, Dryer, Microwave, Range, Refrigerator, Washer |
| AREA | Chicago Heights |
| BASEMENT | Daylight, Full, Partially Finished, Yes |
| CONSTRUCTION | Brick |
| FIREPLACE | Yes |
| GARAGE | Attached Garage, Yes |
| HEAT | Forced Air, Natural Gas |
| INTERIOR | Built-in Features, Dry Bar |
| LOT | 0.626 acre(s) |
| LOT DIMENSIONS | 126x246 |
| PARKING | Concrete, Garage Door Opener, Attached, Garage |
| SEWER | Public Sewer |
| STYLE | Georgian |
| TAXES | 9992.07 |
MORTGAGE CALCULATOR
TOTAL MONTHLY PAYMENT
0
P
I
*Estimate only
| SATELLITE VIEW |
| / | |
We respect your online privacy and will never spam you. By submitting this form with your telephone number
you are consenting for Humderto
Garcia to contact you even if your name is on a Federal or State
"Do not call List".
Listed with Re/Max 10
The data relating to real estate for sale on this web site comes in part from the Broker ReciprocitySM Program of MRED. All real estate listings are marked with the Broker ReciprocitySM logo or the MRED Broker ReciprocitySM thumbnail logo (a little black house) and detailed information about them includes the name of the listing brokers.
The broker providing these data believes them to be correct, but advises interested parties to confirm them before relying on them in a purchase decision.
Copyright 2025 MRED. All rights reserved.

The broker providing these data believes them to be correct, but advises interested parties to confirm them before relying on them in a purchase decision.
Copyright 2025 MRED. All rights reserved.
This IDX solution is (c) Diverse Solutions 2025.