|
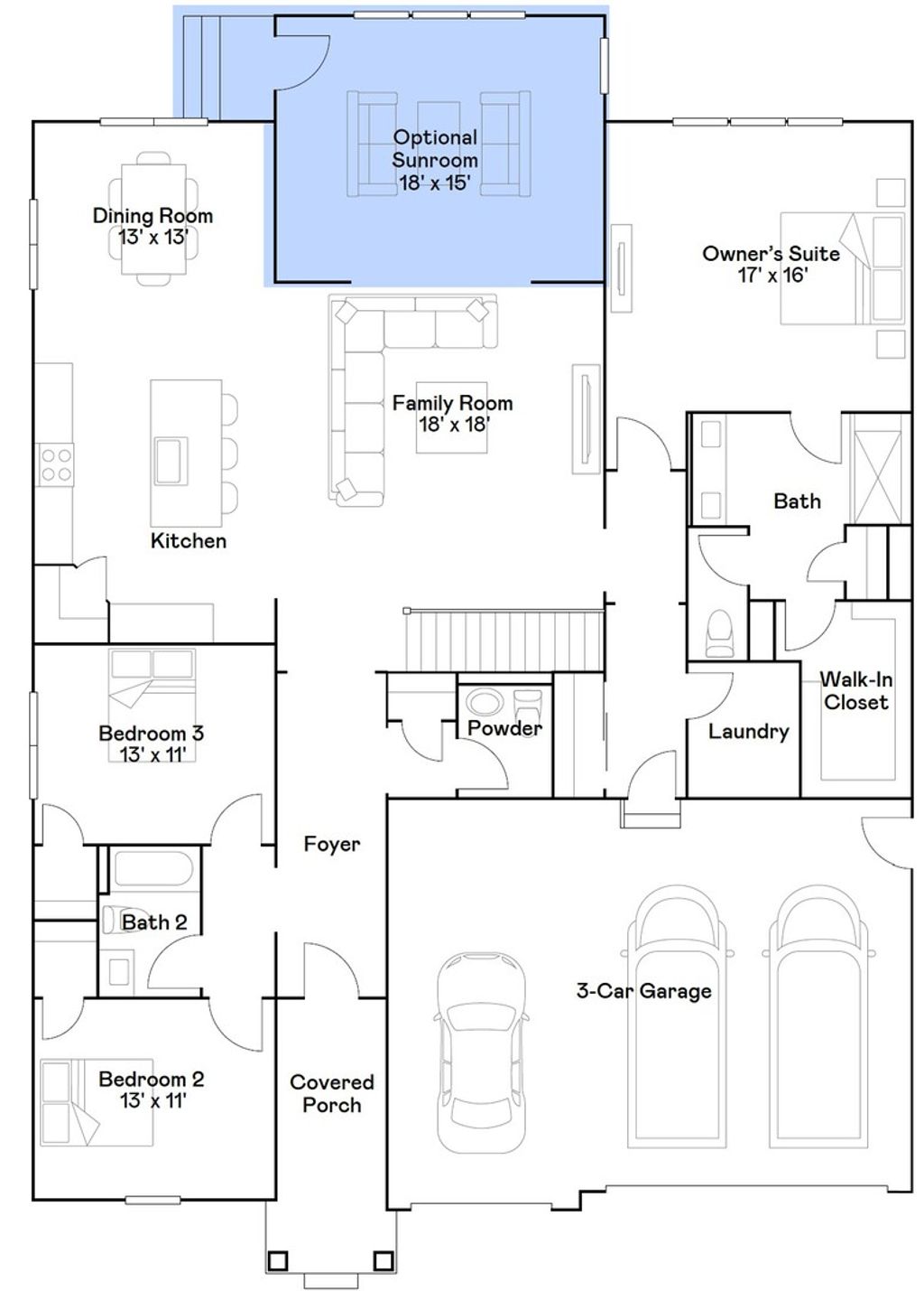
SPECIAL FINANCING OFFERS AVAILABLE!! READY FOR FEBRUARY DELIVERY!!!! Homesite# 0046 Welcome to the Adams plan - a thoughtfully designed single-story home that balances comfort, efficiency, and modern appeal. This layout features three bedrooms and 2.5 bathrooms in an open-concept design that creates a seamless flow between the family room, dining area, and kitchen. At the heart of the home, the kitchen offers a spacious island, stainless steel appliances, and generous cabinetry-perfect for both daily living and casual entertaining. Sliding glass doors in the dining area lead directly to a sunroom, ideal for relaxing or indoor gatherings. The luxurious owner's suite serves as a peaceful retreat, complete with a generous walk in closet and a spa style en suite bathroom. Two secondary bedrooms share the hallway bathroom, offering flexible use as guest rooms, a home office, or space for family members. A three car garage and a conveniently located laundry room enhance the home's functional appeal. The Adams delivers modern living in a streamlined, practical layout designed to suit a variety of lifestyles. Exterior will be slate Espresso vinyl siding with Old World Ledge - Coastal Brown color stone. (pic for reference ONLY) *Photos are not this actual home* Nestled in a beautifully planned community, Algonquin Meadows offers a variety of thoughtfully designed single-family homes, traditional townhomes, and urban townhomes - all set among serene green spaces and tranquil ponds. Winding streets, cul-de-sacs, and walking paths create a peaceful neighborhood atmosphere that feels private, yet perfectly connected. Just minutes away, charming downtown Algonquin awaits with scenic riverfront parks, fishing spots, and a vibrant local culture. You'll enjoy convenient access to premier destinations like Northwestern Medicine, top-rated golf courses, and fitness centers such as Lifetime Fitness. Located right off the Randall Road corridor, you're surrounded by some of the area's best shopping and dining - including Trader Joe's, Cooper's Hawk, Target, Costco, and Algonquin Commons. Whether you're looking for daily essentials or a relaxing night out, everything you need is within easy reach. Come home to Algonquin Meadows - where natural beauty, community charm, and modern convenience meet.
| DAYS ON MARKET | 109 | LAST UPDATED | 9/22/2025 |
|---|---|---|---|
| TRACT | Algonquin Meadows | YEAR BUILT | 2025 |
| COMMUNITY | Algonquin | GARAGE SPACES | 3.0 |
| COUNTY | Kane | STATUS | Conditional |
| PROPERTY TYPE(S) | Single Family |
| School District | H D Jacobs High School |
|---|---|
| Elementary School | Westfield Community School |
| Jr. High School | Westfield Community School |
| High School | H D Jacobs High School |
| PRICE HISTORY | |
| Prior to Sep 9, '25 | $593,140 |
|---|---|
| Sep 9, '25 - Today | $595,490 |
| ADDITIONAL DETAILS | |
| AIR | Central Air |
|---|---|
| AIR CONDITIONING | Yes |
| APPLIANCES | Dishwasher, Disposal, Microwave, Range, Stainless Steel Appliance(s) |
| AREA | Algonquin |
| BASEMENT | Full, Unfinished, Yes |
| CONSTRUCTION | Stone, Vinyl Siding |
| GARAGE | Attached Garage, Yes |
| HEAT | Forced Air, Natural Gas |
| INTERIOR | Entrance Foyer |
| LOT | 0 |
| LOT DIMENSIONS | 9100 |
| PARKING | Asphalt, Garage Door Opener, Attached, Garage |
| SEWER | Public Sewer |
| SUBDIVISION | Algonquin Meadows |
| WATER | Public |
MORTGAGE CALCULATOR
TOTAL MONTHLY PAYMENT
0
P
I
*Estimate only
| SATELLITE VIEW |
| / | |
We respect your online privacy and will never spam you. By submitting this form with your telephone number
you are consenting for Humderto
Garcia to contact you even if your name is on a Federal or State
"Do not call List".
Listed with HomeSmart Connect LLC
The data relating to real estate for sale on this web site comes in part from the Broker ReciprocitySM Program of MRED. All real estate listings are marked with the Broker ReciprocitySM logo or the MRED Broker ReciprocitySM thumbnail logo (a little black house) and detailed information about them includes the name of the listing brokers.
The broker providing these data believes them to be correct, but advises interested parties to confirm them before relying on them in a purchase decision.
Copyright 2025 MRED. All rights reserved.

The broker providing these data believes them to be correct, but advises interested parties to confirm them before relying on them in a purchase decision.
Copyright 2025 MRED. All rights reserved.
This IDX solution is (c) Diverse Solutions 2025.