|
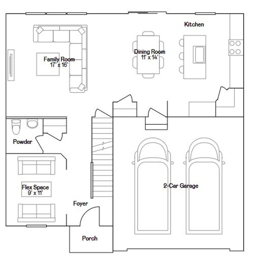
SPECIAL FINANCING OFFERS AVAILABLE!! READY FOR JANUARY DELIVERY!!!! Homesite# 0032 Unveil the Starling, an expertly constructed home where exceptional design blends effortlessly with everyday comfort. This airy design offers four bedrooms, two bathrooms, a powder room, and a versatile flex room, perfect for adapting to your lifestyle. Not to mention this home features an exceptional pond view that can be seen right outside your window! Luxury vinyl plank flooring flows throughout the main living space, creating a warm and inviting atmosphere in the open-concept family room, dining area, and kitchen. The chef-inspired kitchen features stainless steel appliances, sleek 42" cabinetry, elegant quartz countertops, and a large island that serves as both a focal point and a functional workspace. A built-in pantry adds extra convenience and storage. The owner's suite, situated on the upper level, is an oasis with a generous walk-in closet and a spa-like en-suite bathroom. The bathroom includes double sinks and a deluxe shower, creating a luxurious space for relaxation. Three additional bedrooms share a full bathroom, and the convenience of a second-floor laundry room makes everyday tasks easier. The first floor features a flexible space that can be customized to fit your needs-whether it's a home office, dining room, or entertainment area, the possibilities are endless. Additionally, a standard two-car garage provides ample parking and storage. Exterior will be Greystone color vinyl siding with Coopers Mill color brick. (pic for reference ONLY) *Photos are not this actual home* Welcome to Hudson Pointe II, a beautifully designed master-planned community offering brand-new homes in the heart of Oswego, Illinois. Perfectly blending comfort, convenience, and natural beauty, this neighborhood is ideal for families and individuals seeking a balanced lifestyle. Right within the community, residents can enjoy a well-maintained park for leisurely play and gatherings, as well as a serene pond that enhances the peaceful atmosphere of Hudson Pointe II. Just 10 minutes from the Naperville Route 59 corridor, Hudson Pointe II places premier shopping, dining, and entertainment within easy reach. Access top destinations like Whole Foods, Amazon Fresh Market, LA Fitness, and Costco, along with a variety of local restaurants and entertainment spots. Families will appreciate the top-rated Oswego School District 308, with students attending Southbury Elementary, Murphy Junior High, and Oswego East High School-all conveniently located within a 10-minute drive. Outdoor enthusiasts will love the close proximity to Wolf's Crossing Community Park, offering an array of recreational features including playgrounds, an outdoor fitness area, a splash pad, and more-perfect for year-round family fun. At Hudson Pointe II, you're not just buying a home-you're joining a thoughtfully planned community where modern living meets natural charm and everyday convenience.
| DAYS ON MARKET | 218 | LAST UPDATED | 3/24/2026 |
|---|---|---|---|
| TRACT | Hudson Pointe II | YEAR BUILT | 2025 |
| COMMUNITY | Oswego | GARAGE SPACES | 2.0 |
| COUNTY | Kendall | STATUS | Conditional |
| PROPERTY TYPE(S) | Single Family |
| School District | Oswego East High School |
|---|---|
| Elementary School | Southbury Elementary School |
| Jr. High School | Murphy Junior High School |
| High School | Oswego East High School |
| PRICE HISTORY | |
| Prior to Sep 9, '25 | $544,690 |
|---|---|
| Sep 9, '25 - Oct 29, '25 | $541,390 |
| Oct 29, '25 - Dec 11, '25 | $547,690 |
| Dec 11, '25 - Dec 19, '25 | $539,840 |
| Dec 19, '25 - Jan 2, '26 | $531,890 |
| Jan 2, '26 - Jan 20, '26 | $536,890 |
| Jan 20, '26 - Jan 30, '26 | $529,440 |
| Jan 30, '26 - Mar 11, '26 | $508,440 |
| Mar 11, '26 - Today | $489,990 |
| ADDITIONAL DETAILS | |
| AIR | Central Air |
|---|---|
| AIR CONDITIONING | Yes |
| APPLIANCES | Dishwasher, Disposal, Microwave, Range, Stainless Steel Appliance(s) |
| AREA | Oswego |
| BASEMENT | Full, Unfinished, Yes |
| CONSTRUCTION | Brick, Vinyl Siding |
| GARAGE | Attached Garage, Yes |
| HEAT | Forced Air, Natural Gas |
| HOA DUES | 480 |
| LOT | 0 |
| LOT DIMENSIONS | 8253 |
| PARKING | Asphalt, Garage Door Opener, Attached, Garage |
| SEWER | Public Sewer |
| SUBDIVISION | Hudson Pointe II |
| WATER | Public |
MORTGAGE CALCULATOR
TOTAL MONTHLY PAYMENT
0
P
I
*Estimate only
| SATELLITE VIEW |
| / | |
We respect your online privacy and will never spam you. By submitting this form with your telephone number
you are consenting for Humderto
Garcia to contact you even if your name is on a Federal or State
"Do not call List".
Listed with HomeSmart Connect LLC
The data relating to real estate for sale on this web site comes in part from the Broker ReciprocitySM Program of MRED. All real estate listings are marked with the Broker ReciprocitySM logo or the MRED Broker ReciprocitySM thumbnail logo (a little black house) and detailed information about them includes the name of the listing brokers.
The broker providing these data believes them to be correct, but advises interested parties to confirm them before relying on them in a purchase decision.
Copyright 2026 MRED. All rights reserved.

The broker providing these data believes them to be correct, but advises interested parties to confirm them before relying on them in a purchase decision.
Copyright 2026 MRED. All rights reserved.
This IDX solution is (c) Diverse Solutions 2026.