|
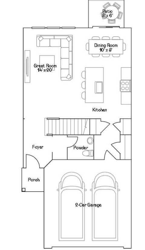
SPECIAL FINANCING OFFERS AVAILABLE!! READY FOR NOVEMBER DELIVERY!!!! Homesite# 1562 Introducing the Marianne, a newly designed two-story duplex that seamlessly blends comfort and elegance. This model offers three spacious bedrooms, two full baths, a half bath, complete with a two-car garage for added convenience. The first floor features the great room, the focal point of the home, effortlessly flowing into the dining area and the open kitchen. The kitchen boasts a magnificent island with a breakfast bar, 42" cabinets, polished quartz countertops, and stainless steel appliances. Luxury vinyl plank flooring spans the main floor. On the second floor, you'll find two generously sized secondary bedrooms, along with the exquisite owner's suite-a true sanctuary to unwind after a busy day. This serene retreat includes a generous walk-in closet and a spa-inspired bath for the ultimate relaxation experience. Complete with a convenient upstairs laundry room, the Marianne combines thoughtful design and modern amenities, offering both comfort and style in every corner. *Photos are not this actual home* Welcome to Hudson Pointe II, a beautifully designed master-planned community offering brand-new homes in the heart of Oswego, Illinois. Perfectly blending comfort, convenience, and natural beauty, this neighborhood is ideal for families and individuals seeking a balanced lifestyle. Right within the community, residents can enjoy a well-maintained park for leisurely play and gatherings, as well as a serene pond that enhances the peaceful atmosphere of Hudson Pointe II. Just 10 minutes from the Naperville Route 59 corridor, Hudson Pointe II places premier shopping, dining, and entertainment within easy reach. Access top destinations like Whole Foods, Amazon Fresh Market, LA Fitness, and Costco, along with a variety of local restaurants and entertainment spots. Families will appreciate the top-rated Oswego School District 308, with students attending Southbury Elementary, Murphy Junior High, and Oswego East High School-all conveniently located within a 10-minute drive. Outdoor enthusiasts will love the close proximity to Wolf's Crossing Community Park, offering an array of recreational features including playgrounds, an outdoor fitness area, a splash pad, and more-perfect for year-round family fun. At Hudson Pointe II, you're not just buying a home-you're joining a thoughtfully planned community where modern living meets natural charm and everyday convenience.
| DAYS ON MARKET | 54 | LAST UPDATED | 10/7/2025 |
|---|---|---|---|
| TRACT | Hudson Pointe II | YEAR BUILT | 2025 |
| COMMUNITY | Oswego | GARAGE SPACES | 2.0 |
| COUNTY | Kendall | STATUS | Conditional |
| PROPERTY TYPE(S) | Condo/Townhouse/Co-Op |
| School District | Oswego East High School |
|---|---|
| Elementary School | Southbury Elementary School |
| Jr. High School | Murphy Junior High School |
| High School | Oswego East High School |
| PRICE HISTORY | |
| Prior to Sep 16, '25 | $397,090 |
|---|---|
| Sep 16, '25 - Sep 30, '25 | $401,790 |
| Sep 30, '25 - Today | $398,990 |
| ADDITIONAL DETAILS | |
| AIR | Central Air |
|---|---|
| AIR CONDITIONING | Yes |
| APPLIANCES | Dishwasher, Disposal, Microwave, Range, Stainless Steel Appliance(s) |
| AREA | Oswego |
| BASEMENT | None |
| CONSTRUCTION | Brick, Vinyl Siding |
| GARAGE | Yes |
| HEAT | Forced Air, Natural Gas |
| HOA DUES | 180 |
| LOT | 0 |
| LOT DIMENSIONS | 0 |
| PARKING | Asphalt, Garage Door Opener, On Site, Attached, Garage |
| SEWER | Public Sewer |
| STORIES | 2 |
| SUBDIVISION | Hudson Pointe II |
| WATER | Public |
MORTGAGE CALCULATOR
TOTAL MONTHLY PAYMENT
0
P
I
*Estimate only
| SATELLITE VIEW |
| / | |
We respect your online privacy and will never spam you. By submitting this form with your telephone number
you are consenting for Humderto
Garcia to contact you even if your name is on a Federal or State
"Do not call List".
Listed with HomeSmart Connect LLC
The data relating to real estate for sale on this web site comes in part from the Broker ReciprocitySM Program of MRED. All real estate listings are marked with the Broker ReciprocitySM logo or the MRED Broker ReciprocitySM thumbnail logo (a little black house) and detailed information about them includes the name of the listing brokers.
The broker providing these data believes them to be correct, but advises interested parties to confirm them before relying on them in a purchase decision.
Copyright 2025 MRED. All rights reserved.

The broker providing these data believes them to be correct, but advises interested parties to confirm them before relying on them in a purchase decision.
Copyright 2025 MRED. All rights reserved.
This IDX solution is (c) Diverse Solutions 2025.