|
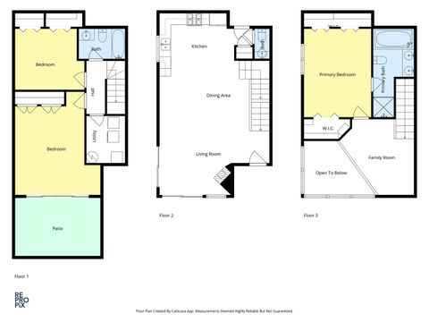
Three-Level Corner Condo with Private Entry. Just four blocks from the Blue Line in Logan Square/West Bucktown, this rare tri-plex lives like a single-family home with incredible natural light and thoughtful design throughout. Floor-to-ceiling, two-story windows illuminate the open living areas, highlighting hardwood floors and modern finishes. The flexible layout offers 3 bedrooms plus a den and 2.5 baths, with a bath on each level for convenience. The professionally designed kitchen features a large island, while spa-like baths, custom closets, and custom window treatments add style and function. Two private outdoor spaces-front and back-extend the living experience and are perfect for entertaining or relaxing. One garage parking space completes this one-of-a-kind home.
| DAYS ON MARKET | 84 | LAST UPDATED | 10/10/2025 |
|---|---|---|---|
| YEAR BUILT | 2005 | COMMUNITY | CHI - West Town |
| GARAGE SPACES | 1.0 | COUNTY | Cook |
| STATUS | Conditional | PROPERTY TYPE(S) | Condo/Townhouse/Co-Op |
| ADDITIONAL DETAILS | |
| AIR | Central Air |
|---|---|
| AIR CONDITIONING | Yes |
| AMENITIES | Insurance, Water |
| APPLIANCES | Dishwasher, Dryer, Microwave, Range, Refrigerator, Washer |
| AREA | CHI - West Town |
| BASEMENT | None |
| CONSTRUCTION | Brick |
| FIREPLACE | Yes |
| GARAGE | Yes |
| HEAT | Forced Air, Natural Gas |
| HOA DUES | 200 |
| INTERIOR | Cathedral Ceiling(s) |
| LOT | 0 |
| LOT DIMENSIONS | Common |
| PARKING | Concrete, On Site, Detached, Garage |
| SEWER | Public Sewer |
| STORIES | 4 |
| TAXES | 7736 |
MORTGAGE CALCULATOR
TOTAL MONTHLY PAYMENT
0
P
I
*Estimate only
| SATELLITE VIEW |
| / | |
We respect your online privacy and will never spam you. By submitting this form with your telephone number
you are consenting for Humderto
Garcia to contact you even if your name is on a Federal or State
"Do not call List".
Listed with DCG Realty
The data relating to real estate for sale on this web site comes in part from the Broker ReciprocitySM Program of MRED. All real estate listings are marked with the Broker ReciprocitySM logo or the MRED Broker ReciprocitySM thumbnail logo (a little black house) and detailed information about them includes the name of the listing brokers.
The broker providing these data believes them to be correct, but advises interested parties to confirm them before relying on them in a purchase decision.
Copyright 2025 MRED. All rights reserved.

The broker providing these data believes them to be correct, but advises interested parties to confirm them before relying on them in a purchase decision.
Copyright 2025 MRED. All rights reserved.
This IDX solution is (c) Diverse Solutions 2025.