|
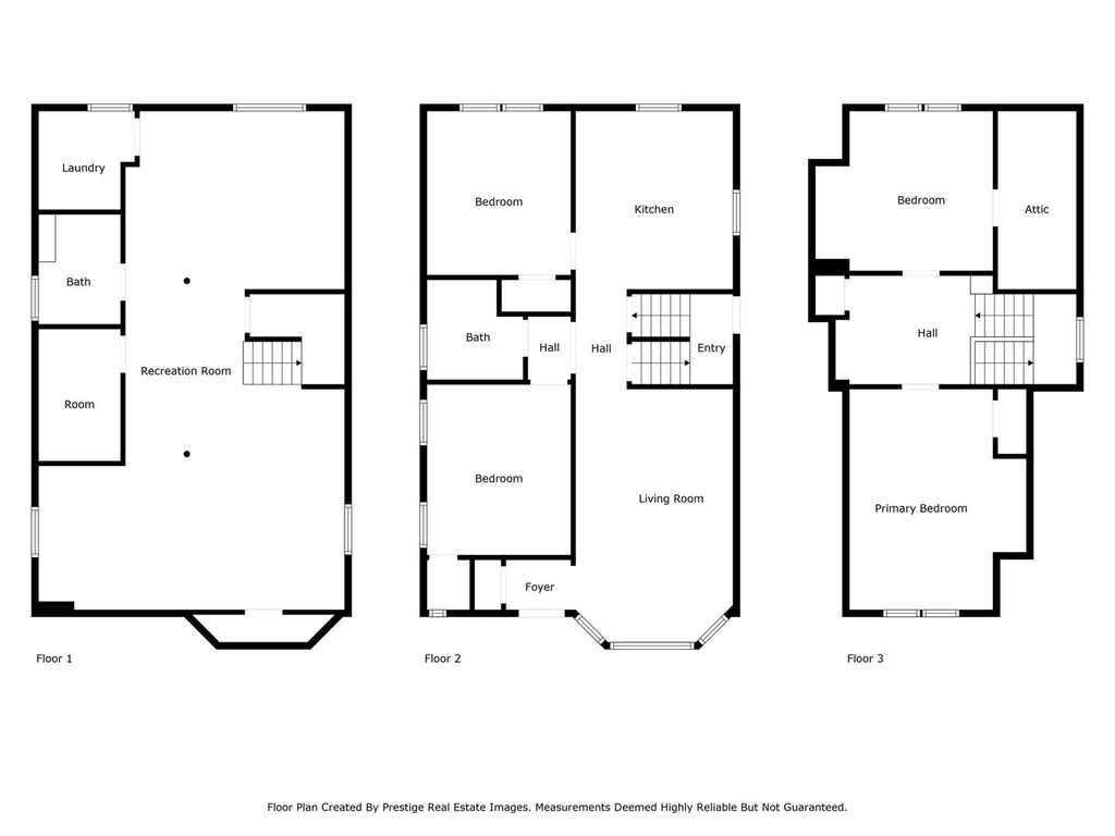
The builder took this home down to the studs and fully renovated every single inch of this home adding two new bedrooms and a second bathroom, porcelain tile in both bathrooms, kitchen is brandnew stainless steel appliances -- refrigerator, stove, microwave dishwasher. hardwood floor on 1st floor and staircase, carpet on 2nd floor, engineered flooring in basement, laundry room in basement, built a new detached 2 car garage and also an added feature there is a sidelot with many options for the buyer whether they add a driveway for added parking, pool or a garden -- whatever suits the future homeowner's idea of their home and lifestyle. Agent interest.
| DAYS ON MARKET | 76 | LAST UPDATED | 11/20/2025 |
|---|---|---|---|
| YEAR BUILT | 1954 | COMMUNITY | CHI - Ashburn |
| GARAGE SPACES | 2.0 | COUNTY | Cook |
| STATUS | Active | PROPERTY TYPE(S) | Single Family |
| School District | Bogan High School |
|---|---|
| Elementary School | Carroll Elementary School |
| Jr. High School | Carroll Elementary School |
| High School | Bogan High School |
| PRICE HISTORY | |
| Prior to Nov 20, '25 | $369,000 |
|---|---|
| Nov 20, '25 - Today | $366,000 |
| ADDITIONAL DETAILS | |
| AIR | Ceiling Fan(s), Central Air |
|---|---|
| AIR CONDITIONING | Yes |
| APPLIANCES | Dishwasher, Disposal, Dryer, Microwave, Stainless Steel Appliance(s), Washer |
| AREA | CHI - Ashburn |
| BASEMENT | Finished, Full, Yes |
| CONSTRUCTION | Brick |
| GARAGE | Yes |
| HEAT | Natural Gas |
| LOT | 0 |
| LOT DIMENSIONS | 5450 |
| PARKING | Garage Door Opener, Detached, Garage |
| SEWER | Public Sewer |
| STYLE | Bungalow, Tudor |
| TAXES | 3334 |
MORTGAGE CALCULATOR
TOTAL MONTHLY PAYMENT
0
P
I
*Estimate only
| SATELLITE VIEW |
| / | |
We respect your online privacy and will never spam you. By submitting this form with your telephone number
you are consenting for Humderto
Garcia to contact you even if your name is on a Federal or State
"Do not call List".
Listed with Kale Realty
The data relating to real estate for sale on this web site comes in part from the Broker ReciprocitySM Program of MRED. All real estate listings are marked with the Broker ReciprocitySM logo or the MRED Broker ReciprocitySM thumbnail logo (a little black house) and detailed information about them includes the name of the listing brokers.
The broker providing these data believes them to be correct, but advises interested parties to confirm them before relying on them in a purchase decision.
Copyright 2025 MRED. All rights reserved.

The broker providing these data believes them to be correct, but advises interested parties to confirm them before relying on them in a purchase decision.
Copyright 2025 MRED. All rights reserved.
This IDX solution is (c) Diverse Solutions 2025.