|
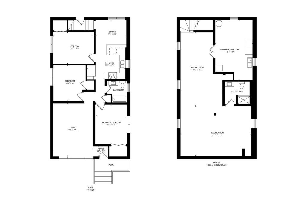
Stunning and impeccably maintained, this beautifully updated home perfectly blends timeless charm with modern upgrades. Featuring 3 spacious bedrooms, 2 full baths, and a fully finished basement, this residence has been thoughtfully enhanced from top to bottom and is truly move-in ready. Recent and notable upgrades include:2025: New ceiling fans throughout, epoxy-coated garage floor, Ring doorbell (stays), updated main bath with Kohler fixtures, new toilet, vanity, and flooring. 2024: New garage siding and gutters, new downspouts, exterior lighting on timers. 2023: New concrete front stoop. 2021: All windows replaced. 2020: Sump pump and ejector pit replaced. 2019: Nest thermostat (stays with property). 2016 Full Renovation: Converted to central HVAC with new A/C, new roof, new front door and storm door, custom blinds, entire first floor refinished with hardwood, freshly painted throughout, new electrical panel, new garage door, kitchen remodel with granite countertops and stainless steel appliances, finished basement with recessed lighting, full bath and luxury plank vinyl flooring, washer and dryer included. Additional features include heated basement floor hook-up (as-is), spacious closets in all bedrooms. Modern finishes are paired with classic details, creating a warm and inviting atmosphere. Fantastic curb appeal, quality craftsmanship, and a long list of upgrades make this home a true standout.
DAYS ON MARKET | 11 | LAST UPDATED | 9/30/2025 |
---|---|---|---|
YEAR BUILT | 1963 | COMMUNITY | Stickney |
GARAGE SPACES | 2.0 | COUNTY | Cook |
STATUS | Active | PROPERTY TYPE(S) | Single Family |
ADDITIONAL DETAILS | |
AIR | Ceiling Fan(s), Central Air |
---|---|
AIR CONDITIONING | Yes |
APPLIANCES | Dishwasher, Dryer, Microwave, Range, Refrigerator, Washer |
AREA | Stickney |
BASEMENT | Finished, Full, Sump Pump, Yes |
CONSTRUCTION | Brick, Vinyl Siding |
GARAGE | Yes |
HEAT | Natural Gas |
LOT | 3877 sq ft |
LOT DIMENSIONS | 33x117 |
PARKING | Garage Door Opener, On Site, Detached, Garage |
SEWER | Public Sewer |
TAXES | 6896 |
MORTGAGE CALCULATOR
TOTAL MONTHLY PAYMENT
0
P
I
*Estimate only
SATELLITE VIEW |
/ | |
We respect your online privacy and will never spam you. By submitting this form with your telephone number
you are consenting for Humderto
Garcia to contact you even if your name is on a Federal or State
"Do not call List".
Listed with @properties Christie's International Real Estate
The data relating to real estate for sale on this web site comes in part from the Broker ReciprocitySM Program of MRED. All real estate listings are marked with the Broker ReciprocitySM logo or the MRED Broker ReciprocitySM thumbnail logo (a little black house) and detailed information about them includes the name of the listing brokers.
The broker providing these data believes them to be correct, but advises interested parties to confirm them before relying on them in a purchase decision.
Copyright 2025 MRED. All rights reserved.

The broker providing these data believes them to be correct, but advises interested parties to confirm them before relying on them in a purchase decision.
Copyright 2025 MRED. All rights reserved.

This IDX solution is (c) Diverse Solutions 2025.