|
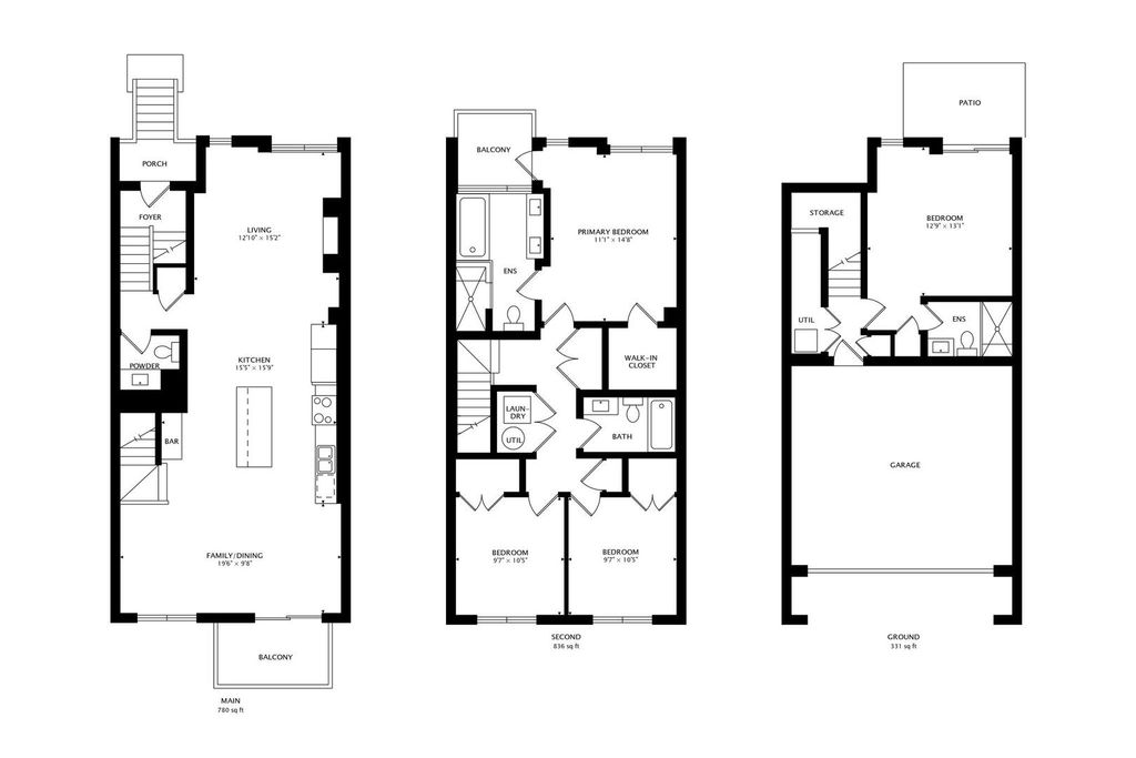
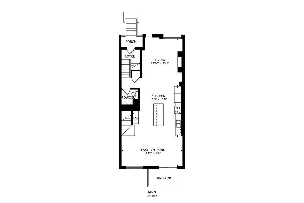
Beautifully cared-for, fee-simple, all-brick 4-bedroom, 3.1-bath townhome tucked away in a peaceful riverfront community surrounded by mature trees and lush greenery. Spanning nearly 2,500 sq. ft., this bright residence lives like a single-family home while offering the ease of a 2-car attached garage and three private outdoor spaces. The main level showcases an inviting open layout with hardwood floors, a warm fireplace, and a chef's kitchen featuring quartz countertops, stainless steel appliances, a center island with seating, abundant cabinetry, and a stylish built-in buffet perfect for a coffee or wine bar. A designated dining area, living room, play area, powder room and balcony off dining room complete this floor. Upstairs, you'll find three spacious bedrooms, two full bathrooms, and a washer and dryer. The primary suite is a true retreat with dramatic floor-to-ceiling windows, a walk-in closet, and its own balcony. The spa-like ensuite bath is complete with heated floors, dual vanities, a steam shower, and a soaking tub. The lower level adds flexibility with a 4th bedroom/office/gym, a full bathroom with direct access to a private patio. Ideally located where Lincoln Park meets Lakeview, this quiet community provides effortless access to Roscoe Village, Bucktown, Logan Square, Hamlin Park, Midtown Athletic Club, Fresh Thyme, Binny's, Hexe Coffee, expressways, and more.
DAYS ON MARKET | 28 | LAST UPDATED | 9/16/2025 |
---|---|---|---|
YEAR BUILT | 2014 | COMMUNITY | CHI - Logan Square |
GARAGE SPACES | 2.0 | COUNTY | Cook |
STATUS | Conditional | PROPERTY TYPE(S) | Condo/Townhouse/Co-Op |
ADDITIONAL DETAILS | |
AIR | Central Air |
---|---|
AIR CONDITIONING | Yes |
AMENITIES | Insurance, Snow Removal, Water |
APPLIANCES | Dishwasher, Disposal, Dryer, Microwave, Range, Refrigerator, Washer |
AREA | CHI - Logan Square |
BASEMENT | None |
CONSTRUCTION | Brick |
EXTERIOR | Balcony |
FIREPLACE | Yes |
GARAGE | Yes |
HEAT | Forced Air, Natural Gas, Radiant Floor |
HOA DUES | 255 |
INTERIOR | Storage, Walk-In Closet(s) |
LOT | 0 |
LOT DIMENSIONS | 100X50 |
PARKING | Garage Door Opener, On Site, Attached, Garage |
SEWER | Public Sewer |
STORIES | 3 |
TAXES | 13728 |
WATERFRONT | Yes |
MORTGAGE CALCULATOR
TOTAL MONTHLY PAYMENT
0
P
I
*Estimate only
SATELLITE VIEW |
/ | |
We respect your online privacy and will never spam you. By submitting this form with your telephone number
you are consenting for Humderto
Garcia to contact you even if your name is on a Federal or State
"Do not call List".
Listed with @properties Christie's International Real Estate
The data relating to real estate for sale on this web site comes in part from the Broker ReciprocitySM Program of MRED. All real estate listings are marked with the Broker ReciprocitySM logo or the MRED Broker ReciprocitySM thumbnail logo (a little black house) and detailed information about them includes the name of the listing brokers.
The broker providing these data believes them to be correct, but advises interested parties to confirm them before relying on them in a purchase decision.
Copyright 2025 MRED. All rights reserved.

The broker providing these data believes them to be correct, but advises interested parties to confirm them before relying on them in a purchase decision.
Copyright 2025 MRED. All rights reserved.

This IDX solution is (c) Diverse Solutions 2025.