|
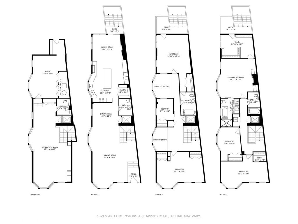
Behind a classic Chicago facade, this contemporary four-level home in East Lakeview offers spacious living and thoughtful updates throughout. Renovated in 2020, this home includes all new mechanicals, windows, designer lighting, and an elevator that connects every level, from the finished basement to the 3rd level. The main level features a large living and dining area that flows into an open family room and a newer chef's kitchen (2020) with custom cabinetry, premium appliances, a professional-grade hood, a pantry, and a striking marble island. Ceiling heights in the kitchen reach nearly 20 feet, adding to the sense of space. With six spacious above-grade bedrooms, this home offers tremendous flexibility to accommodate a variety of needs-whether you're looking for extra space for guests, multiple home offices, a yoga room, hobby space, or simply room to grow. The primary suite includes a walk-in closet, access to a private deck, and a luxurious full bath. The finished lower level has high ceilings and flexible space for a rec room, gym, or home theater. Other features include zoned HVAC and custom closets. Outside, enjoy an oversized, fully fenced backyard -- an uncommon find in the city -- ideal for entertaining, gardening, or play. Multiple decks provide additional outdoor living options. There is also parking for up to four cars. Located just half a block from Lake Shore Drive and Belmont Harbor, this home benefits from RM6 zoning, offering strong future development potential in one of Chicago's most desirable neighborhoods. Enjoy easy access to public transportation, including express buses to downtown, the lakefront path, Belmont Harbor, and vibrant shopping and dining along Broadway.
DAYS ON MARKET | 26 | LAST UPDATED | 9/12/2025 |
---|---|---|---|
YEAR BUILT | 1907 | COMMUNITY | CHI - Lake View |
COUNTY | Cook | STATUS | Active |
PROPERTY TYPE(S) | Single Family |
School District | Lake View High School |
---|---|
Elementary School | Nettelhorst Elementary School |
Jr. High School | Nettelhorst Elementary School |
High School | Lake View High School |
ADDITIONAL DETAILS | |
AIR | Central Air, Zoned |
---|---|
AIR CONDITIONING | Yes |
APPLIANCES | Bar Fridge, Cooktop, Dishwasher, Double Oven, Dryer, Humidifier, Microwave, Oven, Range, Range Hood, Stainless Steel Appliance(s), Washer, Wine Refrigerator |
AREA | CHI - Lake View |
BASEMENT | Exterior Entry, Finished, Full, Storage Space, Sump Pump, Yes |
CONSTRUCTION | Brick |
EXTERIOR | Lighting |
FIREPLACE | Yes |
HEAT | Forced Air, Natural Gas, Radiant Floor, Zoned |
INTERIOR | Built-in Features, Elevator, Walk-In Closet(s) |
LOT | 0 |
LOT DIMENSIONS | 3818 |
PARKING | Concrete, Driveway, Oversized, On Site |
SEWER | Public Sewer |
TAXES | 37422 |
UTILITIES | Cable Available |
WATER | Public |
MORTGAGE CALCULATOR
TOTAL MONTHLY PAYMENT
0
P
I
*Estimate only
SATELLITE VIEW |
/ | |
We respect your online privacy and will never spam you. By submitting this form with your telephone number
you are consenting for Humderto
Garcia to contact you even if your name is on a Federal or State
"Do not call List".
Listed with Engel & Voelkers Chicago
The data relating to real estate for sale on this web site comes in part from the Broker ReciprocitySM Program of MRED. All real estate listings are marked with the Broker ReciprocitySM logo or the MRED Broker ReciprocitySM thumbnail logo (a little black house) and detailed information about them includes the name of the listing brokers.
The broker providing these data believes them to be correct, but advises interested parties to confirm them before relying on them in a purchase decision.
Copyright 2025 MRED. All rights reserved.

The broker providing these data believes them to be correct, but advises interested parties to confirm them before relying on them in a purchase decision.
Copyright 2025 MRED. All rights reserved.

This IDX solution is (c) Diverse Solutions 2025.