|
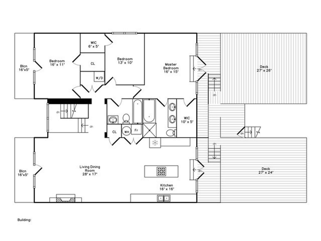
Welcome to the ultimate in city living with this extra-wide, full-floor penthouse, perfectly situated on one of Bucktown's most coveted and quiet streets. With four private outdoor spaces, this residence offers a rare blend of timeless craftsmanship and modern convenience. Inside, soaring 11-foot ceilings highlight intricate crown molding, coffered ceilings, custom millwork, and solid-core doors. Integrated speakers inside and out, premium Hunter Douglas window treatments, and professionally designed closets elevate everyday comfort. A full-size laundry room provides functionality seldom found in city condos. The chef's kitchen is a true showpiece, featuring honed Carrara marble countertops, an oversized island, and top-of-the-line appliances including a 42" Sub-Zero refrigerator, 36" Wolf gas cooktop, dual ovens, and a 24" Marvel wine fridge. Perfectly positioned between the living and dining spaces, it's ideal for casual weeknights or large-scale entertaining. Smart-home upgrades such as a Nest thermostat/protect system and Lutron lighting controls bring modern efficiency and ease. Be the envy of your neighbors and step outside to your expansive private roof deck-a one-of-a-kind retreat designed for entertaining and relaxation. Complete with a trex decking, pergola, fire pit, putting green, dog run, custom lighting, and automated irrigation, it's the perfect backdrop for summer gatherings or quiet evenings under the skyline. The spacious primary suite features a tray LED lighting, custom walk-in closet and spa-inspired bath with dual vanities, a glass-enclosed steam/rain shower, jetted soaking tub, and heated floors. Two additional bedrooms provide flexibility for guests, a gym, or a home office, each filled with natural light and abundant storage. Additional highlights include heated garage parking, basement storage, newer mechanicals, and in-unit washer/dryer. With unmatched outdoor space, a rare full-floor layout, luxury finishes, and smart-home features, this home delivers an extraordinary living experience in the heart of Bucktown/Wicker Park-just a short distance from the 606 Trail, award-winning dining, and boutique shopping.
| DAYS ON MARKET | 84 | LAST UPDATED | 9/15/2025 |
|---|---|---|---|
| YEAR BUILT | 2012 | COMMUNITY | CHI - West Town |
| GARAGE SPACES | 1.0 | COUNTY | Cook |
| STATUS | Conditional | PROPERTY TYPE(S) | Condo/Townhouse/Co-Op |
| ADDITIONAL DETAILS | |
| AIR | Ceiling Fan(s), Central Air, Electric |
|---|---|
| AIR CONDITIONING | Yes |
| AMENITIES | Insurance, Snow Removal, Water |
| APPLIANCES | Dishwasher, Disposal, Double Oven, Dryer, Humidifier, Microwave, Range, Stainless Steel Appliance(s), Washer |
| AREA | CHI - West Town |
| BASEMENT | None |
| CONSTRUCTION | Brick |
| EXTERIOR | Dog Run, Lighting |
| FIREPLACE | Yes |
| GARAGE | Yes |
| HEAT | Electric, Forced Air, Natural Gas, Radiant, Radiant Floor |
| HOA DUES | 292 |
| INTERIOR | Beamed Ceilings, Built-in Features, Coffered Ceiling(s), Dry Bar, High Ceilings, Open Floorplan, Pantry, Storage, Walk-In Closet(s) |
| LOT | 0 |
| LOT DESCRIPTION | Level |
| LOT DIMENSIONS | Condo |
| PARKING | Asphalt, Garage Door Opener, Heated Garage, On Site, Attached, Garage |
| SEWER | Public Sewer |
| STORIES | 3 |
| TAXES | 16223 |
| UTILITIES | Cable Available |
| WATER | Public |
MORTGAGE CALCULATOR
TOTAL MONTHLY PAYMENT
0
P
I
*Estimate only
| SATELLITE VIEW |
| / | |
We respect your online privacy and will never spam you. By submitting this form with your telephone number
you are consenting for Humderto
Garcia to contact you even if your name is on a Federal or State
"Do not call List".
Listed with Cheryl Johnson
The data relating to real estate for sale on this web site comes in part from the Broker ReciprocitySM Program of MRED. All real estate listings are marked with the Broker ReciprocitySM logo or the MRED Broker ReciprocitySM thumbnail logo (a little black house) and detailed information about them includes the name of the listing brokers.
The broker providing these data believes them to be correct, but advises interested parties to confirm them before relying on them in a purchase decision.
Copyright 2025 MRED. All rights reserved.

The broker providing these data believes them to be correct, but advises interested parties to confirm them before relying on them in a purchase decision.
Copyright 2025 MRED. All rights reserved.
This IDX solution is (c) Diverse Solutions 2025.