|
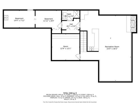
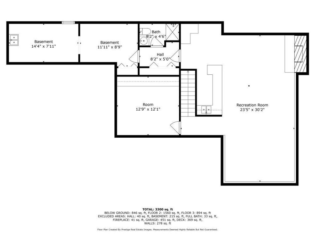
Beautiful Home near everything that you could possibly want. 4BR, 3BA, two story home in a desirable East Rockford neighborhood! Features a finished basement, and a huge, fenced yard. Move in Ready with new roof (2023) Beautiful breathtaking empty land in back of this home. Open galley kitchen and spacious sundrenched living room with a charming fireplace, perfect for chilly evenings. Stainless steel appliances and a breakfast nook. The large main bedroom suite provides a private retreat with a full ensuite bathroom. the finished basement adds a significant living space, including rec room with second fireplace an office area and a full third bathroom and ideal for a home gym or guest quarters. Do not let this one pass you by!
DAYS ON MARKET | 1 | LAST UPDATED | 10/4/2025 |
---|---|---|---|
YEAR BUILT | 0 | COMMUNITY | Rockford |
GARAGE SPACES | 2.0 | COUNTY | Winnebago |
STATUS | Active | PROPERTY TYPE(S) | Single Family |
ADDITIONAL DETAILS | |
AIR | Central Air |
---|---|
AIR CONDITIONING | Yes |
AREA | Rockford |
BASEMENT | Finished, Full, Yes |
CONSTRUCTION | Vinyl Siding |
FIREPLACE | Yes |
GARAGE | Yes |
HEAT | Natural Gas |
LOT | 0 |
LOT DIMENSIONS | 90x140x90x140 |
PARKING | Concrete, Garage Door Opener, On Site, Attached, Garage |
SEWER | Public Sewer |
TAXES | 6704 |
WATER | Public |
MORTGAGE CALCULATOR
TOTAL MONTHLY PAYMENT
0
P
I
*Estimate only
SATELLITE VIEW |
/ | |
We respect your online privacy and will never spam you. By submitting this form with your telephone number
you are consenting for Humderto
Garcia to contact you even if your name is on a Federal or State
"Do not call List".
Listed with Habloft LLC
The data relating to real estate for sale on this web site comes in part from the Broker ReciprocitySM Program of MRED. All real estate listings are marked with the Broker ReciprocitySM logo or the MRED Broker ReciprocitySM thumbnail logo (a little black house) and detailed information about them includes the name of the listing brokers.
The broker providing these data believes them to be correct, but advises interested parties to confirm them before relying on them in a purchase decision.
Copyright 2025 MRED. All rights reserved.

The broker providing these data believes them to be correct, but advises interested parties to confirm them before relying on them in a purchase decision.
Copyright 2025 MRED. All rights reserved.

This IDX solution is (c) Diverse Solutions 2025.