|
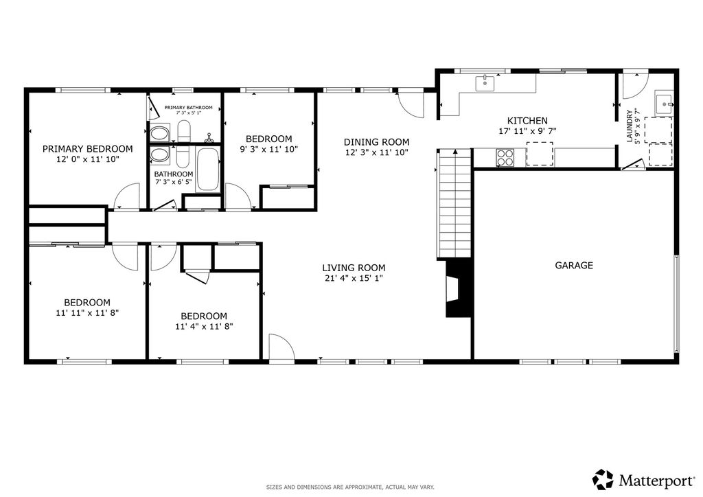
Charming Updated Ranch with Pool & Prime Location! Welcome to this beautifully updated 4-bedroom, 3-bathroom ranch nestled on nearly half an acre in the heart of Batavia! Located in the highly sought-after Batavia School District, this home offers space, comfort, and convenience just minutes from downtown, shopping, dining, entertainment, and the scenic Fox River. Inside, you'll find thoughtful upgrades throughout, including fresh interior and exterior painting (2023), a brand-new roof (2023), new furnace and A/C (2023), weatherproof doors, and spray foam insulation in the attic. The crawl space has been fully wrapped, adding energy efficiency and peace of mind. The updated kitchen features new cabinets, modern flooring, and stainless steel appliances-ready for both everyday living and entertaining. Stylish new light fixtures brighten every room, and the spacious basement is prepped and ready for your personal finishing touches. Step outside to enjoy a fully fenced yard, an above-ground swimming pool (new liner in 2024) for summer fun, and a handy storage shed. Whether you're relaxing with family or hosting friends, this backyard is your private retreat. Move-in ready and full of potential, this home is waiting for its next chapter-could it be yours?
| DAYS ON MARKET | 27 | LAST UPDATED | 9/11/2025 |
|---|---|---|---|
| TRACT | Woodland Hills | YEAR BUILT | 1964 |
| COMMUNITY | Batavia | GARAGE SPACES | 2.0 |
| COUNTY | Kane | STATUS | Active |
| PROPERTY TYPE(S) | Single Family |
| School District | Batavia Sr High School |
|---|---|
| Elementary School | J B Nelson Elementary School |
| Jr. High School | Sam Rotolo Middle School Of Bat |
| High School | Batavia Sr High School |
| ADDITIONAL DETAILS | |
| AIR | Central Air |
|---|---|
| AIR CONDITIONING | Yes |
| APPLIANCES | Dishwasher, Dryer, Microwave, Range, Stainless Steel Appliance(s), Washer |
| AREA | Batavia |
| BASEMENT | Full, Partially Finished, Yes |
| CONSTRUCTION | Cedar |
| FIREPLACE | Yes |
| GARAGE | Yes |
| HEAT | Forced Air, Natural Gas |
| INTERIOR | Vaulted Ceiling(s) |
| LOT | 0 |
| LOT DESCRIPTION | Corner Lot |
| LOT DIMENSIONS | 18407 |
| PARKING | Asphalt, Garage Door Opener, On Site, Attached, Garage |
| POOL DESCRIPTION | Above Ground |
| SEWER | Public Sewer |
| SUBDIVISION | Woodland Hills |
| TAXES | 6997.7 |
| WATER | Public |
MORTGAGE CALCULATOR
TOTAL MONTHLY PAYMENT
0
P
I
*Estimate only
| SATELLITE VIEW |
| / | |
We respect your online privacy and will never spam you. By submitting this form with your telephone number
you are consenting for Humderto
Garcia to contact you even if your name is on a Federal or State
"Do not call List".
Listed with Redfin Corporation
The data relating to real estate for sale on this web site comes in part from the Broker ReciprocitySM Program of MRED. All real estate listings are marked with the Broker ReciprocitySM logo or the MRED Broker ReciprocitySM thumbnail logo (a little black house) and detailed information about them includes the name of the listing brokers.
The broker providing these data believes them to be correct, but advises interested parties to confirm them before relying on them in a purchase decision.
Copyright 2025 MRED. All rights reserved.

The broker providing these data believes them to be correct, but advises interested parties to confirm them before relying on them in a purchase decision.
Copyright 2025 MRED. All rights reserved.
This IDX solution is (c) Diverse Solutions 2025.