|
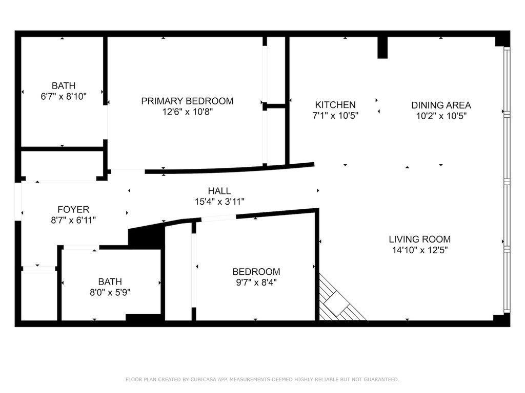
Located in the historic, landmarked University Commons near UIC and the Illinois Medical District, this freshly updated 2 bed, 2 bath loft blends modern comfort with classic character. The home features hardwood floors, exposed brick, architectural details, and a cozy corner fireplace. Both bedrooms now feature brand-new carpet (2025), complementing the freshly painted interior (September 2025). The open-concept kitchen offers granite countertops, stainless steel appliances including a brand-new high-end refrigerator, and an extended bar-height counter-perfect for casual dining or entertaining. A defined dining area enjoys natural light and pleasant views. The primary suite includes dual closets and a private bath with a soaking tub and granite vanity. An in-unit washer and dryer add everyday convenience. Move-in ready and waiting for its next owner, with deeded parking available for an additional $25,000.
| DAYS ON MARKET | 103 | LAST UPDATED | 9/13/2025 |
|---|---|---|---|
| YEAR BUILT | 1920 | COMMUNITY | CHI - Near West Side |
| GARAGE SPACES | 1.0 | COUNTY | Cook |
| STATUS | Active | PROPERTY TYPE(S) | Condo/Townhouse/Co-Op |
| ADDITIONAL DETAILS | |
| AIR | Central Air |
|---|---|
| AIR CONDITIONING | Yes |
| AMENITIES | Insurance, Internet, Snow Removal, Water |
| APPLIANCES | Dishwasher, Disposal, Dryer, Microwave, Range, Refrigerator, Stainless Steel Appliance(s), Washer |
| AREA | CHI - Near West Side |
| BASEMENT | None |
| CONSTRUCTION | Brick, Stone |
| FIREPLACE | Yes |
| GARAGE | Yes |
| HEAT | Natural Gas |
| HOA DUES | 599 |
| INTERIOR | Elevator, Storage |
| LOT | 0 |
| LOT DIMENSIONS | COMMON |
| PARKING | Heated Garage, On Site, Attached, Garage |
| SEWER | Public Sewer |
| STORIES | 4 |
| TAXES | 5064 |
| WATER | Public |
MORTGAGE CALCULATOR
TOTAL MONTHLY PAYMENT
0
P
I
*Estimate only
| SATELLITE VIEW |
| / | |
We respect your online privacy and will never spam you. By submitting this form with your telephone number
you are consenting for Humderto
Garcia to contact you even if your name is on a Federal or State
"Do not call List".
Listed with Vesta Preferred LLC
The data relating to real estate for sale on this web site comes in part from the Broker ReciprocitySM Program of MRED. All real estate listings are marked with the Broker ReciprocitySM logo or the MRED Broker ReciprocitySM thumbnail logo (a little black house) and detailed information about them includes the name of the listing brokers.
The broker providing these data believes them to be correct, but advises interested parties to confirm them before relying on them in a purchase decision.
Copyright 2025 MRED. All rights reserved.

The broker providing these data believes them to be correct, but advises interested parties to confirm them before relying on them in a purchase decision.
Copyright 2025 MRED. All rights reserved.
This IDX solution is (c) Diverse Solutions 2025.