|
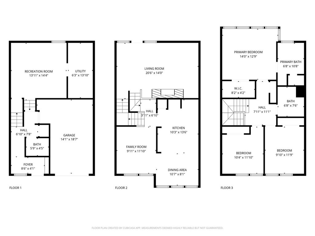
Private, gated boutique townhouse community tucked away on a quiet street. This spacious townhouse is ready for your design vision. The living room features high ceilings and a cozy fireplace, with abundant natural light throughout. The kitchen offers plenty of cabinets and counter space. Enjoy beautiful landscaping in the fenced backyard, complete with a deck for outdoor relaxation. The home does need a full renovation and is priced accordingly. (Note: the upstairs whirlpool tub is not operational.) Basement-level entry from the garage leads to a bonus room, half bath, and a generous utility/laundry room with a sink. Attached one-car garage. Lives and feels like a single-family home-quiet, private, and full of potential. Inspections are welcome, but the property is being sold as-is.
| DAYS ON MARKET | 141 | LAST UPDATED | 12/23/2025 |
|---|---|---|---|
| YEAR BUILT | 1995 | COMMUNITY | CHI - Kenwood |
| GARAGE SPACES | 1.0 | COUNTY | Cook |
| STATUS | Conditional | PROPERTY TYPE(S) | Condo/Townhouse/Co-Op |
| PRICE HISTORY | |
| Prior to Nov 26, '25 | $510,000 |
|---|---|
| Nov 26, '25 - Today | $490,000 |
| ADDITIONAL DETAILS | |
| AIR | Central Air |
|---|---|
| AIR CONDITIONING | Yes |
| AMENITIES | Insurance, Snow Removal |
| APPLIANCES | Dishwasher, Dryer, Microwave, Range, Refrigerator, Washer |
| AREA | CHI - Kenwood |
| BASEMENT | Finished, Partial, Yes |
| CONSTRUCTION | Brick, Synthetic Stucco |
| FIREPLACE | Yes |
| GARAGE | Attached Garage, Yes |
| HEAT | Natural Gas |
| HOA DUES | 100 |
| INTERIOR | Cathedral Ceiling(s) |
| LOT | 0 |
| LOT DIMENSIONS | 22x76 |
| PARKING | Asphalt, Garage Door Opener, Attached, Garage |
| SEWER | Public Sewer |
| STORIES | 3 |
| TAXES | 8615 |
| WATER | Public |
MORTGAGE CALCULATOR
TOTAL MONTHLY PAYMENT
0
P
I
*Estimate only
| / | |
We respect your online privacy and will never spam you. By submitting this form with your telephone number
you are consenting for Humderto
Garcia to contact you even if your name is on a Federal or State
"Do not call List".
Listed with Laraine Hanson
The data relating to real estate for sale on this web site comes in part from the Broker ReciprocitySM Program of MRED. All real estate listings are marked with the Broker ReciprocitySM logo or the MRED Broker ReciprocitySM thumbnail logo (a little black house) and detailed information about them includes the name of the listing brokers.
The broker providing these data believes them to be correct, but advises interested parties to confirm them before relying on them in a purchase decision.
Copyright 2026 MRED. All rights reserved.

The broker providing these data believes them to be correct, but advises interested parties to confirm them before relying on them in a purchase decision.
Copyright 2026 MRED. All rights reserved.
This IDX solution is (c) Diverse Solutions 2026.