|
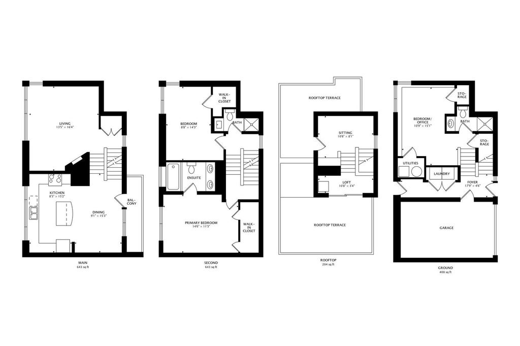
Spacious, extra-wide 3 Bed + Loft / 3 Bath Corner Townhome with Garage + Parking Pad in River West. Welcome to a beautifully maintained townhome that lives like a single-family home, offering comfort, versatility, and convenience in one of the city's most vibrant neighborhoods. With 3 bedrooms, 3 full baths, and two-car parking (attached garage plus parking pad), this home is built for modern living. The entry level welcomes you with a bright foyer, updated flooring, and access to an expansive patio, one of four private outdoor spaces. This level also includes a side-by-side laundry closet neatly tucked away. A flexible lower-level suite (currently used as an office but can be easily converted to a 3rd bedroom) features high ceilings, its own full bath, a closet, and abundant storage-perfect for guests, a home office, or a recreation space. The heart of the home is the main living area, where soaring 13-foot ceilings, oak hardwood floors, and a wood-burning fireplace create a warm and inviting atmosphere. Just above, the open-concept kitchen features stainless steel appliances, a large island with seating, ample cabinetry, and a dining space with direct access to a 15-foot balcony, perfect for grilling and entertaining. Upstairs, the second bedroom enjoys its own updated full bath and feels semi-private thanks to the split-level design. The spacious primary suite impresses on the next level with two walk-in closets and a spa-like bath featuring a jacuzzi tub with shower, and dual stone vanities. The upper floors add even more living flexibility: a cozy seating area with access to a third outdoor space, plus a private rooftop deck with skyline views, ready to personalize for gatherings or quiet relaxation. The whole home is wired for sound originating in the Living Room with individual volume controls throughout the home, and the equipment will stay. Storage is plentiful throughout, and recent updates ensure peace of mind. With fee simple ownership, low assessments, and a quiet courtyard setting just steps from the CTA Blue Line, expressways, and the lively Milwaukee/Chicago/Ogden, this home truly delivers city living at its best.
| DAYS ON MARKET | 76 | LAST UPDATED | 10/20/2025 |
|---|---|---|---|
| YEAR BUILT | 1998 | COMMUNITY | CHI - West Town |
| GARAGE SPACES | 1.0 | COUNTY | Cook |
| STATUS | Conditional | PROPERTY TYPE(S) | Condo/Townhouse/Co-Op |
| School District | Wells Community Academy Senior H |
|---|---|
| Elementary School | Ogden Elementary |
| Jr. High School | Ogden Elementary |
| High School | Wells Community Academy Senior H |
| PRICE HISTORY | |
| Prior to Oct 1, '25 | $679,900 |
|---|---|
| Oct 1, '25 - Today | $650,000 |
| ADDITIONAL DETAILS | |
| AIR | Ceiling Fan(s), Central Air |
|---|---|
| AIR CONDITIONING | Yes |
| AMENITIES | Insurance, Snow Removal, Water |
| APPLIANCES | Dishwasher, Disposal, Dryer, Humidifier, Microwave, Range, Refrigerator, Stainless Steel Appliance(s), Washer |
| AREA | CHI - West Town |
| BASEMENT | Finished, Full, Yes |
| CONSTRUCTION | Block, Brick, Synthetic Stucco |
| EXTERIOR | Balcony |
| FIREPLACE | Yes |
| GARAGE | Yes |
| HEAT | Forced Air, Natural Gas |
| HOA DUES | 175 |
| INTERIOR | Cathedral Ceiling(s), Storage, Walk-In Closet(s) |
| LOT | 0 |
| LOT DESCRIPTION | Landscaped |
| LOT DIMENSIONS | 903 |
| PARKING | Garage Door Opener, On Site, Attached, Assigned, Driveway, Garage |
| SEWER | Public Sewer |
| STORIES | 3 |
| TAXES | 11573 |
| UTILITIES | Cable Available |
MORTGAGE CALCULATOR
TOTAL MONTHLY PAYMENT
0
P
I
*Estimate only
| SATELLITE VIEW |
| / | |
We respect your online privacy and will never spam you. By submitting this form with your telephone number
you are consenting for Humderto
Garcia to contact you even if your name is on a Federal or State
"Do not call List".
Listed with Spot Real Estate
The data relating to real estate for sale on this web site comes in part from the Broker ReciprocitySM Program of MRED. All real estate listings are marked with the Broker ReciprocitySM logo or the MRED Broker ReciprocitySM thumbnail logo (a little black house) and detailed information about them includes the name of the listing brokers.
The broker providing these data believes them to be correct, but advises interested parties to confirm them before relying on them in a purchase decision.
Copyright 2025 MRED. All rights reserved.

The broker providing these data believes them to be correct, but advises interested parties to confirm them before relying on them in a purchase decision.
Copyright 2025 MRED. All rights reserved.
This IDX solution is (c) Diverse Solutions 2025.