|
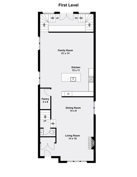
First of four homes to hit the market in our most recent development on Chicago's northwest side, Serene4 in beautiful Peterson Park! Impeccable new construction single-family home by expert builder on a 30' lot. Great curb appeal with wood grain board and batten facade highlighted by stone, gray Hardie board siding, black windows, and a modern front entry door. Spacious floor plan with 5 bedrooms and 3.1 baths. Combined living/dining room features large windows offering ample natural light and gas fireplace with floor to ceiling surround. Beautiful oak hardwood flooring throughout main and upper level. Chef quality kitchen perfect for entertaining equipped with professional Thermador appliances, island with bar seating, custom cabinetry, quartz counters, large pantry, and breakfast area. Adjoining family room with custom media center, coffered ceiling, and large windows overlooking the backyard. Rear mudroom with built-in bench. Spacious primary bedroom includes two walk-in closets with custom organizers, and spa like ensuite bath with freestanding soaking tub, frameless glass shower, dual vanities, toilet room, and heated flooring. Three additional bedrooms, guest bath with tub, dual sinks, and heated flooring, and laundry room with sink complete the upper level. Finished basement with radiant heated flooring throughout includes recreation room with wet bar featuring beverage center, 5th bedroom, full bath, second laundry hook-up, storage space, and mechanicals. Every detail has been considered; high end fixtures and finishes, statement lighting, 8' doors, custom ceiling details, pre-wiring for speakers and security cameras, built-out closets and pantry, skylights, and much more. Fully enclosed yard with security intercom + rear stamped concrete patio and detached extra-wide 25' two-car garage. Located in beautiful Peterson Park close to outdoor recreation, shopping, restaurants, and conveniences + other great neighborhoods like Andersonville and Lincoln Square! Expected completion early November.
| DAYS ON MARKET | 47 | LAST UPDATED | 9/17/2025 |
|---|---|---|---|
| YEAR BUILT | 2025 | COMMUNITY | CHI - West Ridge |
| GARAGE SPACES | 2.0 | COUNTY | Cook |
| STATUS | Active | PROPERTY TYPE(S) | Single Family |
| ADDITIONAL DETAILS | |
| AIR | Central Air |
|---|---|
| AIR CONDITIONING | Yes |
| AREA | CHI - West Ridge |
| BASEMENT | Finished, Full, Sump Pump, Yes |
| CONSTRUCTION | Fiber Cement, Stone |
| FIREPLACE | Yes |
| GARAGE | Yes |
| HEAT | Forced Air, Natural Gas, Radiant Floor |
| INTERIOR | Built-in Features, Coffered Ceiling(s), High Ceilings, Walk-In Closet(s), Wet Bar |
| LOT | 0 |
| LOT DIMENSIONS | 30 x 124 |
| PARKING | Garage Door Opener, On Site, Detached, Garage |
| SEWER | Public Sewer |
| WATER | Public |
MORTGAGE CALCULATOR
TOTAL MONTHLY PAYMENT
0
P
I
*Estimate only
| SATELLITE VIEW |
| / | |
We respect your online privacy and will never spam you. By submitting this form with your telephone number
you are consenting for Humderto
Garcia to contact you even if your name is on a Federal or State
"Do not call List".
Listed with Jameson Sotheby's Intl Realty
The data relating to real estate for sale on this web site comes in part from the Broker ReciprocitySM Program of MRED. All real estate listings are marked with the Broker ReciprocitySM logo or the MRED Broker ReciprocitySM thumbnail logo (a little black house) and detailed information about them includes the name of the listing brokers.
The broker providing these data believes them to be correct, but advises interested parties to confirm them before relying on them in a purchase decision.
Copyright 2025 MRED. All rights reserved.

The broker providing these data believes them to be correct, but advises interested parties to confirm them before relying on them in a purchase decision.
Copyright 2025 MRED. All rights reserved.
This IDX solution is (c) Diverse Solutions 2025.