|
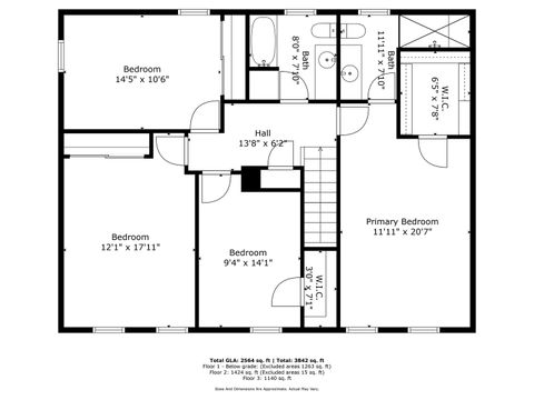
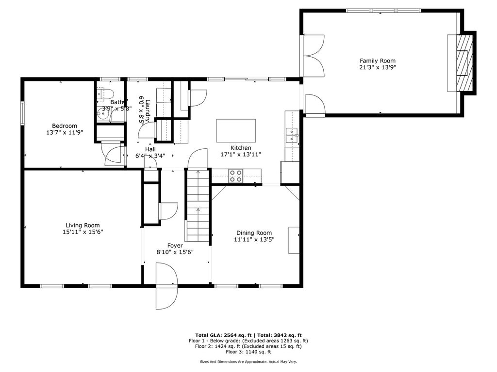
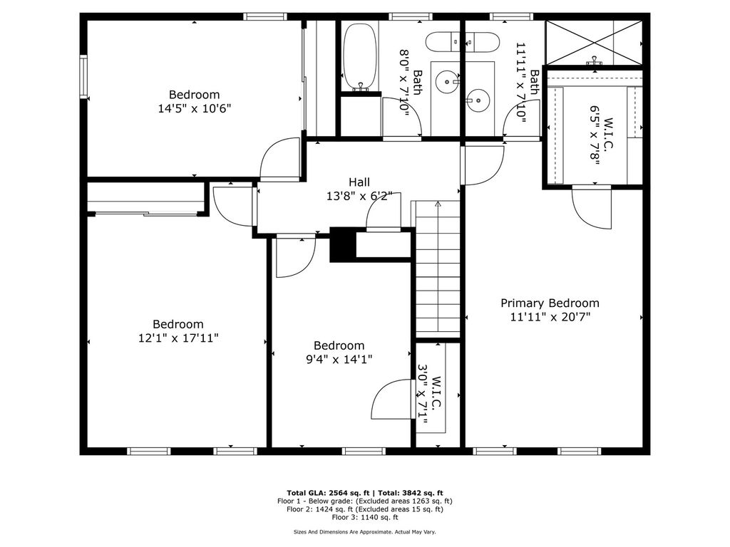
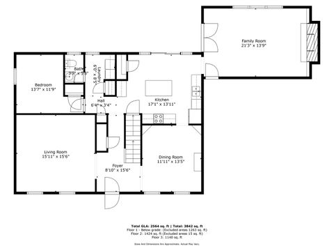
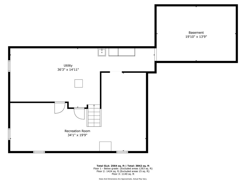
Welcome to the largest floor plan in the neighborhood-a true 5BR/2.5 BA home nestled on a quiet interior street. Just 8 houses from the Farmstead Pool, 2 blocks from Madison Middle School, and 5 minutes from shopping and dining, the location can't be beat! Inside you'll find lovely hardwood floors and newer carpeting throughout; large kitchen with added utility of island and generously-sized pantry. 1st floor BR, Family Room, Dining Room, Living Room and Laundry round out the main level with access to beautiful composite deck and landscaped back yard. Four additional bedrooms upstairs; Primary BR updated with oversized shower and enlarged closet. Basement is finished for even more livability, crawl space is clean and dry with incredible storage. Roof, Windows, and Leaf Guard installation completed 10 years ago. Furnace/AC 2010. Home has been lovingly maintained by current owners, come see it today! **Home has been reactivated; buyer got cold feet, home inspection was not done.
DAYS ON MARKET | 13 | LAST UPDATED | 9/17/2025 |
---|---|---|---|
TRACT | Farmstead | YEAR BUILT | 1975 |
COMMUNITY | Naperville | GARAGE SPACES | 2.0 |
COUNTY | DuPage | STATUS | Active |
PROPERTY TYPE(S) | Single Family |
School District | Naperville Central High School |
---|---|
Elementary School | Scott Elementary School |
Jr. High School | Madison Junior High School |
High School | Naperville Central High School |
ADDITIONAL DETAILS | |
AIR | Central Air |
---|---|
AIR CONDITIONING | Yes |
APPLIANCES | Dishwasher, Disposal, Dryer, Freezer, Humidifier, Microwave, Oven, Range, Refrigerator, Washer |
AREA | Naperville |
BASEMENT | Crawl Space, Finished, Partial, Yes |
CONSTRUCTION | Vinyl Siding |
FIREPLACE | Yes |
GARAGE | Yes |
HEAT | Forced Air, Natural Gas |
INTERIOR | Entrance Foyer, Pantry, Walk-In Closet(s) |
LOT | 0 |
LOT DIMENSIONS | 80X128 |
PARKING | Asphalt, Garage Door Opener, On Site, Attached, Garage |
SEWER | Public Sewer |
STYLE | Colonial |
SUBDIVISION | Farmstead |
TAXES | 9490 |
MORTGAGE CALCULATOR
TOTAL MONTHLY PAYMENT
0
P
I
*Estimate only
SATELLITE VIEW |
/ | |
We respect your online privacy and will never spam you. By submitting this form with your telephone number
you are consenting for Humderto
Garcia to contact you even if your name is on a Federal or State
"Do not call List".
Listed with john greene, Realtor
The data relating to real estate for sale on this web site comes in part from the Broker ReciprocitySM Program of MRED. All real estate listings are marked with the Broker ReciprocitySM logo or the MRED Broker ReciprocitySM thumbnail logo (a little black house) and detailed information about them includes the name of the listing brokers.
The broker providing these data believes them to be correct, but advises interested parties to confirm them before relying on them in a purchase decision.
Copyright 2025 MRED. All rights reserved.

The broker providing these data believes them to be correct, but advises interested parties to confirm them before relying on them in a purchase decision.
Copyright 2025 MRED. All rights reserved.

This IDX solution is (c) Diverse Solutions 2025.