|
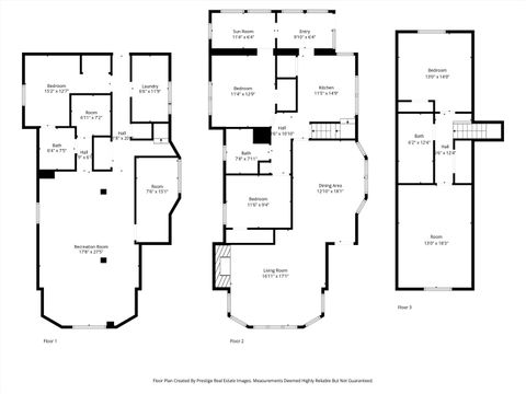
Welcome to this beautifully renovated, oversized brick bungalow that perfectly blends timeless charm with contemporary upgrades. Boasting 6 spacious bedrooms and 3 brand-new bathrooms, this home offers an exceptional amount of living space-ideal for large or extended families. Step into the sun-drenched main level, where you'll find a generous living room featuring a decorative fireplace, custom built-ins, and recessed lighting, all complemented by new flooring that adds a sleek, modern touch. Entertain with ease in the formal dining room, which flows seamlessly into the completely redesigned kitchen-highlighted by granite countertops, a stylish backsplash, and new stainless steel appliances. The fully finished basement offers incredible flexibility with two additional bedrooms, a full bathroom, a laundry room, and expansive living space perfect for guests, in-laws, or related living. Enjoy the outdoors with a newly installed privacy fence, a spacious yard, and a brand-new 2-car garage. Situated on a well-kept block in the heart of the Roseland community, you're just minutes from parks, schools, shopping, public transportation, and have convenient access to expressways. This move-in ready home is a true must-see!
| DAYS ON MARKET | 75 | LAST UPDATED | 9/17/2025 |
|---|---|---|---|
| YEAR BUILT | 1925 | COMMUNITY | CHI - Roseland |
| GARAGE SPACES | 2.0 | COUNTY | Cook |
| STATUS | Active | PROPERTY TYPE(S) | Single Family |
| ADDITIONAL DETAILS | |
| AIR | Central Air |
|---|---|
| AIR CONDITIONING | Yes |
| APPLIANCES | Dishwasher, Microwave, Range, Refrigerator, Stainless Steel Appliance(s) |
| AREA | CHI - Roseland |
| BASEMENT | Finished, Full, Yes |
| CONSTRUCTION | Brick |
| FIREPLACE | Yes |
| GARAGE | Yes |
| HEAT | Forced Air, Natural Gas |
| INTERIOR | Granite Counters |
| LOT | 0 |
| LOT DIMENSIONS | 50x122 |
| PARKING | Detached, Garage |
| SEWER | Public Sewer |
| STYLE | Bungalow |
| TAXES | 1269 |
| WATER | Public |
MORTGAGE CALCULATOR
TOTAL MONTHLY PAYMENT
0
P
I
*Estimate only
| SATELLITE VIEW |
| / | |
We respect your online privacy and will never spam you. By submitting this form with your telephone number
you are consenting for Humderto
Garcia to contact you even if your name is on a Federal or State
"Do not call List".
Listed with Real Broker LLC
The data relating to real estate for sale on this web site comes in part from the Broker ReciprocitySM Program of MRED. All real estate listings are marked with the Broker ReciprocitySM logo or the MRED Broker ReciprocitySM thumbnail logo (a little black house) and detailed information about them includes the name of the listing brokers.
The broker providing these data believes them to be correct, but advises interested parties to confirm them before relying on them in a purchase decision.
Copyright 2025 MRED. All rights reserved.

The broker providing these data believes them to be correct, but advises interested parties to confirm them before relying on them in a purchase decision.
Copyright 2025 MRED. All rights reserved.
This IDX solution is (c) Diverse Solutions 2025.