|
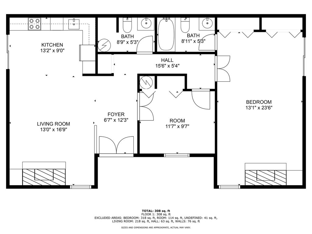
CASH BUYERS AND INVESTORS TAKE NOTICE! This first-floor condo at 3334 Berwyn Ave, Unit 120, is your chance to acquire a valuable asset in the highly sought-after Strawberry Condos. Priced aggressively for an AS-IS, WHERE-IS sale, this unit is waiting for a complete renovation to unlock its full potential and maximize rental income or resale value. Bring your vision and tools! This 2 beds beds, 2baths unit requires a total overhaul, from flooring and kitchen to bath and cosmetic updates. It is the perfect blank canvas for an investor ready to customize and modernize. While the interior needs work, the true value lies in the unbeatable location and resort-style amenities of the Strawberry Condos Subdivision, which are all included in the HOA: The community is beautifully maintained with picturesque pond views, complete with a sparkling fountain, offering a serene backdrop and tranquility that is highly attractive to future tenants or homeowners. The subdivision features a stunning oversized communal deck overlooking the water, as well as private patio spaces perfect for relaxing and enjoying the outdoors. Enjoy access to the clubhouse, pool, tennis courts, and fitness room providing a high quality of life that commands strong rental rates (condo can be rented after one year) The complex is centrally located with easy access to major highways, shopping, and transportation. This is a rare opportunity to invest in a prime location at an entry-level price. Due to the scope of work needed, this is best suited for a CASH OFFER or a buyer utilizing a rehab loan. Seller will not make any repairs. Contact us today for details on required financing and to schedule your viewing.
DAYS ON MARKET | 20 | LAST UPDATED | 9/21/2025 |
---|---|---|---|
YEAR BUILT | 1972 | COMMUNITY | North Chicago |
COUNTY | Lake | STATUS | Conditional |
PROPERTY TYPE(S) | Condo/Townhouse/Co-Op |
ADDITIONAL DETAILS | |
AIR | Central Air |
---|---|
AIR CONDITIONING | Yes |
AMENITIES | Insurance, Snow Removal, Water |
AREA | North Chicago |
BASEMENT | None |
CONSTRUCTION | Aluminum Siding |
HEAT | Natural Gas |
HOA DUES | 274 |
LOT | 0 |
LOT DIMENSIONS | Condo |
PARKING | On Site |
SEWER | Public Sewer |
STORIES | 1 |
TAXES | 3771 |
WATER | Public |
MORTGAGE CALCULATOR
TOTAL MONTHLY PAYMENT
0
P
I
*Estimate only
SATELLITE VIEW |
/ | |
We respect your online privacy and will never spam you. By submitting this form with your telephone number
you are consenting for Humderto
Garcia to contact you even if your name is on a Federal or State
"Do not call List".
Listed with RE/MAX American Dream
The data relating to real estate for sale on this web site comes in part from the Broker ReciprocitySM Program of MRED. All real estate listings are marked with the Broker ReciprocitySM logo or the MRED Broker ReciprocitySM thumbnail logo (a little black house) and detailed information about them includes the name of the listing brokers.
The broker providing these data believes them to be correct, but advises interested parties to confirm them before relying on them in a purchase decision.
Copyright 2025 MRED. All rights reserved.

The broker providing these data believes them to be correct, but advises interested parties to confirm them before relying on them in a purchase decision.
Copyright 2025 MRED. All rights reserved.

This IDX solution is (c) Diverse Solutions 2025.