|
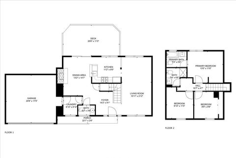
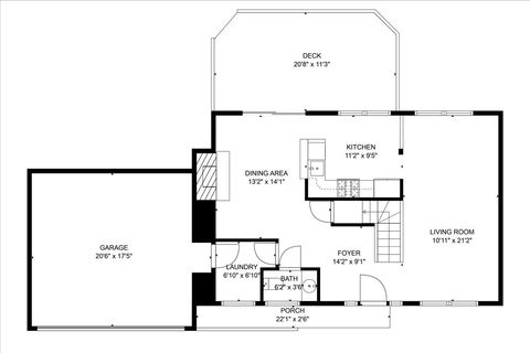
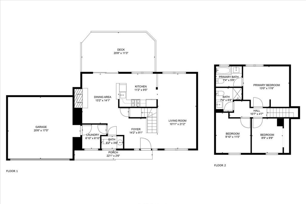
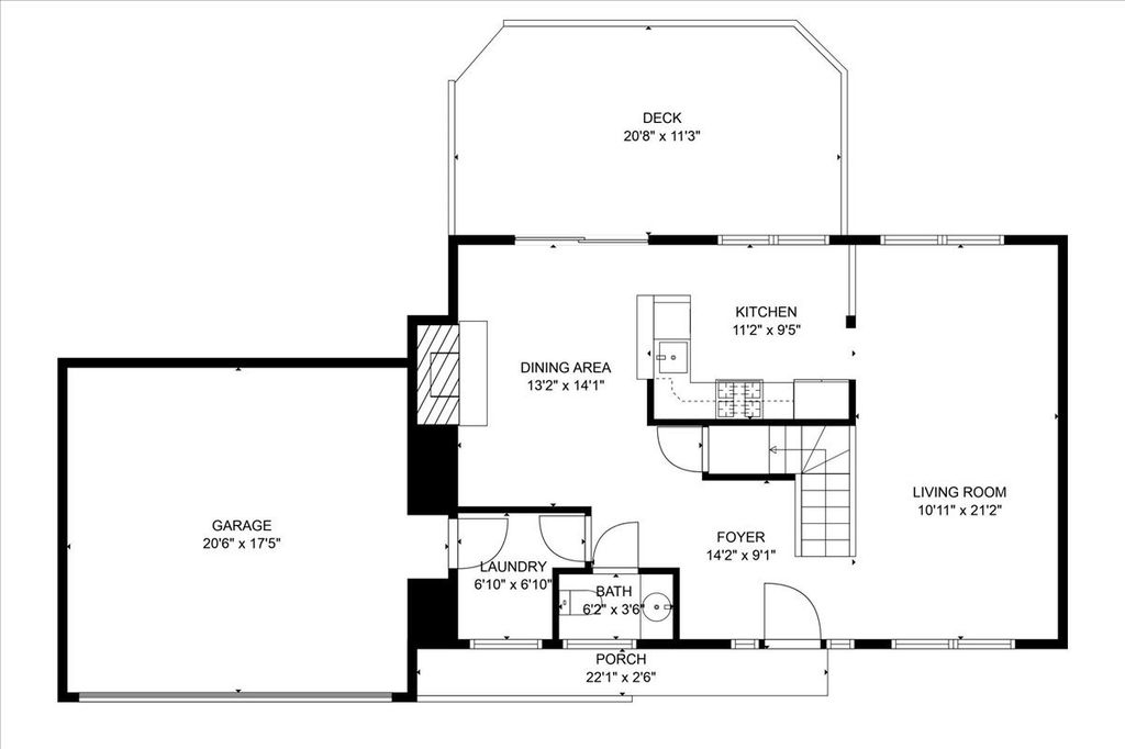
Welcome to this beautifully updated 2-story home featuring 3 spacious bedrooms, including a master bedroom with an en-suite bath, and 2.1 baths overall. This inviting residence boasts an abundance of natural light throughout, highlighted by fresh paint and everything is brand new, including new flooring. The living room is perfect for cozy evenings with a charming fireplace, while the stunning kitchen features brand new modern appliances and beautiful brand new cabinets, making it a chef's dream. Enjoy outdoor space on the oversized corner lot, which is larger than most lots in the neighborhood, complete with a nice deck for entertaining and a small front deck with space for a table and chairs, ideal for enjoying your morning coffee. The back of the property opens to a park, providing a wonderful view and access to green space. Plus, this home is conveniently situated within walking distance to Madison Junior High and is part of the highly acclaimed Naperville 203 School District. With its fantastic location, welcoming spaces, and access to top-rated schools and outdoor recreation, this property truly stands out.
DAYS ON MARKET | 17 | LAST UPDATED | 9/17/2025 |
---|---|---|---|
YEAR BUILT | 1984 | COMMUNITY | Naperville |
GARAGE SPACES | 2.0 | COUNTY | DuPage |
STATUS | Active | PROPERTY TYPE(S) | Single Family |
School District | Naperville Central High School |
---|---|
Elementary School | Meadow Glens Elementary School |
Jr. High School | Madison Junior High School |
High School | Naperville Central High School |
ADDITIONAL DETAILS | |
AIR | Central Air |
---|---|
AIR CONDITIONING | Yes |
APPLIANCES | Range, Refrigerator |
AREA | Naperville |
BASEMENT | Crawl Space |
CONSTRUCTION | Vinyl Siding |
FIREPLACE | Yes |
GARAGE | Yes |
HEAT | Natural Gas |
LOT | 0.2937 acre(s) |
LOT DIMENSIONS | 12632 |
PARKING | On Site, Attached, Garage |
SEWER | Public Sewer |
STYLE | Colonial |
TAXES | 7130 |
WATER | Public |
MORTGAGE CALCULATOR
TOTAL MONTHLY PAYMENT
0
P
I
*Estimate only
SATELLITE VIEW |
/ | |
We respect your online privacy and will never spam you. By submitting this form with your telephone number
you are consenting for Humderto
Garcia to contact you even if your name is on a Federal or State
"Do not call List".
Listed with Century 21 Circle
The data relating to real estate for sale on this web site comes in part from the Broker ReciprocitySM Program of MRED. All real estate listings are marked with the Broker ReciprocitySM logo or the MRED Broker ReciprocitySM thumbnail logo (a little black house) and detailed information about them includes the name of the listing brokers.
The broker providing these data believes them to be correct, but advises interested parties to confirm them before relying on them in a purchase decision.
Copyright 2025 MRED. All rights reserved.

The broker providing these data believes them to be correct, but advises interested parties to confirm them before relying on them in a purchase decision.
Copyright 2025 MRED. All rights reserved.

This IDX solution is (c) Diverse Solutions 2025.