|
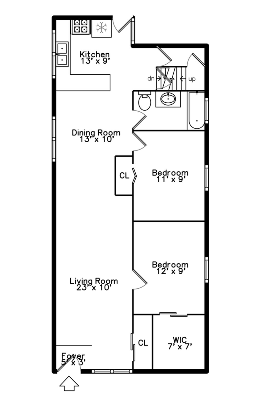
MULTIPLE OFFERS! The seller has received multiple offers and has set a deadline for review of highest and best offers for tomorrow, Tuesday, 9/23 at 5pm. Estate Sale! Bring your ideas and your contractor! Cozy 2 bed, 1 bath Single Family Home on a picturesque residential block with tons of potential. Additional lofted space in finished attic, with room to expand in the unfinished basement. Lovely curb appeal with deep front yard with house set at the back of the lot. Possible space for 1 car off alley, plus set up for laundry in basement as well as forced air. Sold As-Is, Where Is. Buyer to do due diligence and verify information. 5 days of market time required prior to considering offers. Court Approval Required. Probate Rider Required with Offers. Please allow time for response.
DAYS ON MARKET | 21 | LAST UPDATED | 10/3/2025 |
---|---|---|---|
YEAR BUILT | 1920 | COMMUNITY | Summit |
COUNTY | Cook | STATUS | Conditional |
PROPERTY TYPE(S) | Single Family |
ADDITIONAL DETAILS | |
AIR | Central Air |
---|---|
AIR CONDITIONING | Yes |
AREA | Summit |
BASEMENT | Full, Unfinished, Yes |
CONSTRUCTION | Vinyl Siding |
HEAT | Forced Air, Natural Gas |
INTERIOR | Walk-In Closet(s) |
LOT | 0 |
LOT DIMENSIONS | 25X125 |
SEWER | Public Sewer |
STYLE | A-Frame |
TAXES | 2814 |
WATER | Public |
MORTGAGE CALCULATOR
TOTAL MONTHLY PAYMENT
0
P
I
*Estimate only
SATELLITE VIEW |
/ | |
We respect your online privacy and will never spam you. By submitting this form with your telephone number
you are consenting for Humderto
Garcia to contact you even if your name is on a Federal or State
"Do not call List".
Listed with Baird & Warner
The data relating to real estate for sale on this web site comes in part from the Broker ReciprocitySM Program of MRED. All real estate listings are marked with the Broker ReciprocitySM logo or the MRED Broker ReciprocitySM thumbnail logo (a little black house) and detailed information about them includes the name of the listing brokers.
The broker providing these data believes them to be correct, but advises interested parties to confirm them before relying on them in a purchase decision.
Copyright 2025 MRED. All rights reserved.

The broker providing these data believes them to be correct, but advises interested parties to confirm them before relying on them in a purchase decision.
Copyright 2025 MRED. All rights reserved.

This IDX solution is (c) Diverse Solutions 2025.