|
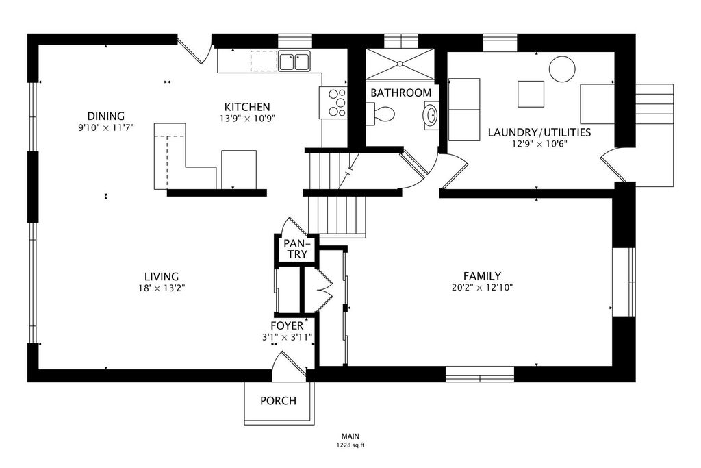
All brick, remodeled split-level with open floor plan and ideal location. Kitchen remodeled in 2014 with custom cabinetry, granite counters and stainless appliances opens to dining room. The L-shaped living room with recessed lighting completes the first floor. Gorgeous hardwood floors throughout first and second level. All interior and exterior doors replaced with solid-core, wood doors. Smart home with Nest thermostat and smart locks on the front and side door. Newer Pella Windows throughout (850 Series, 2015). Upstairs includes 3 bedrooms with generous closet space and a remodeled bath (2015). Lower level includes a bright family room with recessed lighting, remodeled full bath with walk-in shower (2015), and laundry/mud room with access to the fenced-in backyard. New roof on house and garage (2024). Newer furnace (2019), ac (2019), and hot water tank (2024). Garage with newer siding, 2 car door off alley and "party door" into the yard (all new in 2016). Newer concrete on side walk and back (2016). Crawl with new concrete (2022) offers tons of storage. Professionally waterproofed with Perma-Seal (2021) and flood control system provide peace of mind. New Dishwasher(2025). Just a few blocks to the "Skokie Swift" CTA Yellow line station, downtown Skokie (restaurants, groceries, and shops), parks, and the Oakton Community Center. Award-winning Madison(K-2nd)/Edison Elementary(3rd-5th), Lincoln Jr High, and Niles West High School.
DAYS ON MARKET | 14 | LAST UPDATED | 9/24/2025 |
---|---|---|---|
YEAR BUILT | 1963 | COMMUNITY | Skokie |
GARAGE SPACES | 2.0 | COUNTY | Cook |
STATUS | Active | PROPERTY TYPE(S) | Single Family |
School District | Niles West High School |
---|---|
Elementary School | Madison Elementary School |
Jr. High School | Lincoln Junior High School |
High School | Niles West High School |
ADDITIONAL DETAILS | |
AIR | Central Air |
---|---|
AIR CONDITIONING | Yes |
APPLIANCES | Dishwasher, Dryer, Microwave, Range, Refrigerator, Stainless Steel Appliance(s), Washer |
AREA | Skokie |
BASEMENT | Crawl Space, Daylight, Partially Finished, Sump Pump, Yes |
CONSTRUCTION | Brick |
GARAGE | Yes |
HEAT | Forced Air, Natural Gas |
INTERIOR | Entrance Foyer |
LOT | 0 |
LOT DIMENSIONS | 35 X 123 |
PARKING | Garage Door Opener, On Site, Detached, Garage |
SEWER | Public Sewer |
TAXES | 5323 |
MORTGAGE CALCULATOR
TOTAL MONTHLY PAYMENT
0
P
I
*Estimate only
SATELLITE VIEW |
/ | |
We respect your online privacy and will never spam you. By submitting this form with your telephone number
you are consenting for Humderto
Garcia to contact you even if your name is on a Federal or State
"Do not call List".
Listed with @properties Christie's International Real Estate
The data relating to real estate for sale on this web site comes in part from the Broker ReciprocitySM Program of MRED. All real estate listings are marked with the Broker ReciprocitySM logo or the MRED Broker ReciprocitySM thumbnail logo (a little black house) and detailed information about them includes the name of the listing brokers.
The broker providing these data believes them to be correct, but advises interested parties to confirm them before relying on them in a purchase decision.
Copyright 2025 MRED. All rights reserved.

The broker providing these data believes them to be correct, but advises interested parties to confirm them before relying on them in a purchase decision.
Copyright 2025 MRED. All rights reserved.

This IDX solution is (c) Diverse Solutions 2025.