|
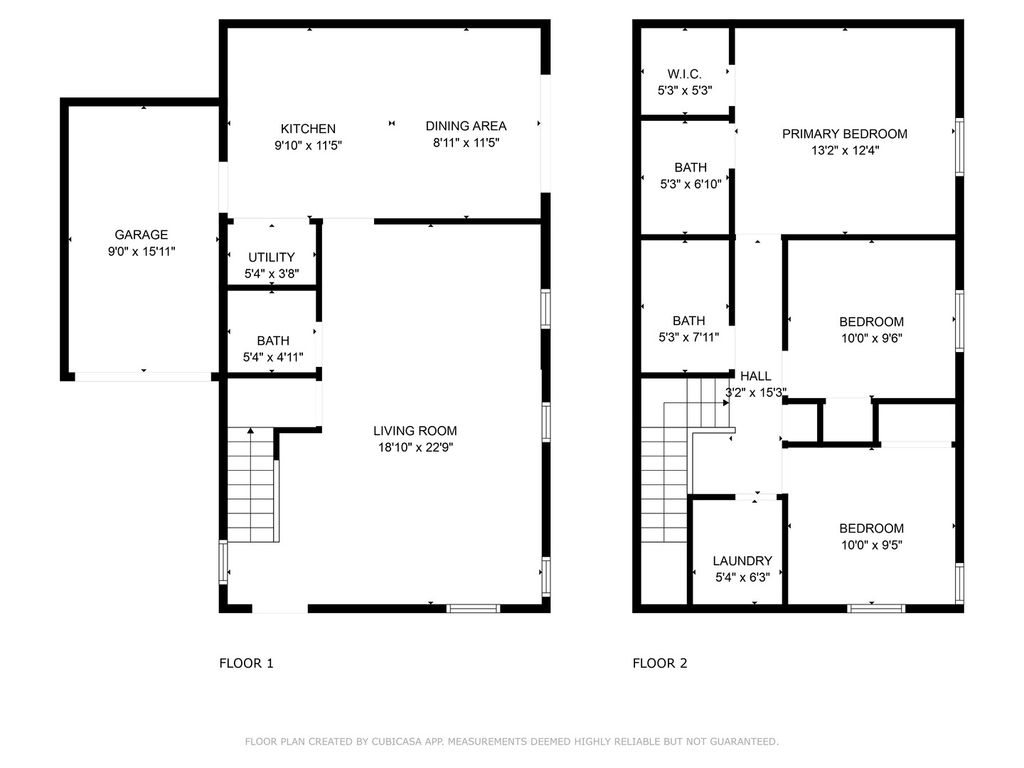
Welcome Home - 1303 Orleans, this is an amazing turnkey townhome in pristine and perfect move-in ready condition in the prestigious Lakewood Village subdivision. Its an end-unit with great layout. The owners have taken care of this beautiful townhome. You cannot ask for a better location with great schools, shopping, access etc. As you enter this townhome, you will see the large living area with brand new flooring. The gourmet kitchen has the granite countertops with plenty of cabinets. Kitchen has a large eat-in breakfast space to put a relative larger table that overlooks the private patio area accessible through the sliding doors. Nicely updated powder room, attached 1 car garage and mechanical room completes the main level. Upstairs you will find 3 large bedrooms with brand new flooring. Master bedroom is a private oasis with updated ensuite bathroom that has brand new flooring and large walk-in closet. Another 2 large bedroom with brand new flooring for guest/kids and has another full bathroom access right next to it. For your comfort, the laundry is located in the 2nd floor. Recent Updates Includes - Paint throughout (Aug - 2025), Laminate Flooring (Aug -2025), Bathroom Floorings (Aug - 2025), Hot Water Tank (Feb - 2019), Furnace (Feb - 2019), AC (Feb - 2019). This townhome is located in very desirable area and conveniently Close to Metra, Shopping, Dining, and Commuting to the Interstate!. Nothing to do but, move right in and enjoy this gorgeous townhome during this upcoming seasons and forever. Investor Friendly - Rentals Allowed.
DAYS ON MARKET | 24 | LAST UPDATED | 10/2/2025 |
---|---|---|---|
YEAR BUILT | 1995 | COMMUNITY | Ivanhoe / Mundelein |
GARAGE SPACES | 1.0 | COUNTY | Lake |
STATUS | Active | PROPERTY TYPE(S) | Condo/Townhouse/Co-Op |
School District | Mundelein Cons High School |
---|---|
Elementary School | Hawthorn Elementary School (Sout |
Jr. High School | Hawthorn Elementary School (Sout |
High School | Mundelein Cons High School |
PRICE HISTORY | |
Prior to Oct 2, '25 | $329,000 |
---|---|
Oct 2, '25 - Today | $324,900 |
ADDITIONAL DETAILS | |
AIR | Central Air |
---|---|
AIR CONDITIONING | Yes |
AMENITIES | Snow Removal |
AREA | Ivanhoe / Mundelein |
BASEMENT | None |
CONSTRUCTION | Vinyl Siding |
GARAGE | Yes |
HEAT | Natural Gas |
HOA DUES | 237 |
LOT | 0 |
LOT DIMENSIONS | Common |
PARKING | On Site, Attached, Garage |
SEWER | Public Sewer |
STORIES | 2 |
TAXES | 6349 |
WATER | Public |
MORTGAGE CALCULATOR
TOTAL MONTHLY PAYMENT
0
P
I
*Estimate only
SATELLITE VIEW |
/ | |
We respect your online privacy and will never spam you. By submitting this form with your telephone number
you are consenting for Humderto
Garcia to contact you even if your name is on a Federal or State
"Do not call List".
Listed with Genex Realty, Inc.
The data relating to real estate for sale on this web site comes in part from the Broker ReciprocitySM Program of MRED. All real estate listings are marked with the Broker ReciprocitySM logo or the MRED Broker ReciprocitySM thumbnail logo (a little black house) and detailed information about them includes the name of the listing brokers.
The broker providing these data believes them to be correct, but advises interested parties to confirm them before relying on them in a purchase decision.
Copyright 2025 MRED. All rights reserved.

The broker providing these data believes them to be correct, but advises interested parties to confirm them before relying on them in a purchase decision.
Copyright 2025 MRED. All rights reserved.

This IDX solution is (c) Diverse Solutions 2025.