|
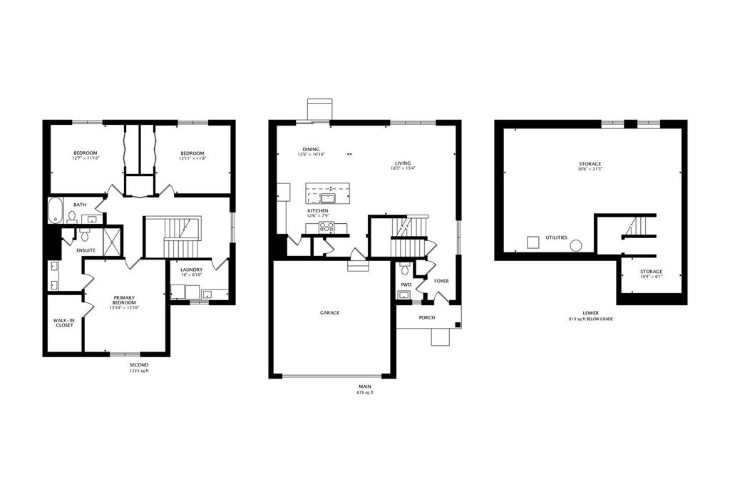
Step into this gorgeous end unit townhome with full basement and private, oversized yard. Bright and sunny throughout, these townhomes fully own and can customize their yards. Low HOA fee ($150/mo) includes lawn care, snow removal, and front landscaping. Open floor plan on main level with engineered hardwood floors and designer finishes throughout. Great room is perfect for entertaining a crowd and moves perfectly into the stunning kitchen! Large center island kitchen finished in timeless white custom cabinetry, solid surface countertops, stainless appliance suite in 2023 and NEW Refrigerator in 2024! Breakfast bar for quick bites, sunny dining room that opens with your sliding glass door to expanded patio space! Primary Suite includes the walk in closet filled with closet organizers and private full bathroom with oversized walk in shower, the quiet retreat at the end of the day. Wide upstairs hallways lead to 2 additional bedrooms that share the hallway full bath and added upgrade with the 2nd floor laundry room with cabinetry and storage! Full unfinished basement is plumbed for future bath. Prime location that is served by Top Rated Stevenson High School District. Serene Neighborhood offers tree lined streets, low traffic, close to nature preserves, hiking/biking trails, and close to Green Lake park. Located across the street from tennis courts, pickleball courts, park, and walking trails. Outstanding shopping and dining within an easy drive. When this unit was purchased from a local award-winning premier builder in late 2023, it was purchased with over $20k in builder upgrades: 7" hardwood flooring, upgraded banister, bathroom faucets, tile in bathrooms, quartz countertops, kitchen cabinets, soft close and color upgrade, solid core doors, can lights in master bedroom, basement rough-in for bathroom. Seller personal upgrades since 2023 purchase include: professionally expanded & renovated custom powder room with modern floating vanity 2024. Basement 2025 - painted, installed mirror, curtains/room dividers, and installed carpet on stairs. 2nd floor Laundry room - hanging bar installed, added w/d pedestals 2024. Custom window treatments - 2024. Upgraded light fixtures in kitchen and dining room 2025. Upgraded kitchen faucet - HansGrohe 2023. Installed custom well window covers - 2025. Truly Better than New!! The list goes on and on!
| DAYS ON MARKET | 75 | LAST UPDATED | 9/18/2025 |
|---|---|---|---|
| YEAR BUILT | 2023 | COMMUNITY | Buffalo Grove |
| GARAGE SPACES | 2.0 | COUNTY | Lake |
| STATUS | Active | PROPERTY TYPE(S) | Condo/Townhouse/Co-Op |
| School District | Adlai E Stevenson High School |
|---|---|
| Elementary School | Kildeer Countryside Elementary S |
| Jr. High School | Twin Groves Middle School |
| High School | Adlai E Stevenson High School |
| ADDITIONAL DETAILS | |
| AIR | Central Air |
|---|---|
| AIR CONDITIONING | Yes |
| AMENITIES | Insurance |
| APPLIANCES | Dishwasher, Disposal, Humidifier, Microwave, Range, Refrigerator, Stainless Steel Appliance(s) |
| AREA | Buffalo Grove |
| BASEMENT | Full, Sump Pump, Unfinished, Yes |
| CONSTRUCTION | Brick, Fiber Cement |
| GARAGE | Attached Garage, Yes |
| HEAT | Natural Gas |
| HOA DUES | 150 |
| INTERIOR | Entrance Foyer, High Ceilings, Open Floorplan, Storage, Walk-In Closet(s) |
| LOT | 0 |
| LOT DESCRIPTION | Landscaped |
| LOT DIMENSIONS | 32X106 |
| PARKING | Asphalt, Garage Door Opener, Attached, Garage |
| SEWER | Public Sewer |
| STORIES | 2 |
| TAXES | 18930.5 |
MORTGAGE CALCULATOR
TOTAL MONTHLY PAYMENT
0
P
I
*Estimate only
| SATELLITE VIEW |
| / | |
We respect your online privacy and will never spam you. By submitting this form with your telephone number
you are consenting for Humderto
Garcia to contact you even if your name is on a Federal or State
"Do not call List".
Listed with @properties Christie's International Real Estate
The data relating to real estate for sale on this web site comes in part from the Broker ReciprocitySM Program of MRED. All real estate listings are marked with the Broker ReciprocitySM logo or the MRED Broker ReciprocitySM thumbnail logo (a little black house) and detailed information about them includes the name of the listing brokers.
The broker providing these data believes them to be correct, but advises interested parties to confirm them before relying on them in a purchase decision.
Copyright 2025 MRED. All rights reserved.

The broker providing these data believes them to be correct, but advises interested parties to confirm them before relying on them in a purchase decision.
Copyright 2025 MRED. All rights reserved.
This IDX solution is (c) Diverse Solutions 2025.