|
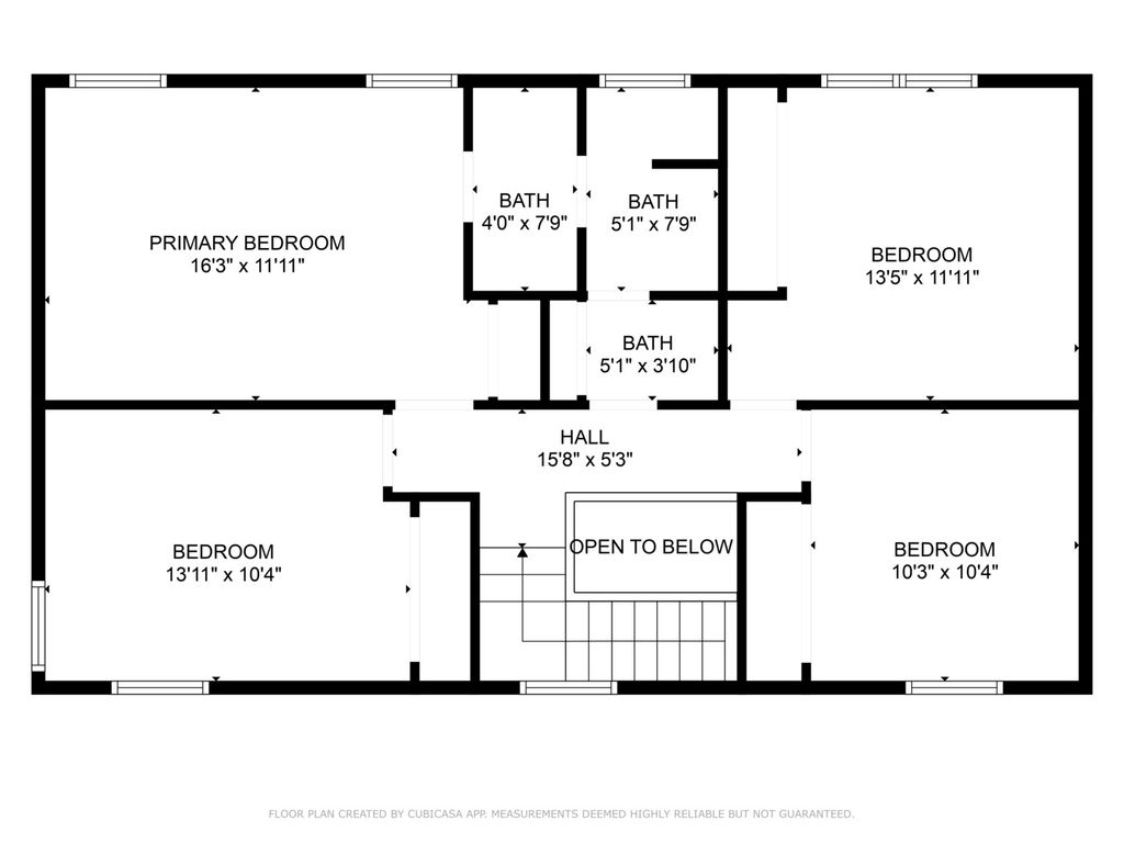
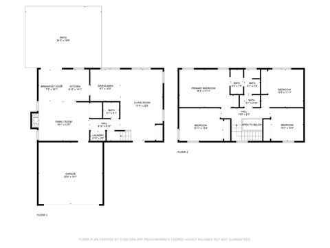
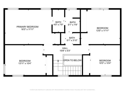
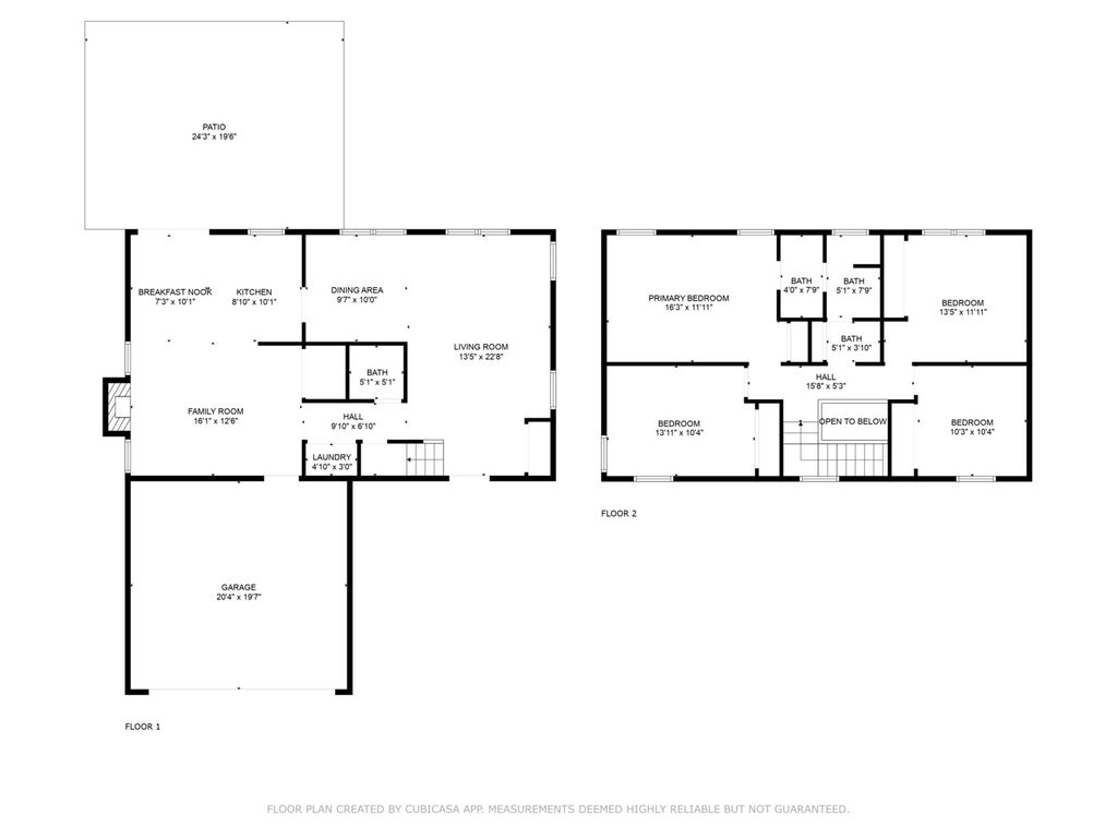
Take a good look at this roomy 2-story that offers 4 generous size bedrooms 1.1 baths open foyer, which features main level living room /dining room/ eat in kitchen/ family room can lighting/ wood burning fireplace/ main level laundry and a updated 1/2 bath all located on the 1st floor. Almost everything has been updated, including siding, windows, furnace. The Central Air and most appliances are more recent. Very clean move in condition beautiful wood flooring custom window covering. Home also features attached 2.5 car garage, huge oversized fenced in backyard featuring a 24x19 concrete patio for summer fun and cook outs. Home also has a outside security system plus hook up for a generator that could run the whole house. Very conveniently located shopping, transportation and highly recognized award winning schools.
DAYS ON MARKET | 14 | LAST UPDATED | 9/23/2025 |
---|---|---|---|
TRACT | Frankfort Square | YEAR BUILT | 1977 |
COMMUNITY | Frankfort | GARAGE SPACES | 2.0 |
COUNTY | Will | STATUS | Conditional |
PROPERTY TYPE(S) | Single Family |
ADDITIONAL DETAILS | |
AIR | Ceiling Fan(s), Central Air |
---|---|
AIR CONDITIONING | Yes |
APPLIANCES | Dishwasher, Dryer, Microwave, Range, Refrigerator, Washer, Water Softener |
AREA | Frankfort |
BASEMENT | None |
CONSTRUCTION | Vinyl Siding |
FIREPLACE | Yes |
GARAGE | Yes |
HEAT | Forced Air, Natural Gas |
LOT | 8276 sq ft |
LOT DIMENSIONS | 68X109.86X77.83X108.20 |
PARKING | Concrete, Garage Door Opener, On Site, Attached, Garage |
SEWER | Public Sewer |
STYLE | American 4-Sq. |
SUBDIVISION | Frankfort Square |
TAXES | 7125 |
WATER | Public |
MORTGAGE CALCULATOR
TOTAL MONTHLY PAYMENT
0
P
I
*Estimate only
SATELLITE VIEW |
/ | |
We respect your online privacy and will never spam you. By submitting this form with your telephone number
you are consenting for Humderto
Garcia to contact you even if your name is on a Federal or State
"Do not call List".
Listed with RE/MAX 1st Service
The data relating to real estate for sale on this web site comes in part from the Broker ReciprocitySM Program of MRED. All real estate listings are marked with the Broker ReciprocitySM logo or the MRED Broker ReciprocitySM thumbnail logo (a little black house) and detailed information about them includes the name of the listing brokers.
The broker providing these data believes them to be correct, but advises interested parties to confirm them before relying on them in a purchase decision.
Copyright 2025 MRED. All rights reserved.

The broker providing these data believes them to be correct, but advises interested parties to confirm them before relying on them in a purchase decision.
Copyright 2025 MRED. All rights reserved.

This IDX solution is (c) Diverse Solutions 2025.