|
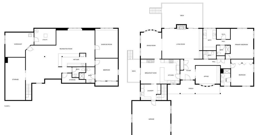
Your next home is this one in Inverness on the Ponds, a highly-desirable, gated community. Lovely 2400 sq. ft. ranch home with a full, finished basement. Kitchen features a fireplace, high- end appliances, granite counter tops, subway tile back splash, beautiful mahogany flooring, undercabinet lighting, white cabinetry with pullout drawers, plenty of pantry space and access to the side deck. An Italian marble mantel on the great room fireplace is stunning, making it the focal point of the room. The open floor plan great room and dining room feature a bay window, dramatic tray ceilings, and access to the large, back deck with mature tree views. In addition to a large, updated first-floor laundry room/mudroom with plenty of storage, conveniently located off the garage, this well-designed home features a main-floor powder room and two spacious main-floor bedrooms. Each bedroom has its own full bathroom. The master bathroom includes a walk-in closet and heated floor. The full English basement includes a large recreation room complete with wet bar and refrigerator, large L-shaped bar with seating for seven plus, powder room, third bedroom with full bathroom, workout room, workshop and large storage areas. Other home features include hot water circulator pump; battery backup sump pump system; new hot water heater, furnace and A/C; heated garage, larger garage; gutter guards and upgraded landscaping. Don't miss this one!
| DAYS ON MARKET | 38 | LAST UPDATED | 9/22/2025 |
|---|---|---|---|
| YEAR BUILT | 1989 | COMMUNITY | Inverness |
| GARAGE SPACES | 2.0 | COUNTY | Cook |
| STATUS | Active | PROPERTY TYPE(S) | Condo/Townhouse/Co-Op |
| ADDITIONAL DETAILS | |
| AIR | Ceiling Fan(s), Central Air |
|---|---|
| AIR CONDITIONING | Yes |
| APPLIANCES | Cooktop, Dishwasher, Disposal, Electric Oven, ENERGY STAR Qualified Appliances, Gas Cooktop, Humidifier, Microwave, Oven, Portable Dishwasher, Range Hood, Stainless Steel Appliance(s), Trash Compactor |
| AREA | Inverness |
| BASEMENT | Daylight, Finished, Full, Storage Space, Sump Pump, Yes |
| CONSTRUCTION | Brick, Cedar |
| FIREPLACE | Yes |
| GARAGE | Yes |
| HEAT | Forced Air, Natural Gas, Radiant Floor |
| HOA DUES | 540 |
| INTERIOR | Bookcases, Built-in Features, Granite Counters, Open Floorplan, Pantry, Solar Tube(s), Vaulted Ceiling(s), Walk-In Closet(s), Wet Bar |
| LOT | 0 |
| LOT DESCRIPTION | Cul-de-sac |
| LOT DIMENSIONS | Condo |
| PARKING | Asphalt, Garage Door Opener, Garage, On Site, Attached, Unassigned, Guest, Driveway, Direct Access, Basement, Electric Gate, Secured |
| SEWER | Public Sewer |
| STYLE | Ranch |
| TAXES | 11178 |
| UTILITIES | Cable Available |
| WATER | Public |
MORTGAGE CALCULATOR
TOTAL MONTHLY PAYMENT
0
P
I
*Estimate only
| SATELLITE VIEW |
| / | |
We respect your online privacy and will never spam you. By submitting this form with your telephone number
you are consenting for Humderto
Garcia to contact you even if your name is on a Federal or State
"Do not call List".
Listed with Homecoin.com
The data relating to real estate for sale on this web site comes in part from the Broker ReciprocitySM Program of MRED. All real estate listings are marked with the Broker ReciprocitySM logo or the MRED Broker ReciprocitySM thumbnail logo (a little black house) and detailed information about them includes the name of the listing brokers.
The broker providing these data believes them to be correct, but advises interested parties to confirm them before relying on them in a purchase decision.
Copyright 2025 MRED. All rights reserved.

The broker providing these data believes them to be correct, but advises interested parties to confirm them before relying on them in a purchase decision.
Copyright 2025 MRED. All rights reserved.
This IDX solution is (c) Diverse Solutions 2025.