|
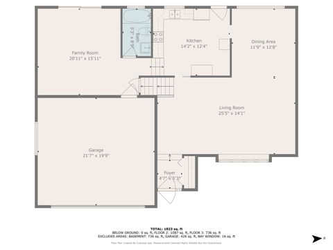
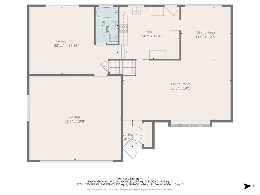
Located on one of Lakewood Manor's largest creek-side parcels, 22604 Lakeshore Drive delivers the space, updates, and access most buyers struggle to find. The deep, tree-lined lot offers peaceful views and a fully fenced yard overlooking a peaceful creek, while recent improvements-roof, siding, windows, and HVAC-mean fewer surprises down the road. The property sits adjacent to a vast elementary school back lot providing endless peaceful, green views. Inside, the quad-level floor plan provides roughly 2,300 sq ft. A generous living room flows into an eat-in kitchen with a patio door to the backyard. One level down, a versatile family room pairs neatly with a full bath and laundry, and an unfinished sub-basement adds even more storage or project space. Upstairs, three bedrooms (hardwood under the carpet) and a full bath. An attached two-car garage integrates seamlessly off the main level, keeping vehicles and gear sheltered year-round without interrupting the home's flow. Outside, the home sits on the largest lot in Lakewood Manor: deep, tree-lined, backing to open green space, and just a short walk to the neighborhood lake and walking path. Daily logistics are simple: walk to local schools, hop on I-57 or Lincoln Highway in minutes, or catch the nearby Metra Electric line to downtown. Neighborhood shopping and dining sit just up the road, yet the street itself stays quiet with light local traffic. Few homes combine this lot size, maintenance peace of mind, and commuter convenience at an approachable price point. Add the creek views and wide backyard, and it's easy to picture summer evenings under the shade trees. Schedule your tour soon-opportunities like this don't last long in Lakewood Manor.
PRE-FORECLOSURE
DAYS ON MARKET | 17 | LAST UPDATED | 9/29/2025 |
---|---|---|---|
TRACT | Lakewood Manor | YEAR BUILT | 1971 |
COMMUNITY | Richton Park | GARAGE SPACES | 2.0 |
COUNTY | Cook | STATUS | Active |
PROPERTY TYPE(S) | Single Family |
PRICE HISTORY | |
Prior to Sep 29, '25 | $239,900 |
---|---|
Sep 29, '25 - Today | $237,900 |
ADDITIONAL DETAILS | |
AIR | Central Air |
---|---|
AIR CONDITIONING | Yes |
APPLIANCES | Dryer, Range, Refrigerator, Washer |
AREA | Richton Park |
BASEMENT | Partial, Partially Finished, Yes |
CONSTRUCTION | Brick, Vinyl Siding |
GARAGE | Yes |
HEAT | Forced Air, Natural Gas |
LOT | 0 |
LOT DESCRIPTION | Corner Lot, Landscaped |
LOT DIMENSIONS | 70X125 |
PARKING | Concrete, Garage Door Opener, On Site, Attached, Garage |
SEWER | Public Sewer |
STYLE | Prairie |
SUBDIVISION | Lakewood Manor |
TAXES | 7281 |
WATER | Public |
MORTGAGE CALCULATOR
TOTAL MONTHLY PAYMENT
0
P
I
*Estimate only
SATELLITE VIEW |
/ | |
We respect your online privacy and will never spam you. By submitting this form with your telephone number
you are consenting for Humderto
Garcia to contact you even if your name is on a Federal or State
"Do not call List".
Listed with Dorazio Real Estate LLC
The data relating to real estate for sale on this web site comes in part from the Broker ReciprocitySM Program of MRED. All real estate listings are marked with the Broker ReciprocitySM logo or the MRED Broker ReciprocitySM thumbnail logo (a little black house) and detailed information about them includes the name of the listing brokers.
The broker providing these data believes them to be correct, but advises interested parties to confirm them before relying on them in a purchase decision.
Copyright 2025 MRED. All rights reserved.

The broker providing these data believes them to be correct, but advises interested parties to confirm them before relying on them in a purchase decision.
Copyright 2025 MRED. All rights reserved.

This IDX solution is (c) Diverse Solutions 2025.