|
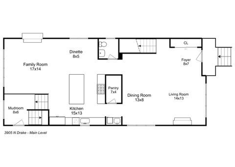
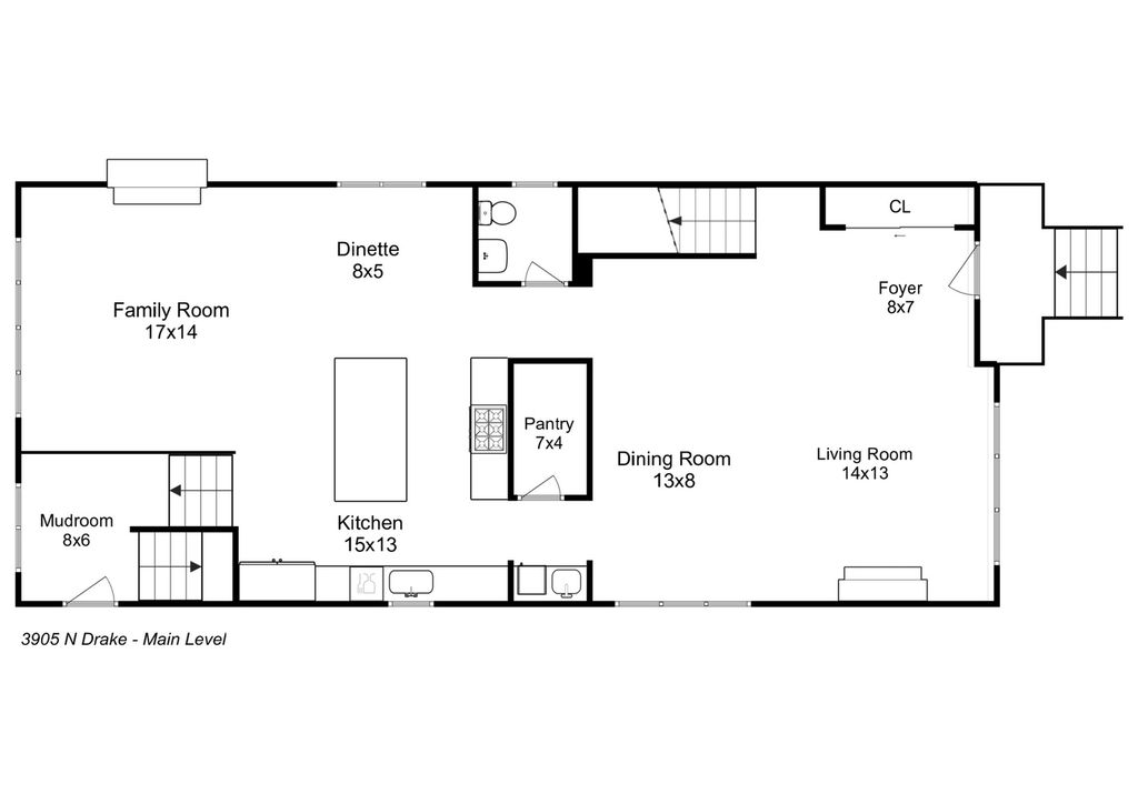
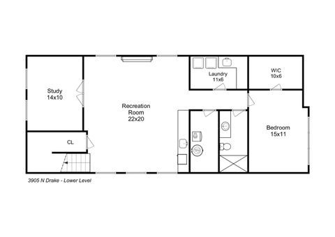
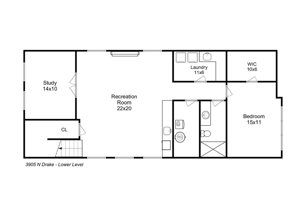
LAST ONE - 2 other Homes in this Development are Under Contract! Ready for Occupancy - - 5 bedroom, 3.1 bath New Construction Single-family home on an oversized 30' lot. Spacious, extra wide Floor Plan @ 24 ft features impressive space and modern design forward finishes with great attention to detail throughout. 4 BEDROOMS on SECOND LEVEL with Full Laundry Room! Entertainers Kitchen with Thermador Pro Appliances, Butlers Pantry with Wine Cooler, Beautiful White Oak flooring, Custom Built-ins and Extensive Trim package, Custom Closets, Black on Black Windows, Hard Wired Exterior Camera system and More! Fresh Dark Gray Hardie and Chicago Common Brick exterior with custom metal stairs. Outdoor Space is expansive including great backyard space with Metal/Wood Fence, Paver Patio and landscape package. 2 Car Garage, Roof Top and Party Door. Great Neighborhood location close to everything - Schools, Restaurants, Independence Park, Downtown, Metra and Blueline. Quality home by Experienced Builder! **Check out Floor Plans in Pictures**
| DAYS ON MARKET | 43 | LAST UPDATED | 10/23/2025 |
|---|---|---|---|
| YEAR BUILT | 2025 | COMMUNITY | CHI - Irving Park |
| GARAGE SPACES | 2.0 | COUNTY | Cook |
| STATUS | Conditional | PROPERTY TYPE(S) | Single Family |
| ADDITIONAL DETAILS | |
| AIR | Central Air, Zoned |
|---|---|
| AIR CONDITIONING | Yes |
| AREA | CHI - Irving Park |
| BASEMENT | Daylight, Finished, Full, Yes |
| CONSTRUCTION | Brick, Masonite |
| FIREPLACE | Yes |
| GARAGE | Yes |
| HEAT | Natural Gas |
| INTERIOR | Pantry |
| LOT | 0 |
| LOT DIMENSIONS | 30X125 |
| PARKING | On Site, Detached, Garage |
| SEWER | Public Sewer |
| TAXES | 8295.96 |
| WATER | Public |
MORTGAGE CALCULATOR
TOTAL MONTHLY PAYMENT
0
P
I
*Estimate only
| SATELLITE VIEW |
| / | |
We respect your online privacy and will never spam you. By submitting this form with your telephone number
you are consenting for Humderto
Garcia to contact you even if your name is on a Federal or State
"Do not call List".
Listed with Kale Realty
The data relating to real estate for sale on this web site comes in part from the Broker ReciprocitySM Program of MRED. All real estate listings are marked with the Broker ReciprocitySM logo or the MRED Broker ReciprocitySM thumbnail logo (a little black house) and detailed information about them includes the name of the listing brokers.
The broker providing these data believes them to be correct, but advises interested parties to confirm them before relying on them in a purchase decision.
Copyright 2025 MRED. All rights reserved.

The broker providing these data believes them to be correct, but advises interested parties to confirm them before relying on them in a purchase decision.
Copyright 2025 MRED. All rights reserved.
This IDX solution is (c) Diverse Solutions 2025.