|
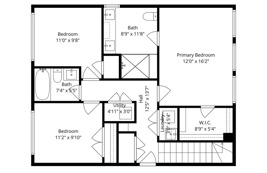
Spacious & quiet 3 bed, 2.1 bath duplex down with garage roof deck & parking in Ukrainian Village/West Town! This newer construction home is perfectly designed for a combination of entertaining & everyday life, with an expansive main floor. The stylish, open kitchen - with tons of cabinetry and massive island (with built-in seating area), is a cook's dream with space to create your favorite dishes. Leicht cabinetry, quartz counters and Bosch stainless steel appliances. This connects to your dining area, and living room with room for a large sectional. This space has a modern fireplace that anchors the room, too! Step out to your 2 outdoor spaces - a smaller balcony (ideal for grilling) that connect up to your private garage roof deck. It flows brilliantly from the indoor to outdoor spaces, making entertaining a breeze! The lower level features all 3 bedrooms, perfect for quiet and privacy. The king-sized primary suite with walk-in closet and private bath with heated floors, double sinks and spacious shower. Two additional bedrooms, another full bath for guests and laundry with utility sink complete this level. Additional features of this home include rich hardwood floors and central air/heat. Intimate, pet-friendly, 5 unit building is convenient to grocery stores, Smith Park, Western Metra Stop and all the dining/shops/nightlife of Chicago Avenue, plus close to Division Street and 6 Corners for more entertainment options. Come home!
| DAYS ON MARKET | 48 | LAST UPDATED | 10/30/2025 |
|---|---|---|---|
| YEAR BUILT | 2017 | COMMUNITY | CHI - West Town |
| GARAGE SPACES | 1.0 | COUNTY | Cook |
| STATUS | Conditional | PROPERTY TYPE(S) | Condo/Townhouse/Co-Op |
| School District | Clemente Community Academy Senio |
|---|---|
| Elementary School | Chopin Elementary School |
| Jr. High School | Chopin Elementary School |
| High School | Clemente Community Academy Senio |
| ADDITIONAL DETAILS | |
| AIR | Central Air |
|---|---|
| AIR CONDITIONING | Yes |
| AMENITIES | Insurance, Water |
| APPLIANCES | Dishwasher, Microwave, Range, Refrigerator, Stainless Steel Appliance(s) |
| AREA | CHI - West Town |
| BASEMENT | Finished, Full, Sump Pump, Yes |
| CONSTRUCTION | Brick |
| EXTERIOR | Balcony |
| FIREPLACE | Yes |
| GARAGE | Yes |
| HEAT | Forced Air, Natural Gas |
| HOA DUES | 338 |
| INTERIOR | High Ceilings, Storage, Walk-In Closet(s) |
| LOT | 0 |
| LOT DIMENSIONS | COMMON |
| PARKING | Asphalt, Garage Door Opener, On Site, Detached, Garage |
| SEWER | Public Sewer |
| STORIES | 3 |
| TAXES | 7796.67 |
| WATER | Public |
MORTGAGE CALCULATOR
TOTAL MONTHLY PAYMENT
0
P
I
*Estimate only
| SATELLITE VIEW |
| / | |
We respect your online privacy and will never spam you. By submitting this form with your telephone number
you are consenting for Humderto
Garcia to contact you even if your name is on a Federal or State
"Do not call List".
Listed with Baird & Warner
The data relating to real estate for sale on this web site comes in part from the Broker ReciprocitySM Program of MRED. All real estate listings are marked with the Broker ReciprocitySM logo or the MRED Broker ReciprocitySM thumbnail logo (a little black house) and detailed information about them includes the name of the listing brokers.
The broker providing these data believes them to be correct, but advises interested parties to confirm them before relying on them in a purchase decision.
Copyright 2025 MRED. All rights reserved.

The broker providing these data believes them to be correct, but advises interested parties to confirm them before relying on them in a purchase decision.
Copyright 2025 MRED. All rights reserved.
This IDX solution is (c) Diverse Solutions 2025.