|
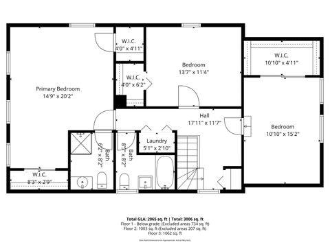
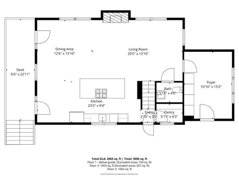
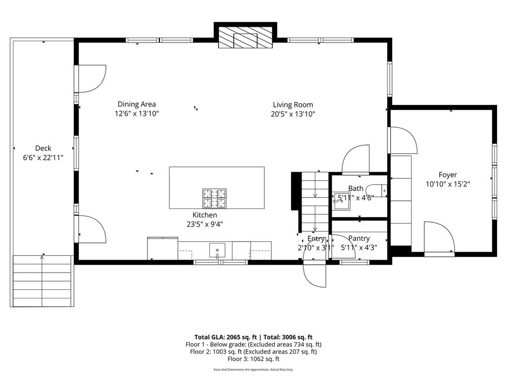
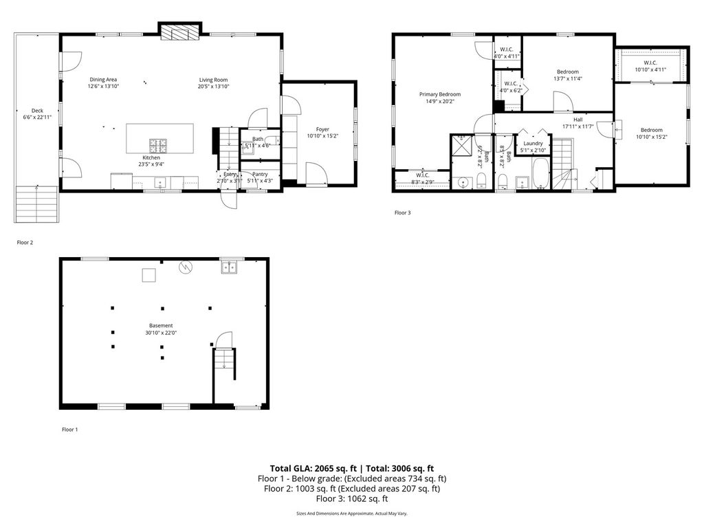
Modern Luxury meets Nature Retreat!! Step into this beautifully renovated 3-bedroom, 2 1/2 bath home where modern elegance meets natural serenity. Starting in the foyer you will see an inviting custom built-in home station designed for seamless organization of coats, gloves, and seasonal accessories. Thoughtfully integrated hooks, cubbies, and concealed compartments offer both convenience and elegance-ensuring a clutter-free entry while maintaining a polished aesthetic. The open-concept kitchen is a showstopper-featuring stainless steel appliances, white cabinetry, white counter tops and a massive island perfect for entertaining with built in cooktop & microwave. Brand-new lighting that brightens every corner in the kitchen and family room. The Family room features updated paint, new flooring and a cozy fireplace perfect for the cold months ahead. The expansive master suite offers a true retreat with fresh paint, updated flooring, and stylish lighting. Master bath has a new vanity, lighting, walk in shower and new fixtures. Outside, escape to your own half-acre nature oasis. Enjoy peaceful mornings on your oversized deck or by the koi pond, afternoons on the private dock, and evening strolls along the scenic walking path. Other major ugrades include new windows, new electric, new plumbing, new AC with ducts, and a new roof on the garage. This property is more than a home-it's a lifestyle. Don't miss it!
DAYS ON MARKET | 1 | LAST UPDATED | 10/1/2025 |
---|---|---|---|
YEAR BUILT | 1940 | COMMUNITY | Batavia |
GARAGE SPACES | 2.5 | COUNTY | Kane |
STATUS | Active | PROPERTY TYPE(S) | Single Family |
ADDITIONAL DETAILS | |
AIR | Central Air |
---|---|
AIR CONDITIONING | Yes |
AREA | Batavia |
BASEMENT | Full, Unfinished, Yes |
CONSTRUCTION | Vinyl Siding |
GARAGE | Yes |
HEAT | Forced Air, Natural Gas |
LOT | 0.56 acre(s) |
LOT DIMENSIONS | 44X44X44X54X121X153X47 |
PARKING | On Site, Detached, Garage |
SEWER | Public Sewer |
TAXES | 7332 |
WATER | Public |
MORTGAGE CALCULATOR
TOTAL MONTHLY PAYMENT
0
P
I
*Estimate only
SATELLITE VIEW |
/ | |
We respect your online privacy and will never spam you. By submitting this form with your telephone number
you are consenting for Humderto
Garcia to contact you even if your name is on a Federal or State
"Do not call List".
Listed with Keller Williams Premiere Properties
The data relating to real estate for sale on this web site comes in part from the Broker ReciprocitySM Program of MRED. All real estate listings are marked with the Broker ReciprocitySM logo or the MRED Broker ReciprocitySM thumbnail logo (a little black house) and detailed information about them includes the name of the listing brokers.
The broker providing these data believes them to be correct, but advises interested parties to confirm them before relying on them in a purchase decision.
Copyright 2025 MRED. All rights reserved.

The broker providing these data believes them to be correct, but advises interested parties to confirm them before relying on them in a purchase decision.
Copyright 2025 MRED. All rights reserved.

This IDX solution is (c) Diverse Solutions 2025.