|
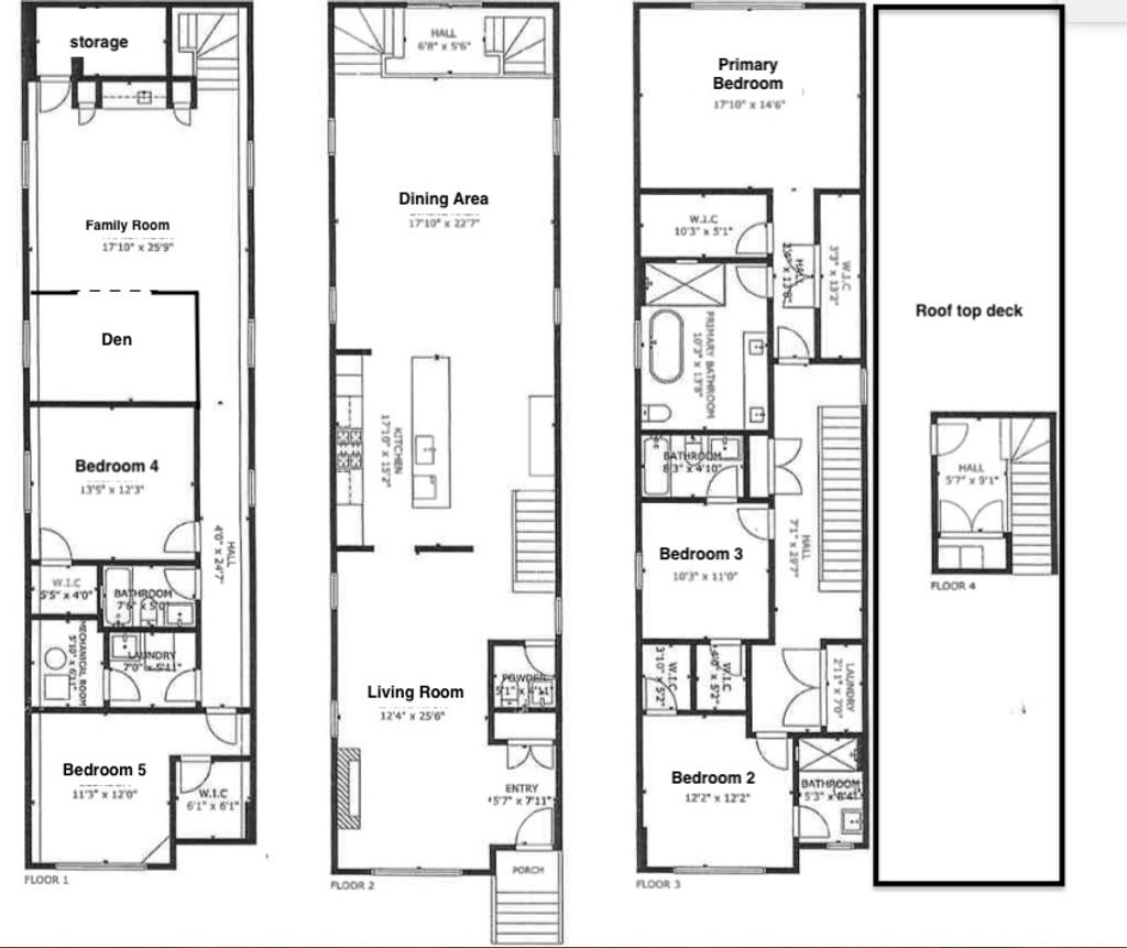
Newly constructed in 2023, this elegant single-family home in West Town seamlessly blends modern luxury with functional design. This 5-bedroom, 4.5-bathroom residence features a full rooftop deck, a garage deck, and a spacious grass front yard and backyard. Lumini windows and 6.5-inch wide-plank hardwood floors enhance the interior's sophistication. The open floor plan showcases a bright, south-facing living and dining area with a quartz-surround fireplace. The gourmet kitchen boasts high-end Thermador appliances, Brizo fixtures, and a large quartz island. Post-construction upgrades include high-end motorized window shades, custom closets, and dual HVAC systems for year-round comfort. The second floor offers three bedrooms, each with en-suite bathrooms, and a convenient side-by-side laundry closet with a countertop. The primary suite features two spacious closets and a spa-like bathroom with an extended double vanity, heated floors, a freestanding soaking tub, and a multi-jet glass shower. The lower level includes two large bedrooms, a recreation room with a den and wet bar, a full bathroom, extra storage, and an additional laundry hookup. The recreation room's den, enclosed by barn doors, provides versatile space for an office, gym, or guest room. Ideal for entertaining, the home features a stunning rooftop deck with skyline views and a backyard perfect for grassy turf or a paved patio. A two-car garage with an additional deck expands outdoor living options. Located in vibrant West Town, steps from West Loop, this home is surrounded by top-tier restaurants and boutique shops.
| DAYS ON MARKET | 71 | LAST UPDATED | 9/24/2025 |
|---|---|---|---|
| YEAR BUILT | 2023 | COMMUNITY | CHI - West Town |
| GARAGE SPACES | 2.0 | COUNTY | Cook |
| STATUS | Active | PROPERTY TYPE(S) | Single Family |
| School District | Wells Community Academy Senior H |
|---|---|
| Elementary School | Otis Elementary School |
| Jr. High School | Otis Elementary School |
| High School | Wells Community Academy Senior H |
| ADDITIONAL DETAILS | |
| AIR | Central Air |
|---|---|
| AIR CONDITIONING | Yes |
| APPLIANCES | Dishwasher, Dryer, Microwave, Range, Range Hood, Stainless Steel Appliance(s), Washer, Wine Refrigerator |
| AREA | CHI - West Town |
| BASEMENT | Finished, Full, Yes |
| CONSTRUCTION | Brick, Other |
| FIREPLACE | Yes |
| GARAGE | Yes |
| HEAT | Natural Gas |
| INTERIOR | Built-in Features, Walk-In Closet(s), Wet Bar |
| LOT | 0 |
| LOT DIMENSIONS | 25 X 125 |
| PARKING | Garage Door Opener, On Site, Detached, Garage |
| SEWER | Public Sewer |
| TAXES | 13106.03 |
MORTGAGE CALCULATOR
TOTAL MONTHLY PAYMENT
0
P
I
*Estimate only
| SATELLITE VIEW |
| / | |
We respect your online privacy and will never spam you. By submitting this form with your telephone number
you are consenting for Humderto
Garcia to contact you even if your name is on a Federal or State
"Do not call List".
Listed with Baird & Warner
The data relating to real estate for sale on this web site comes in part from the Broker ReciprocitySM Program of MRED. All real estate listings are marked with the Broker ReciprocitySM logo or the MRED Broker ReciprocitySM thumbnail logo (a little black house) and detailed information about them includes the name of the listing brokers.
The broker providing these data believes them to be correct, but advises interested parties to confirm them before relying on them in a purchase decision.
Copyright 2025 MRED. All rights reserved.

The broker providing these data believes them to be correct, but advises interested parties to confirm them before relying on them in a purchase decision.
Copyright 2025 MRED. All rights reserved.
This IDX solution is (c) Diverse Solutions 2025.