|
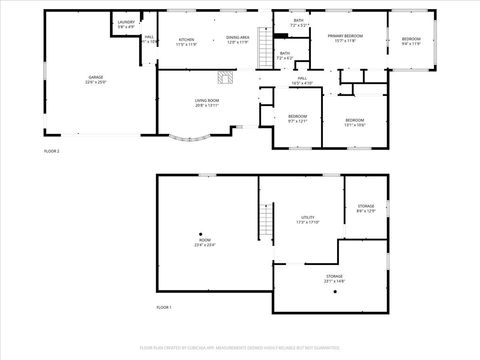
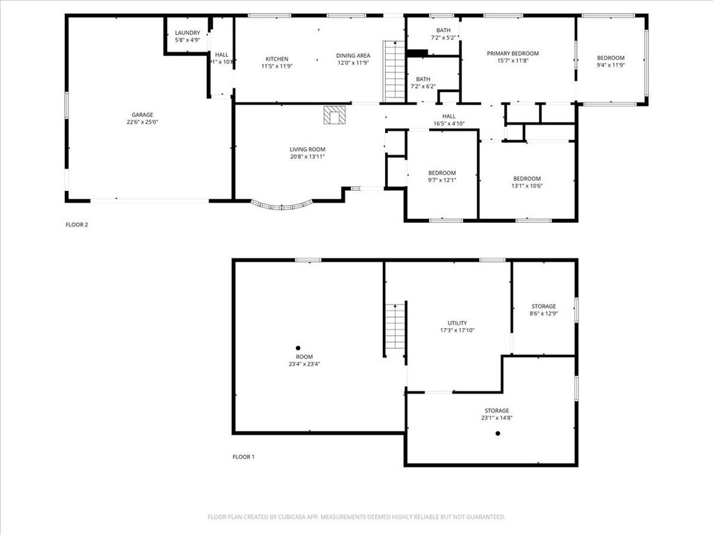
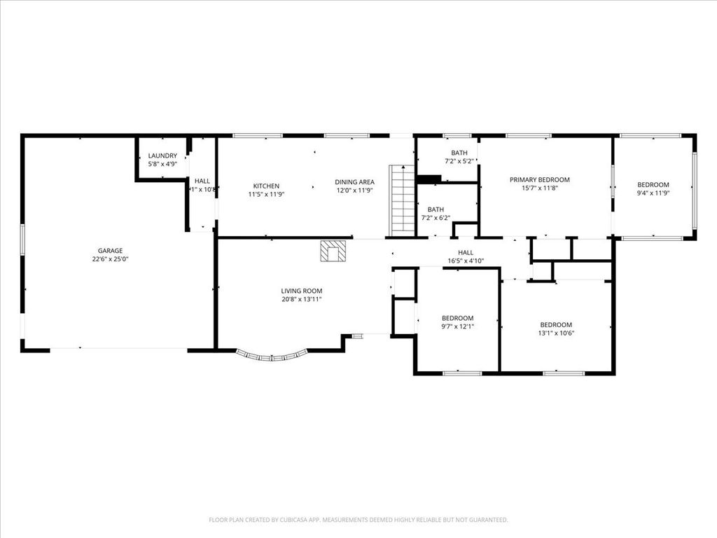
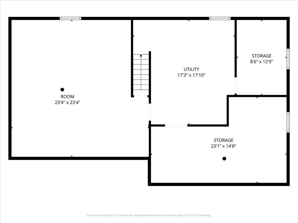
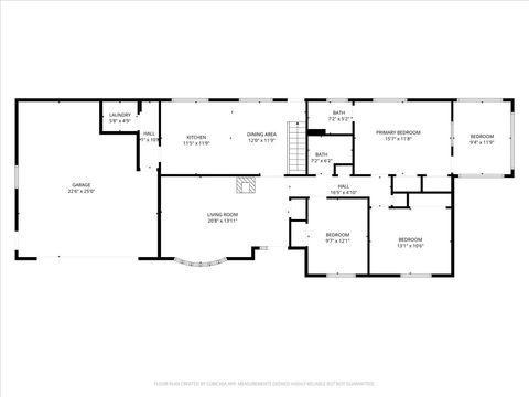
Welcome to this classic ranch home, perfectly set on 2 acres of peaceful countryside. The home features a wood-burning stove for cozy evenings, an attached 2-car garage, and a full basement with partial finishing that offers flexible space for storage, hobbies, and a workshop. Step out of the kitchen and enjoy the east-facing screened porch, ideal for morning coffee while soaking up the sunrise, or catch the sunsets of the west-facing front of the home each evening. A detached shed with a roll-up door provides even more storage or workspace options-perfect for equipment, projects, or outdoor toys. The homes roof is about 8 years old and the porch roof was done in 2024. The HVAC is serviced twice a year with a contract, water softener is rented. Professionally cleaned allows you to move right in and put your touches to it a little at a time. Room dimensions and square footage are approximates, verify anything of importance. Home is sold As-Is
| DAYS ON MARKET | 63 | LAST UPDATED | 9/29/2025 |
|---|---|---|---|
| YEAR BUILT | 1981 | COMMUNITY | Bull Valley / Greenwood / Woodstock |
| GARAGE SPACES | 2.0 | COUNTY | McHenry |
| STATUS | Active | PROPERTY TYPE(S) | Single Family |
| School District | Woodstock North High School |
|---|---|
| Elementary School | Mary Endres Elementary School |
| Jr. High School | Northwood Middle School |
| High School | Woodstock North High School |
| ADDITIONAL DETAILS | |
| AIR | Ceiling Fan(s), Central Air |
|---|---|
| AIR CONDITIONING | Yes |
| APPLIANCES | Dishwasher, Dryer, Microwave, Range, Refrigerator, Washer, Water Softener, Water Softener Rented |
| AREA | Bull Valley / Greenwood / Woodstock |
| BASEMENT | Finished, Full, Sump Pump, Yes |
| CONSTRUCTION | Vinyl Siding |
| FIREPLACE | Yes |
| GARAGE | Yes |
| HEAT | Electric, Wood Stove |
| LOT | 2.08 acre(s) |
| LOT DIMENSIONS | 200x466x190x499 |
| PARKING | Asphalt, Garage Door Opener, On Site, Attached, Garage |
| SEWER | Septic Tank |
| STYLE | Ranch |
| TAXES | 6581 |
| WATER | Well |
MORTGAGE CALCULATOR
TOTAL MONTHLY PAYMENT
0
P
I
*Estimate only
| SATELLITE VIEW |
| / | |
We respect your online privacy and will never spam you. By submitting this form with your telephone number
you are consenting for Humderto
Garcia to contact you even if your name is on a Federal or State
"Do not call List".
Listed with RE/MAX Plaza
The data relating to real estate for sale on this web site comes in part from the Broker ReciprocitySM Program of MRED. All real estate listings are marked with the Broker ReciprocitySM logo or the MRED Broker ReciprocitySM thumbnail logo (a little black house) and detailed information about them includes the name of the listing brokers.
The broker providing these data believes them to be correct, but advises interested parties to confirm them before relying on them in a purchase decision.
Copyright 2025 MRED. All rights reserved.

The broker providing these data believes them to be correct, but advises interested parties to confirm them before relying on them in a purchase decision.
Copyright 2025 MRED. All rights reserved.
This IDX solution is (c) Diverse Solutions 2025.