|
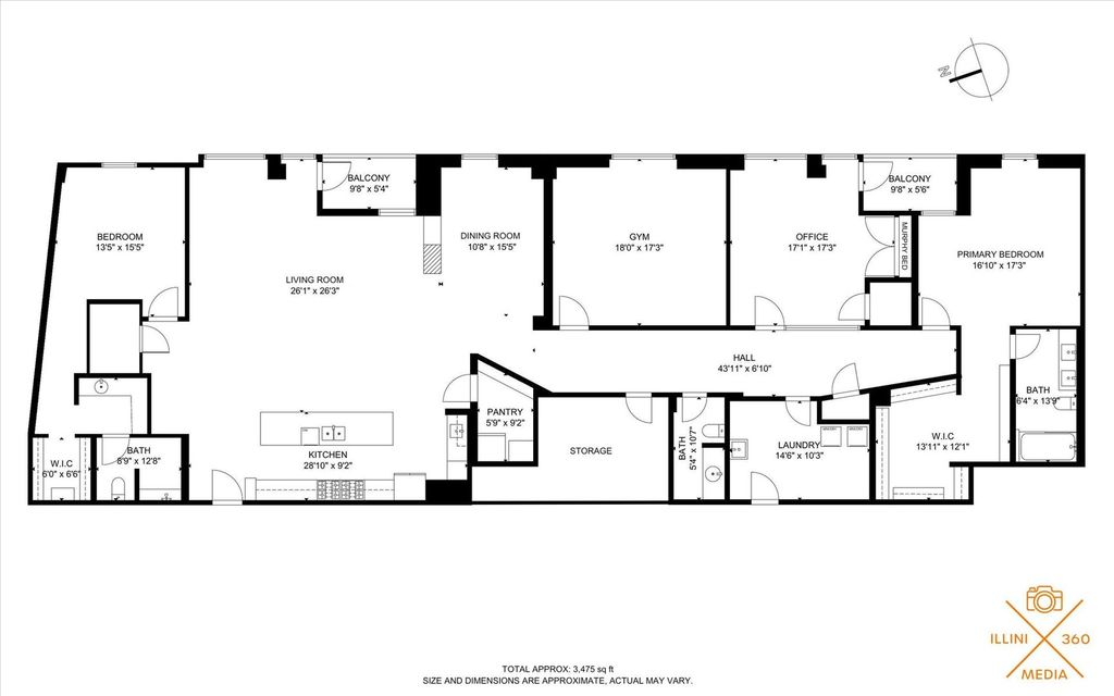
This isn't just a condo; it's a custom, nearly 3500 sq ft urban oasis-a rare, combined two-unit masterpiece in the heart of downtown Champaign. Designed for sophisticated modern living, this 3-bedroom, 2.5-bath home boasts a vast, open floor plan and showcases stunning east-facing city views from two private balconies and floor-to-ceiling windows. The gourmet kitchen is an entertainer's dream, featuring granite counters, stainless steel appliances, and a full bar with ample seating. Retreat to the luxurious master suite, which offers an oversized walk-in closet with a custom system and a spacious tile shower. Flexibility is key with a bonus room perfect for a home office or gym, complete with a Murphy bed for guests. Enjoy low-maintenance living with energy-efficient heat pump HVAC, a ventless dryer, and secure, FOB-access building entry. Your association dues even cover routine HVAC filter replacement. Live less than 1.5 miles from the University of Illinois and stay connected to major Midwest hubs. With on-site office spaces available, you can truly work where you live at M2. Experience the pinnacle of downtown luxury-this must-see condo awaits.
DAYS ON MARKET | 13 | LAST UPDATED | 9/26/2025 |
---|---|---|---|
YEAR BUILT | 2005 | COMMUNITY | Champaign, Savoy |
GARAGE SPACES | 1.0 | COUNTY | Champaign |
STATUS | Active | PROPERTY TYPE(S) | Condo/Townhouse/Co-Op |
School District | Central High School |
---|---|
Elementary School | Unit 4 Of Choice |
Jr. High School | Champaign/Middle Call Unit 4 351 |
High School | Central High School |
ADDITIONAL DETAILS | |
AIR | Central Air |
---|---|
AIR CONDITIONING | Yes |
AMENITIES | Insurance, Water |
APPLIANCES | Bar Fridge, Dishwasher, Range, Refrigerator |
AREA | Champaign, Savoy |
BASEMENT | None |
CONSTRUCTION | Brick |
EXTERIOR | Balcony |
GARAGE | Yes |
HEAT | Forced Air, Heat Pump |
HOA DUES | 918 |
LOT | 0 |
LOT DIMENSIONS | CONDO |
PARKING | On Site, Leased, Attached, Garage |
SEWER | Public Sewer |
STORIES | 1 |
TAXES | 21436.74 |
WATER | Public |
MORTGAGE CALCULATOR
TOTAL MONTHLY PAYMENT
0
P
I
*Estimate only
SATELLITE VIEW |
/ | |
We respect your online privacy and will never spam you. By submitting this form with your telephone number
you are consenting for Humderto
Garcia to contact you even if your name is on a Federal or State
"Do not call List".
Listed with KELLER WILLIAMS-TREC
The data relating to real estate for sale on this web site comes in part from the Broker ReciprocitySM Program of MRED. All real estate listings are marked with the Broker ReciprocitySM logo or the MRED Broker ReciprocitySM thumbnail logo (a little black house) and detailed information about them includes the name of the listing brokers.
The broker providing these data believes them to be correct, but advises interested parties to confirm them before relying on them in a purchase decision.
Copyright 2025 MRED. All rights reserved.

The broker providing these data believes them to be correct, but advises interested parties to confirm them before relying on them in a purchase decision.
Copyright 2025 MRED. All rights reserved.

This IDX solution is (c) Diverse Solutions 2025.