|
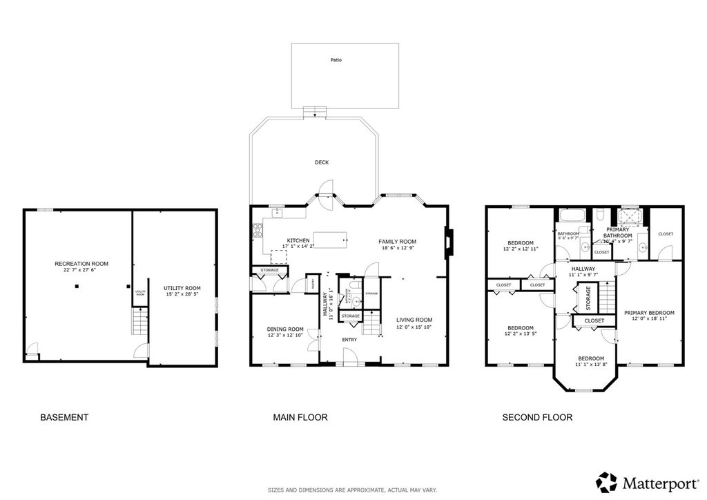
***Price Reduced*** Welcome to this beautifully maintained 4-bedroom, 2.5-bath home located in the highly sought-after Naperville area, served by acclaimed District 204 schools. Just minutes from Route 59, you'll enjoy easy access to premier dining, shopping, and entertainment options. Upon entering, you're greeted by a spacious foyer with a formal dining room to the left, featuring large windows and elegant French doors. To the right, a formal living room offers additional natural light, detailed crown molding, and a welcoming atmosphere. Gorgeous hardwood floors run through the living, dining, and family rooms, creating a seamless flow throughout the main living spaces. The heart of the home is the open-concept family room and kitchen. The family room is anchored by a cozy fireplace and a charming bay window, while the updated eat-in kitchen impresses with granite countertops, stainless steel appliances-including newly installed black stainless-steel finishes-and a center island with seating. Upstairs, the spacious primary suite features a walk-in closet and a private ensuite bathroom with a large shower. Three additional bedrooms and a full bath provide ample space for family or guests. A finished basement adds even more living space, complete with a recreation room and additional storage. Step outside to a beautifully landscaped and fully fenced backyard, offering a large deck and patio-perfect for outdoor entertaining or peaceful relaxation. The attached two-car garage provides convenient parking and storage. Recent upgrades include a new roof, vinyl siding, gutters, and backyard patio in 2023, as well as a kitchen rehab and new electric garage door in 2024. Additional improvements completed in May 2025 include a new vinyl fence, refreshed landscaping, new ceiling fans, recessed lighting, fresh interior paint, a new stove, and a new dryer.
DAYS ON MARKET | 8 | LAST UPDATED | 9/26/2025 |
---|---|---|---|
TRACT | Brookdale | YEAR BUILT | 1985 |
COMMUNITY | Naperville | GARAGE SPACES | 2.0 |
COUNTY | DuPage | STATUS | Active |
PROPERTY TYPE(S) | Single Family |
School District | Metea Valley High School |
---|---|
Elementary School | Brookdale Elementary School |
Jr. High School | Hill Middle School |
High School | Metea Valley High School |
ADDITIONAL DETAILS | |
AIR | Ceiling Fan(s), Central Air |
---|---|
AIR CONDITIONING | Yes |
APPLIANCES | Dishwasher, Disposal, Dryer, Humidifier, Microwave, Range, Refrigerator, Stainless Steel Appliance(s), Washer |
AREA | Naperville |
BASEMENT | Finished, Full, Sump Pump, Yes |
CONSTRUCTION | Vinyl Siding |
FIREPLACE | Yes |
GARAGE | Yes |
HEAT | Forced Air, Natural Gas |
INTERIOR | Beamed Ceilings, Entrance Foyer, Granite Counters, Walk-In Closet(s) |
LOT | 0 |
LOT DIMENSIONS | 95x120 |
PARKING | Garage Door Opener, On Site, Attached, Garage |
SEWER | Public Sewer |
SUBDIVISION | Brookdale |
TAXES | 8957 |
UTILITIES | Cable Available |
MORTGAGE CALCULATOR
TOTAL MONTHLY PAYMENT
0
P
I
*Estimate only
SATELLITE VIEW |
/ | |
We respect your online privacy and will never spam you. By submitting this form with your telephone number
you are consenting for Humderto
Garcia to contact you even if your name is on a Federal or State
"Do not call List".
Listed with Redfin Corporation
The data relating to real estate for sale on this web site comes in part from the Broker ReciprocitySM Program of MRED. All real estate listings are marked with the Broker ReciprocitySM logo or the MRED Broker ReciprocitySM thumbnail logo (a little black house) and detailed information about them includes the name of the listing brokers.
The broker providing these data believes them to be correct, but advises interested parties to confirm them before relying on them in a purchase decision.
Copyright 2025 MRED. All rights reserved.

The broker providing these data believes them to be correct, but advises interested parties to confirm them before relying on them in a purchase decision.
Copyright 2025 MRED. All rights reserved.

This IDX solution is (c) Diverse Solutions 2025.